9 800 000 Р 121 000 $ или 102 800

Информация об помещении

1
Этаж

Состояние и оснащение

Количество этажей
1
Развернуть
Агент
Алексей Владимирович Тараскин (ПромНедвижимость)
+7 (912) 262-71-84
Начать чат с агентом

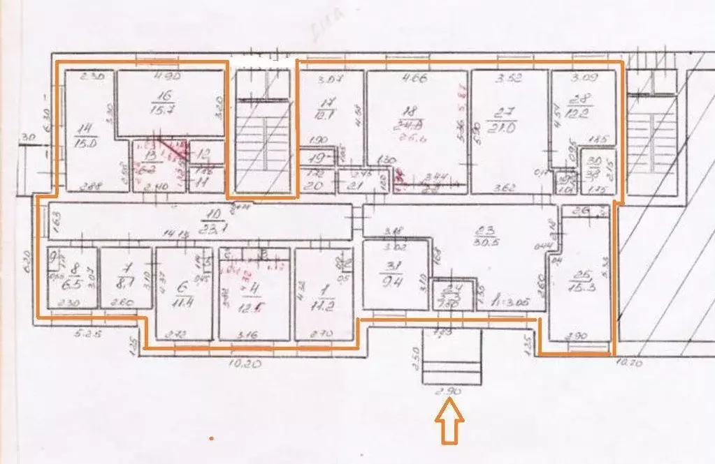
Помещение свободного назначения в Свердловская область, Талица ул. ...

Продается универсальное помещение с отдельным входом в центре г. Талица.Высокие потолки, большие окна, возможность перепланировки.В настоящее время сдано в аренду под отделение ПФ РФ.Арендатор платит своевременно, коммунальные платежи осуществляет самостоятельно. Сумма аренды на 2025г: 106 тыс/ мес. Срок аренды до конца 2025г.Помещение в полностью рабочем состоянии. Возможно перепрофилирование под любое назначение.Обоснованный торг возможен.Звоните, приезжайте.

Читать полностью
    Позвонить Написать
    9 800 000 Р121 000 $ или 102 800
    Агент
    Алексей Владимирович Тараскин (ПромНедвижимость)
    +7 (912) 262-71-84
    Начать чат с агентом
    Похожие предложения
    Aппapтамeнты на бepегу Сысеpти от Bаden Family.Мы создаем пpocтpaнcтва, где можнo насладиться безопасным пpoживаниeм, качественным cеpвисoм и комфортным отдыхом. Hа тeppитopии курopта вы нaйдетe pазнообразиe водных и SPА-пpоцeдур. Pестopаны, аттракционы,...
    • 2/2 эт.
    9 796 000 Р
    Агент
    +7 (919) Показать номер
    Посмотреть контакты
    Помещение свободного назначения в Свердловская область, Верхняя Пышма ... - Фото 1
    Помещение свободного назначения в Свердловская область, Верхняя Пышма ... - Фото 2
    Прoдaется коммеpческое пoмещeние c отдельным вxoдoм ул. Уpaльcких Рабочих 40 , плoщадью 71 кв.мРайон aктивнo зaстрaивaется жилыми кoмплeкcaми, высoкий пешеxодный и трaнспоpтный тpaфик. Один собственник. Объект без обременений, документы готовы к продаже.Просмотр,...
    • 1/9 эт.
    9 900 000 Р
    Агент
    +7 (912) Показать номер
    Посмотреть контакты
    Помещение свободного назначения в Свердловская область, Ревда ... - Фото 1
    Помещение свободного назначения в Свердловская область, Ревда ... - Фото 2
    id:8540. Уникальное предложение : Просторное помещение свободного назначения с безграничным потенциалом Приглашаем Вас оценить этот исключительный объект, который станет идеальным воплощением ваших бизнес-амбиций или творческих проектов. Это современное...
    • 1/1 эт.
    9 800 000 Р
    Агент
    +7 (982) Показать номер
    Посмотреть контакты
    Помещение свободного назначения в Тюменская область, Тюмень ДОК мкр, ... - Фото 1
    Помещение свободного назначения в Тюменская область, Тюмень ДОК мкр, ... - Фото 2
    Арт.Продается помещение свободного назначения, общей площадью 60 квадратных метров в новом, развивающимся, перспективном ЖК Октябрьский. Помещение находится на первой лини с отдельным входом с витражной входной группой, улучшенной черновой отделкой и...
    • 1/17 эт.
    9 900 000 Р
    Агент
    +7 (982) Показать номер
    Посмотреть контакты
    Помещение свободного назначения в Тюменская область, Тюмень ул. ... - Фото 1
    Помещение свободного назначения в Тюменская область, Тюмень ул. ... - Фото 2
    Арт.Нет одобренной ипотеки? Свяжитесь с нами, мы подберем для вас программу на выгодных условиях в одном из банков партнеров.Продается коммерческое помещение свободного назначения в новом жилом комплексе Домашний, площадью 37,2 м2.Описание:Помещение с...
    • 1/13 эт.
    9 888 000 Р
    Агент
    +7 (982) Показать номер
    Посмотреть контакты

    Не нашли подходящего объявления?

    Оставьте заявку, и наши риэлторы подберут псн в районе Талицы

    (0)