10 999 000 Р 143 300 $ или 121 800

Информация о коттедже

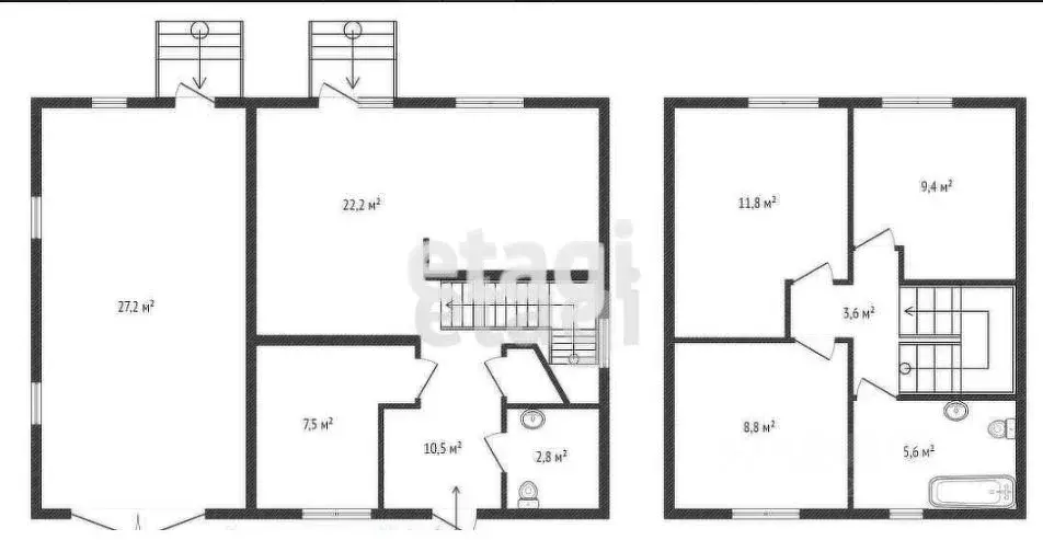
165 м2
Площадь
2
Этажность
8 cоток
Участок

Дополнительная информация

Дом продаётся вместе с участком
есть
Развернуть
Агент
+7 (982) 723-01-27
Начать чат с агентом

Дом в Свердловская область, Сысертский муниципальный округ, СНТ ...

Продается 2-хэтажный ДОМ 165 кв.м на участке 8 соток вблизи Двуреченского водохранилища в КП Новофомино 30 км от Екатеринбурга. Рядом остановка общественного транспорта, возможность подъезда с Челябинского, Тюменского, Арамильского трактов.В Доме на первом этаже просторная кухня-гостиная с камином выходом на просторную террасу, одна комната, санузел, парная, душевая, котельная и на 2-ом этаже две спальни и санузел.Стены - газоблоки 300мм. Фундамент - сваи, ростверк и монолитная плита. Кровля - металлочерепица. Коммуникации: электроснабжение 15 кВт (380), водоснабжение - скважина 90м, септик - бетонные кольца, отопление - теплые полы (электрокотел и водонагреватель установлены).На участке имеется точка подключения к газу. Участок с молодыми соснами на тупиковой улице.Дом продается с отделкой: на полу на первом этаже кварцвиниловая плитка, на втором этаже ламинат, стены покрашены. Душевая, парная, санузлы и котельная с полной отделкой.В поселке полный комплекс коммунальных услуг: охрана, освещение, расчистка дорог, вывоз мусора.Экологически чистая местность, сосновый лес с грибами и ягодами, рыболовное хозяйство, у поселка собственная пляжная зона для купания и отдыха на берегу Двуреченского водохранилища.Дом и земельный участок в собственности.Чистая продажа.Подходит под сельскую ипотеку - 3 .ID объекта в нашей базе: 69

Читать полностью

    Для того, чтобы купить 2-этажный коттедж по адресу: территория СНТ Новофомино, позвоните по телефону +7 (982) 723-01-27. Торопитесь! Объявление №50016094696 о продаже двухэтажного коттеджа опубликовано 21 февраля 2026.

    Позвонить Написать
    10 999 000 Р143 300 $ или 121 800
    Агент
    +7 (982) 723-01-27
    Начать чат с агентом
    Похожие предложения в Сысертском районе
    Дом в Свердловская область, Сысертский муниципальный округ, пос. ... - Фото 1
    Дом в Свердловская область, Сысертский муниципальный округ, пос. ... - Фото 2
    1 этаж, общая площадь 102м², участок 8 соток

    Продаётся новый, современный дом. Полноценно про дом расскажу при телефонном разговоре. Звоните Возле огромного лесного массива. От Химмаша, 8 км., 10 минут на машине. Дом пятистенок. Очень тёплый, уютный с панорамными окнами и терассой. Дом комфорт класса....
    • 1 эт.
    • 102 м²
    • 8 сот.
    10 800 000 Р
    Агент
    +7 (912) Показать номер
    Посмотреть контакты
    Дом в Свердловская область, Сысертский муниципальный округ, Шато-2 кп ... - Фото 1
    Дом в Свердловская область, Сысертский муниципальный округ, Шато-2 кп ... - Фото 2
    1 этаж, общая площадь 133м², участок 7 соток

    Продаю очень красивый теплый светлый дом 133 м2 полностью готовый к проживанию. 5 комнат С дизайнерским ремонтом.Газ на участке. Дом расположен в элитном поселке Шато. Недалеко от Арамиля и пос Октябрьский. Дом имеет индивидуальную архитектуру в стиле...
    • 1 эт.
    • 133 м²
    • 7 сот.
    10 900 000 Р
    Агент
    +7 (912) Показать номер
    Посмотреть контакты
    Дом в Свердловская область, Сысертский муниципальный округ, пос. ... - Фото 1
    Дом в Свердловская область, Сысертский муниципальный округ, пос. ... - Фото 2
    2 этажа, общая площадь 151м², участок 6 соток

    В южной, практически полностью застроенной жилыми благоустроенными домами части посёлка Большой Исток Сысертского района, выделенной для индивидуального жилищного строительства, предлагается к продаже газифицированный двухэтажный дом общей площадью 151,3...
    • 2 эт.
    • 151 м²
    • 6 сот.
    11 700 000 Р
    Агент
    +7 (912) Показать номер
    Посмотреть контакты
    Дом в Свердловская область, Сысертский муниципальный округ, пос. ... - Фото 1
    Дом в Свердловская область, Сысертский муниципальный округ, пос. ... - Фото 2
    2 этажа, общая площадь 120м², участок 6 соток

    Коттедж 2023 года постройки., 120 квадратных метров. В доме 3 комнаты и кухня -гостиная, два санузла (на 1-м и 2-ом этаже). Отопление электрическое, теплый пол на первом этаже, радиаторы на втором. В связи с переездом в доме остаётся многое новым собственникам...
    • 2 эт.
    • 120 м²
    • 6 сот.
    11 800 000 Р
    Агент
    +7 (912) Показать номер
    Посмотреть контакты
    Дом в Свердловская область, Сысертский муниципальный округ, с. Патруши ... - Фото 1
    Дом в Свердловская область, Сысертский муниципальный округ, с. Патруши ... - Фото 2
    2 этажа, общая площадь 162м², участок 5 соток

    Продам жилой Дом 162,7 квм на участке 5,5 сот в с. Патруши, ул. Революции 13БДом 2 этажа, газоблок, фундамент- ростверк, снаружи - штукатурка короед, внутри - стены выровнены, под обои, частично обои есть. Перекрытия - жб плиты, кровля - двускатная, профнастил....
    • 2 эт.
    • 162 м²
    • 5 сот.
    10 350 000 Р
    Агент
    +7 (982) Показать номер
    Посмотреть контакты

    Не нашли подходящего объявления?

    Оставьте заявку, и наши риэлторы подберут купить дом в районе Сысертского района

    (0)