Реализация объекта недвижимости приостановлена

Информация о квартире

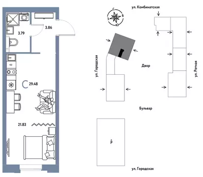
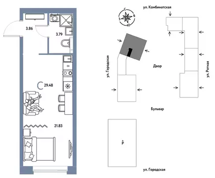
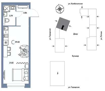
25.0 м2
Площадь
12.0 м2
Жилая
5.0 м2
Кухня
студия
Комнат
7
Этаж
20
Этажность
Развернуть

Студия Свердловская область, Екатеринбург муниципальное образование, ...

Новая квартира в ЖК Уральский сад напрямую от федерального застройщика Страна Девелопмент .1комнатная квартира площадью 25,55кв. м. на 7 этаже жилого комплекса Уральский сад .Жилой комплекс Уральский сад — это новый проект ревитализации территории в Екатеринбурге. Основная идея проекта создать комьюнити людей, которые наполняют свою жизнь необходимыми ресурсами и энергией, стремятся созидать, вдохновлять и развивать. 17 жилых домов переменной этажности — это место силы для жителей, соединенное с комфортом и умными технологиями.ПреимуществаТерритория проекта будет условно разделена на 3 зоны: внешнее окружение, общественный бульвар и закрытые дворы. Чтобы создать дополнительный зелёный буффер на общественных пространствах мы высадим полноразмерные деревья.Особое внимание мы уделили входным зонам с парадными — каждая из них имеет свой уникальный дизайн, гармонирующий с внутридворовым пространством.Разноуровневые террасы, французские балконы и панорамное угловое остекление — особенность проекта. Архитектурная подсветка акцентно выделяет квартал в локации.ОтделкаКвартиры сдаются с предчистовой отделкой: произведена разводка электричества и отопления, выполнена стяжка пола, стены выровнены под маяк , установлены розетки, выключатели и радиаторы. Дизайнерская отделкаПри покупке квартиры в ЖК Уральски сад можно включить стоимость ремонта в ипотеку. Пять вариантов на выбор: хлопковая нить, серый шторм, белый камень, шалфей, голубой вереск. Способы покупкиСотрудники Страна Девелопмент будут сопровождать вас на каждом этапе сделки, помогут получить одобрение по ипотеке или снизить ежемесячный платеж.- ипотека- рассрочка- с использованием материнского капитала -100 оплата наличнымит от застройщика: 5 вариантов на выбор.Закрытый двор с площадками и зонами отдыха: мост-акведук, тренажёры, лабиринты, гамаки и шезлонги.ОТДЕЛКАБазовая отделка или готовый ремонт от застройщика.В базовой отделке все черновые работы выполнены, подведены коммуникации, стены оштукатурены под маяк.В ремонт от застройщика входит 5 вариантов отделки, уже включено всё необходимое: от сантехники до кондиционера.СПОСОБЫ ПОКУПКИСотрудники Страны Девелопмент будут сопровождать вас на каждом этапе сделки, помогут получить одобрение по ипотеке или снизить ежемесячный платеж.ипотекаматеринский капитал100 оплата наличнымирассрочкаобмен — это выкуп вашей старой квартиры и зачисление полученных денежных средств в счет стоимости новой квартиры или в качестве первоначального взноса по ипотеке.

Читать полностью

    Реализация объекта недвижимости приостановлена

    Не нашли подходящего объявления?

    Оставьте заявку, и наши риэлторы подберут квартиру в новостройке в районе Совхозного

    (0)