Реализация объекта недвижимости приостановлена

Информация о коттедже

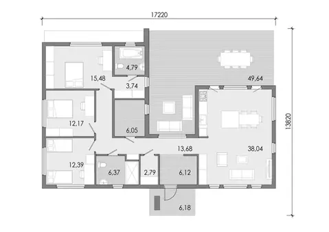
162.0 м2
Площадь
2
Этажность
10.0 cоток
Участок

Дополнительная информация

Дом продаётся вместе с участком
есть
Развернуть

Дом в Ревда, Хвойная улица, 3 (162.6 м)

id:9062. Продам благоустроенный дом с земельным участком в черте города. Назначение земли ИЖС. Введен в эксплуатацию в 2023 году. Дом строился по проекту. Фундамент: буронабивные сваи на 400 мм. плюс монолитная плита Ж/Б 300 мм., наружные стены - газобетонные ЛСР стеновые d=400. Плюс наружное утепление, облицован кирпичом. Внутренние несущие стены блок ЛСР стеновой 300 мм. Перекрытие первого этажа Ж/Б плиты. Окна пластик. Кровля чердачная с наружным водостоком - метало черепица по обрешетке. В доме смонтировано газовое отопление плюс электрокотел, вентиляция, дымоход под камин. Электричество 220/380, 15 Кв. Канализация автономный локальный септик (Евробион - 8). Скважина 68 м., вода заведена в дом и баню. В доме остается частично мебель и бытовая техника. Автоматические гаражные ворота. К дому прилагается техническая документация. На участке построена баня из оцелиндрованного бревна 8 / 6 м., фундамент Ж/Б плита на 300 мм., в бане отопление электрокотел теплый пол. В системе залита (незамерзайка). Вольер для собачки. Территория огорожена забором на ленточном фундаменте, ворота с пульта. Показ дома в любое для вас время.

Читать полностью

    Реализация объекта недвижимости приостановлена

    Не нашли подходящего объявления?

    Оставьте заявку, и наши риэлторы подберут купить дом в районе Ревды

    (0)