5 300 000 Р 66 800 $ или 57 030

Информация об помещении

1
Этаж

Состояние и оснащение

Количество этажей
4
Развернуть
Агент
+7 (961) 769-83-97
Начать чат с агентом

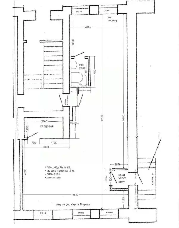
Торговая площадь (61.9 м)

Помещение коммерческого назначения общей площадью 61,9 кв.м. расположено в центральном районе Нижнего Тагила. Объект характеризуется рациональной свободной планировкой, позволяющей легко адаптировать пространство под розничную торговлю, оказание услуг или организацию офиса. Высота потолков составляет 3 метра, что создает ощущение простора и способствует эффективному воздухообмену. Ключевым преимуществом является угловое расположение с остеклением на две стороны, обеспечивающее прекрасное естественное освещение в течение всего дня и повышенную заметность для потенциальных клиентов. С технической стороны объект полностью готов к эксплуатации: проведена электрическая разводка с отдельным щитом, обустроен собственный санузел, действует система отопления. Помимо парадного входа, имеется отдельный служебный вход для персонала. Транспортная доступность высокая — в пешей доступности находятся несколько остановок общественного транспорта. Инфраструктура района развита: в непосредственной близости расположены банки, кафе, аптеки и федеральные торговые сети, что формирует стабильный пешеходный поток. Для автомобилистов предусмотрены две организованные парковочные зоны. Помещение будет полностью освобождено от мебели и старого оборудования к моменту совершения сделки. Право собственности не обременено, юридическая чистота сделки гарантирована. Цена является рыночной и может быть скорректирована в рамках разумного торга для серьезного покупателя. Код пользователя: 77934Номер в базе:

Читать полностью
    Позвонить Написать
    5 300 000 Р66 800 $ или 57 030
    Агент
    +7 (961) 769-83-97
    Начать чат с агентом
    Похожие предложения
    Торговая площадь в Свердловская область, Нижний Тагил ул. Карла ... - Фото 1
    Торговая площадь в Свердловская область, Нижний Тагил ул. Карла ... - Фото 2
    Помещение коммерческого назначения общей площадью 61,9 кв.м. расположено в центральном районе Нижнего Тагила. Объект характеризуется рациональной свободной планировкой, позволяющей легко адаптировать пространство под розничную торговлю, оказание услуг...
    • 1/4 эт.
    5 300 000 Р
    Агент
    +7 (912) Показать номер
    Посмотреть контакты
    Торговая площадь в Свердловская область, Екатеринбург ул. Пехотинцев, ... - Фото 1
    Торговая площадь в Свердловская область, Екатеринбург ул. Пехотинцев, ... - Фото 2
    Помещение 42,5 кв.м Пехотинцев, 18 Новая Сортировка.Активный автомобильный и пешеходный трафик, рядом автобусная остановка.Согласована вывеска. Офисный ремонт, Мощность 7кВтПомещение состоит из зоны рецепшен и торгового зала.Есть Арендатор, желающий зайти...
    • 1/16 эт.
    5 300 000 Р
    Агент
    +7 (912) Показать номер
    Посмотреть контакты
    Торговая площадь в Свердловская область, Реж Заводская ул., 8/2 (69 м) - Фото 1
    Торговая площадь в Свердловская область, Реж Заводская ул., 8/2 (69 м) - Фото 2
    ПРЕДЛАГАЕТСЯ в ПРОДАЖУ ПОМЕЩНИЕ общей площадью 68, 7кв. м. Без комиссии для покупателя. Есть федеральный арендатор - пункт выдачи заказов Вайлдберриз - помещение расположено на 1м этаже 5-этажного жилого дома в г. Реж - общая площадь 68, 7м. кв- год...
    • 1/3 эт.
    5 200 000 Р
    Агент
    +7 (912) Показать номер
    Посмотреть контакты
    Торговая площадь в Свердловская область, Тугулым пгт ул. Ветлечебницы, ... - Фото 1
    Торговая площадь в Свердловская область, Тугулым пгт ул. Ветлечебницы, ... - Фото 2
    Предлагается торговое пощение к покупке или к аренде. Расположено помещение п. Тугулым по улице Ветлечебницы. Первая линия. Одноэтажное здание, площадью 108 м2. Торговый зал площадью 58,5 м2 , склад площадью 44,9 м2 и подсобные помещения. Имеется свой...
    • 1/1 эт.
    5 200 000 Р
    Агент
    +7 (912) Показать номер
    Посмотреть контакты
    Торговая площадь в Свердловская область, Екатеринбург муниципальное ... - Фото 1
    Торговая площадь в Свердловская область, Екатеринбург муниципальное ... - Фото 2
    На коммерцию действует скидка до 5 от указанной цены. Не упустите выгоду.Коммерция в рассрочку с первым взносом от 15 . В проектах есть готовые помещения Стрит-ритейл в разных районах Екатеринбурга — от Эльмаша до Ленинского. Напрямую от федерального...
    • 1/20 эт.
    5 219 000 Р
    Агент
    +7 (912) Показать номер
    Посмотреть контакты

    Не нашли подходящего объявления?

    Оставьте заявку, и наши риэлторы подберут торговое помещение в районе Нижнего Тагила

    (0)