2 099 000 Р 25 840 $ или 22 370

Информация о квартире

44 м2
Площадь
33 м2
Жилая
6 м2
Кухня
2
Комнаты
2
Этаж
5
Этажность

Дополнительная информация

Тип дома
кирпичный
Развернуть
Агент
+7 (912) 631-75-18
Начать чат с агентом

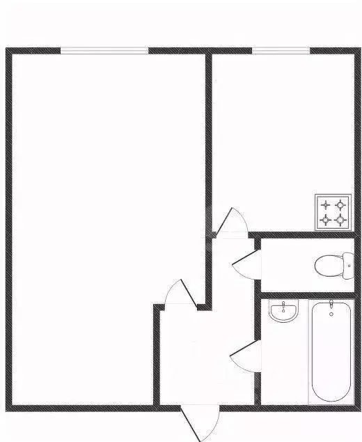
2-к кв. Свердловская область, Нижний Тагил Ульяновская ул., 50 (44.5 ...

Арт.Продается уютная двухкомнатная квартира площадью 44,5 кв.м. Квартира светлая, чистая и очень теплая. Установлены счетчики ГВС и ХВС, двухтарифный счетчик на электроэнергию. Площадь кухни 6 кв.м., сан.узел раздельный, установлены новые смесители, ванна с новым эмалированным покрытием, окна ПВХ, стояки полностью заменены, балкон застеклен. Имеется две вместительные кладовые. Квартира в хорошем состоянии Соседи все доброжелательные Подъезд чистый, территория дома всегда прибрана и ухожена. Возле дома предусмотрена парковка для вашего авто.Коммунальные услуги в месяц составляют: зима- 3000, лето- 1600. Долги ЖКХ отсутствуют Арестов и обременений нет ДОКУМЕНТЫ НА ПРАВО СОБСТВЕННОСТИ ЮРИДИЧЕСКИ ПОЛНОСТЬЮ ПРОВЕРЕНЫ. ГОТОВЫ К БЫСТРОМУ ВЫХОДУ НА СДЕЛКУ Район в котором расположен дом обладает социально-бытовой инфраструктурой и отличной транспортной доступностью: в непосредственной близости находятся магазины, школа, детский садик, красивый парк Рудника им.3-го Интернационала, дворец национальных культур, парк Горнякам Рудника и т.д.Возможна продажа по ипотеке или с использованием материнского, военного капитала и т.д.Подача заявки на одобрение ипотеки в ведущие банки Нижнего Тагила, Екатеринбурга, непосредственно из офиса агентства Бизнес Клуб . *При оформлении ипотеки через агентство - наши официальные партнеры-банки предоставляют дополнительную скидку на процентную ставку от 0,3

Читать полностью

    Для того, чтобы купить двухкомнатную квартиру по адресу: Нижний Тагил, Тагилстроевский, ул. Ульяновская, 50, позвоните по телефону +7 (912) 631-75-18. Торопитесь! Объявление №30091217160 о продаже двухкомнатной квартиры опубликовано 05 ноября 2025.

    Позвонить Написать
    2 099 000 Р25 840 $ или 22 370
    Агент
    +7 (912) 631-75-18
    Начать чат с агентом
    Похожие предложения
    1-к кв. Свердловская область, Нижний Тагил Ульяновская ул., 53 (30.3 ... - Фото 1
    1-к кв. Свердловская область, Нижний Тагил Ульяновская ул., 53 (30.3 ... - Фото 2
    1-комнатная квартира, общая площадь 30м², кухня 6м²

    Продаётся 1 ком. квартира на Руднике, по ул. Ульяновская дом 53. Квартира располагается на 1 этаже 3-х этажного кирпичного дома. В квартире выполнен частичный ремонт. Установлены 2 пластиковых окна из 3-х. Заменена электропроводка. В коридоре и на кухне...
    • 30 м²
    • 1-ком
    • 1/3 эт.
    • кирпичный
    2 000 000 Р
    Агент
    +7 (912) Показать номер
    Посмотреть контакты
    1-к кв. Свердловская область, Нижний Тагил Красная ул., 6 (34.0 м) - Фото 1
    1-к кв. Свердловская область, Нижний Тагил Красная ул., 6 (34.0 м) - Фото 2
    1-комнатная квартира, общая площадь 34м², кухня 9м²

    Продается однокомнатная квартира улучшенной планировки на 1 этаже, стояки поменяны, установлены счетчики на воду, с/у раздельный, окна ПВХ, на окнах решетки.Один взрослый собственник, в квартире никто не прописан, быстрый выход на сделку. Район с развитой...
    • 34 м²
    • 1-ком
    • 1/9 эт.
    • блочный
    2 190 000 Р
    Агент
    +7 (982) Показать номер
    Посмотреть контакты
    2-к кв. Свердловская область, Нижний Тагил ул. Дарвина, 28 (43.3 м) - Фото 1
    2-к кв. Свердловская область, Нижний Тагил ул. Дарвина, 28 (43.3 м) - Фото 2
    2-комнатная квартира, общая площадь 43м², жилая 27м², кухня 6м²

    Продаётся просторная 2-х комнатная квартира на первом этаже по адресу улица Дарвина 28. Квартира отличается удобной планировкой: 2 большие изолированные комнаты, отдельная кухня, раздельный санузел, длинный коридор.Окна выходят на обе стороны света, следовательно...
    • 43 м²
    • 2-ком
    • 1/5 эт.
    • панельный
    2 000 000 Р
    Агент
    +7 (912) Показать номер
    Посмотреть контакты
    Студия Свердловская область, Нижний Тагил ул. Булата Окуджавы, 5 (24.7 ... - Фото 1
    Студия Свердловская область, Нижний Тагил ул. Булата Окуджавы, 5 (24.7 ... - Фото 2
    студия, общая площадь 24м², кухня 6м²

    Продается отличная квартира на ул .Булата Окуджава дом 5, на 7 этаже десятиэтажного дома. 24.7 квадратных метра. Очень теплая, светлая. Сделан свежий современный ремонт. Балкон застеклен пвх, обшит деревом, сделан пол и освещение. Поменяны входные и межкомнатные...
    • 24 м²
    • студия-ком
    • 7/10 эт.
    2 200 000 Р
    Агент
    +7 (982) Показать номер
    Посмотреть контакты
    1-к кв. Свердловская область, Нижний Тагил Балакинская ул., 37 (33.0 ... - Фото 1
    1-к кв. Свердловская область, Нижний Тагил Балакинская ул., 37 (33.0 ... - Фото 2
    1-комнатная квартира, общая площадь 33м², кухня 6м²

    Продается 1 комнатная квартира расположенная по улице Балакинской, д. 37. Квартира расположена на 4 этаже 5 этажного дома. Окна пластиковые, имеется балкон. Балкон застеклен. Кухня уютная 6 метров. Установлены счетчики на воду и электричество. Вся мебель...
    • 33 м²
    • 1-ком
    • 4/5 эт.
    • панельный
    2 090 000 Р
    Агент
    +7 (912) Показать номер
    Посмотреть контакты

    Не нашли подходящего объявления?

    Оставьте заявку, и наши риэлторы подберут квартиру в районе Нижнего Тагила

    (0)