3 300 000 Р 41 340 $ или 35 510

Информация о квартире

42 м2
Площадь
28 м2
Жилая
9 м2
Кухня
2
Комнаты
1
Этаж
4
Этажность

Дополнительная информация

Тип дома
кирпичный
Развернуть
Агент
+7 (982) 687-18-37
Начать чат с агентом

2-к кв. Свердловская область, Нижний Тагил ул. Кузнецкого, 3 (42.9 м)

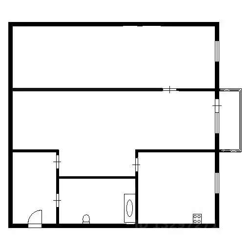
Объект 4899. Продам уютную 2x комнатную квартиру. Общая площадь 42.9 м, жилая площадь 28.7 м, площадь кухни 9 м. 1 этаж четырехэтажного дома, кирпичный, постройка 1965 года. Хороший ремонт, совмещенный санузел, центральное отопление. Установлен газовый котел на горячую воду, что непременно ведет к экономии по коммунальным платежам. В прихожей установлен теплый электрический пол. Рядом расположены средние школы 1 и 23, детские сады 134 и 163, Мировой суд Ленинского района, детская больница и Демидовская больница, а так же парк им. Горького. Подходящий вариант для быстрого заезда или для сдачи в аренду.

Читать полностью

    Для того, чтобы купить двухкомнатную квартиру по адресу: Нижний Тагил, Ленинский, ул. Кузнецкого, 3, позвоните по телефону +7 (982) 687-18-37. Торопитесь! Объявление №30091211512 о продаже двухкомнатной квартиры опубликовано 20 октября 2025.

    Позвонить Написать
    3 300 000 Р41 340 $ или 35 510
    Агент
    +7 (982) 687-18-37
    Начать чат с агентом
    Похожие предложения
    4-к кв. Свердловская область, Нижний Тагил Красноармейская ул., 123 ... - Фото 1
    4-к кв. Свердловская область, Нижний Тагил Красноармейская ул., 123 ... - Фото 2
    4-комнатная квартира, общая площадь 64м², кухня 6м²

    В продаже 4 четырехкомнатная квартира расположенная по адресу Красноармейская 123 на 9 девятом этаже. Чистая, светлая, уютная квартира. В квартире сделан ремонт, сейф дверь, окна ПВХ, счетчики холодной и горячей воды. Два балкона. Шикарный вид из окон...
    • 64 м²
    • 4-ком
    • 9/9 эт.
    • блочный
    3 300 000 Р
    Агент
    +7 (982) Показать номер
    Посмотреть контакты
    2-к кв. Свердловская область, Нижний Тагил Газетная ул., 79 (42.7 м) - Фото 1
    2-к кв. Свердловская область, Нижний Тагил Газетная ул., 79 (42.7 м) - Фото 2
    2-комнатная квартира, общая площадь 42м², жилая 31м², кухня 6м²

    ПРОДАЕТСЯ двухкомнатная квартира на улице Газетной, расположенная в непосредственной близости от перекрестка с улицей Пархоменко. Дом недавно прошел капитальный ремонт, включая полное обновление кровли, что обеспечивает долгосрочную надежность и комфорт...
    • 42 м²
    • 2-ком
    • 5/5 эт.
    • блочный
    3 380 000 Р
    Агент
    +7 (982) Показать номер
    Посмотреть контакты
    2-к кв. Свердловская область, Нижний Тагил Первомайская ул., 70 (42.8 ... - Фото 1
    2-к кв. Свердловская область, Нижний Тагил Первомайская ул., 70 (42.8 ... - Фото 2
    2-комнатная квартира, общая площадь 42м², жилая 30м², кухня 5м²

    Объект 921. Арт.Продам теплую уютную квартиру в центре города, спальный район.Квартира в хорошем состоянии: на окнах установлены решетки, окна ПВХ. Входная дверь Аргус Вся проводка заменена на медную. Заменена разводка отопления, установлены новые радиаторы.В...
    • 42 м²
    • 2-ком
    • 1/5 эт.
    • панельный
    3 270 000 Р
    Агент
    +7 (982) Показать номер
    Посмотреть контакты
    2-к кв. Свердловская область, Нижний Тагил Красноармейская ул., 57 ... - Фото 1
    2-к кв. Свердловская область, Нижний Тагил Красноармейская ул., 57 ... - Фото 2
    2-комнатная квартира, общая площадь 44м², кухня 6м²

    Продается очень теплая, уютная комфортная 2 х комнатная квартира в центре, рядом парк Народный . Развитая инфраструктура, в шаговой доступности Детский сад, магазины, тихий двор, вдали от шумной дороги. Чистый подъезд. Все окна - стеклопакеты, выходят...
    • 44 м²
    • 2-ком
    • 2/5 эт.
    • панельный
    3 300 000 Р
    Агент
    +7 (912) Показать номер
    Посмотреть контакты
    2-к кв. Свердловская область, Нижний Тагил ул. Дружинина, 72 (50.0 м) - Фото 1
    2-к кв. Свердловская область, Нижний Тагил ул. Дружинина, 72 (50.0 м) - Фото 2
    2-комнатная квартира, общая площадь 50м²

    Двухкомнатная квартира улучшенной планировки. Общая площадь 50.1м. Обычное состояние. Стояки ХГВС и отопления заменены. Новые радиаторы. Застеклённый балкон.Один совершеннолетний собственник.
    • 50 м²
    • 2-ком
    • 9/9 эт.
    3 300 000 Р
    Агент
    +7 (985) Показать номер
    Посмотреть контакты

    Не нашли подходящего объявления?

    Оставьте заявку, и наши риэлторы подберут квартиру в районе Нижнего Тагила

    (0)