4 000 000 Р 49 270 $ или 42 770

Информация о квартире

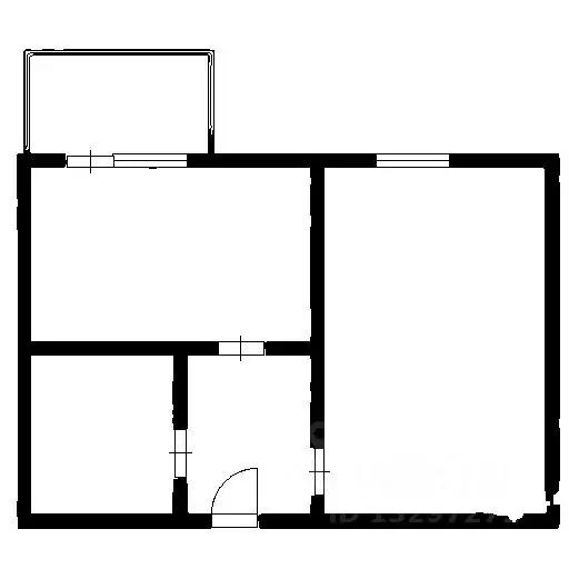
74 м2
Площадь
9 м2
Кухня
4
Комнаты
2
Этаж
9
Этажность

Дополнительная информация

Тип дома
панельный
Развернуть
Агент
+7 (982) 620-58-84
Начать чат с агентом

4-к кв. Свердловская область, Нижний Тагил Уральский просп., 32к1 ...

Продается квартира на ггм, Очень удобное расположение, остановки общественного транспорта в шаговой доступности, так же все необходимые магазины. Во дворе всегда есть парковочные места. Во дворе садик и школы. Квартира Светлая, теплая. Но требует полно ремонта. что тоже большой плюс, можно сделать ремонт именно под себя. Звоните покажем в удобное для вас время. Так же можем рассмотреть обмен на 2 комнатную квартиру в районе тагилстроя с вашей доплатой. Код пользователя: 22594Номер в базе:

Читать полностью

    Для того, чтобы купить четырехкомнатную квартиру по адресу: Нижний Тагил, Тагилстроевский, Уральский пр-кт., 32к1, позвоните по телефону +7 (982) 620-58-84. Торопитесь! Объявление №30091153746 о продаже четырехкомнатной квартиры опубликовано Вчера.

    Позвонить Написать
    4 000 000 Р49 270 $ или 42 770
    Агент
    +7 (982) 620-58-84
    Начать чат с агентом
    Похожие предложения
    4-к кв. Свердловская область, Нижний Тагил ул. Жуковского, 25 (85.4 м) - Фото 1
    4-к кв. Свердловская область, Нижний Тагил ул. Жуковского, 25 (85.4 м) - Фото 2
    4-комнатная квартира, общая площадь 85м², жилая 62м², кухня 7м²

    Просторная 4х комнатная квартира на первом этаже в районе Красного Камня предлагает комфортное и практичное решение для жизни. Объект отличается выгодной планировкой с тремя изолированными спальнями и гостиной. Несмотря на расположение на первом этаже,...
    • 85 м²
    • 4-ком
    • 1/2 эт.
    4 000 000 Р
    Агент
    +7 (982) Показать номер
    Посмотреть контакты
    1-к кв. Свердловская область, Нижний Тагил Черноисточинское ш., 55 ... - Фото 1
    1-к кв. Свердловская область, Нижний Тагил Черноисточинское ш., 55 ... - Фото 2
    1-комнатная квартира, общая площадь 50м², кухня 12м²

    Продам теплую, светлую однокомнатную квартиру на ГГМ. Квартира просторная, общей площадью 50м2, кухня 12 м2. Есть большой балкон-лоджия. В квартире выполнен качественный косметический ремонт, состояние заезжай, живи. При продаже остается вся мебель...
    • 50 м²
    • 1-ком
    • 5/9 эт.
    • панельный
    3 990 000 Р
    Агент
    +7 (912) Показать номер
    Посмотреть контакты
    2-к кв. Свердловская область, Нижний Тагил ул. Захарова, 2 (50.0 м) - Фото 1
    2-к кв. Свердловская область, Нижний Тагил ул. Захарова, 2 (50.0 м) - Фото 2
    2-комнатная квартира, общая площадь 50м², жилая 30м², кухня 9м²

    Просторная двухкомнатная квартира 50 кв. м в панельном доме предлагается к продаже. Объект находится в отличном состоянии и полностью готов к заселению. Проведен комплексный ремонт с заменой всех инженерных систем: установлены новые металлопластиковые...
    • 50 м²
    • 2-ком
    • 5/9 эт.
    • панельный
    3 900 000 Р
    Агент
    +7 (912) Показать номер
    Посмотреть контакты
    3-к кв. Свердловская область, Нижний Тагил ул. Хохрякова, 18 (60.0 м) - Фото 1
    3-к кв. Свердловская область, Нижний Тагил ул. Хохрякова, 18 (60.0 м) - Фото 2
    3-комнатная квартира, общая площадь 60м², кухня 10м²

    Продаётся трёхкомнатная квартира в городе Нижний Тагил, район Смычка, рядом с дворцом культуры железнодорожников имени Гагарина. Квартира находится на пятом этаже пятиэтажного дома. Зелёный двор, большое количество парковочных мест. Квартира улучшенной...
    • 60 м²
    • 3-ком
    • 5/5 эт.
    • блочный
    4 000 000 Р
    Агент
    +7 (982) Показать номер
    Посмотреть контакты
    1-к кв. Свердловская область, Нижний Тагил Черноисточинское ш., 55 ... - Фото 1
    1-к кв. Свердловская область, Нижний Тагил Черноисточинское ш., 55 ... - Фото 2
    1-комнатная квартира, общая площадь 50м², жилая 25м², кухня 10м²

    В стремительно развивающимся районе нашего города, а именно ГГМ, предлагаю Вам, приобрести чистую, светлую, уютную однокомнатную квартиру. Находящиеся, на шестом этаже, девятиэтажного жилого дома. Адрес этой замечательной квартиры с отличным ремонтом...
    • 50 м²
    • 1-ком
    • 6/9 эт.
    • панельный
    4 100 000 Р
    Агент
    +7 (982) Показать номер
    Посмотреть контакты

    Не нашли подходящего объявления?

    Оставьте заявку, и наши риэлторы подберут квартиру в районе Нижнего Тагила

    (0)