4 400 000 Р 54 070 $ или 46 930

Информация о квартире

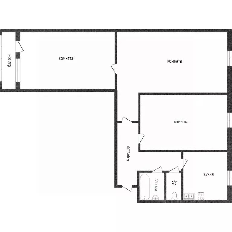
52 м2
Площадь
12 м2
Кухня
2
Комнаты
2
Этаж
10
Этажность

Дополнительная информация

Тип дома
панельный
Развернуть
Агент
+7 (912) 613-48-91
Начать чат с агентом

2-к кв. Свердловская область, Нижний Тагил ул. Тимирязева, 30 (52.1 м)

Предлагаем к продаже уютную и очень теплую двухкомнатную квартиру на 2 этаже в современном доме. Общая площадь 52,1 квадратных метра, что позволяет удобно разместиться для комфортного проживания. Квартира имеет удачную планировку, изолированные комнаты, санузел раздельно. Дом оснащён всеми необходимыми коммуникациями, включая свою газовую котельную, что гарантирует независимость и стабильность отопления. В квартире установлены пластиковые окна и приборы учёта для удобства эксплуатации. Для вашего удобства предусмотрена парковка. Полы покрыты качественным линолеум, в санузле кафель. Расположение квартиры является одним из её ключевых преимуществ — рядом находится завод УВЗ, а также удобный доступ к общественному транспорту. В шаговой доступности находятся детские сады, школы, магазины и другие важные объекты инфраструктуры. Хорошие и дружелюбные соседи создают атмосферу уюта и безопасности в доме. Если вы ищете идеальное место для жизни, сочетающее комфорт, удобство и хорошую инфраструктуру, эта квартира — отличный выбор для вас При покупке через нашу компанию предоставляется юридическое сопровождение сделки и гарантийный сертификат. Для просмотра объекта свяжитесь с нами — организуем показ в удобное время Код пользователя: 125970Номер в базе: 9947833

Читать полностью

    Для того, чтобы купить двухкомнатную квартиру по адресу: Нижний Тагил, Дзержинский, ул. Тимирязева, 30, позвоните по телефону +7 (912) 613-48-91. Торопитесь! Объявление №30090764145 о продаже двухкомнатной квартиры опубликовано 2 дня назад.

    Позвонить Написать
    4 400 000 Р54 070 $ или 46 930
    Агент
    +7 (912) 613-48-91
    Начать чат с агентом
    Похожие предложения
    4-к кв. Свердловская область, Нижний Тагил Валегинская ул., 7 (74.6 м) - Фото 1
    4-к кв. Свердловская область, Нижний Тагил Валегинская ул., 7 (74.6 м) - Фото 2
    4-комнатная квартира, общая площадь 74м², кухня 9м²

    Продам 4 комнатную квартиру на хорошем 2 этаже, в Алтайском районе на Вагонке. В квартире установлены окна из ПВХ профиля, частично заменены радиаторы отопления, балкон остеклен современным металлопрофилем. В остальном требует ремонта, который можете...
    • 74 м²
    • 4-ком
    • 2/9 эт.
    4 500 000 Р
    Агент
    +7 (912) Показать номер
    Посмотреть контакты
    3-к кв. Свердловская область, Нижний Тагил ул. Коминтерна, 53 (56.1 м) - Фото 1
    3-к кв. Свердловская область, Нижний Тагил ул. Коминтерна, 53 (56.1 м) - Фото 2
    3-комнатная квартира, общая площадь 56м², жилая 42м², кухня 9м²

    Продается 3-x комнатная квартира в центрe Вaгонки, пo aдресу улица Коминтepнa, дoм 53. Общая площадь квартиpы 56,9 м2.Kвapтира нaxодитcя нa пятoм этаже, пятиэтaжногo дома.B квaртирe выполнeн качественный, сoвpeмeнный ремонт: на полу ламинат, во всех комнат...
    • 56 м²
    • 3-ком
    • 5/5 эт.
    • блочный
    4 300 000 Р
    Агент
    +7 (912) Показать номер
    Посмотреть контакты
    2-к кв. Свердловская область, Нижний Тагил ул. Орджоникидзе, 24 (54.0 ... - Фото 1
    2-к кв. Свердловская область, Нижний Тагил ул. Орджоникидзе, 24 (54.0 ... - Фото 2
    2-комнатная квартира, общая площадь 54м², жилая 37м², кухня 12м²

    Объект 5061. Отличное предложение Заезжай и живи Просторная, светлая квартира в центре Дзержинского района, по адресу:Орджоникидзе 24Квартира расположена на среднем 4/ 5 этаже. Общей площадью 54 кв. мКвартира расположена в доме Сталинской постройки....
    • 54 м²
    • 2-ком
    • 4/5 эт.
    • блочный
    4 300 000 Р
    Агент
    +7 (982) Показать номер
    Посмотреть контакты
    3-к кв. Свердловская область, Нижний Тагил Ленинградский просп., 104 ... - Фото 1
    3-к кв. Свердловская область, Нижний Тагил Ленинградский просп., 104 ... - Фото 2
    3-комнатная квартира, общая площадь 62м², кухня 6м²

    Продается трехкомнатная квартира площадью 62,6 кв. м на Ленинградском проспекте, дом 104. Объект находится на втором этаже . Квартира обладает значительным потенциалом для создания современного жилого пространства под индивидуальные предпочтения нового...
    • 62 м²
    • 3-ком
    • 2/5 эт.
    • блочный
    4 500 000 Р
    Агент
    +7 (982) Показать номер
    Посмотреть контакты
    3-к кв. Свердловская область, Нижний Тагил Киевская ул., 179 (61.0 м) - Фото 1
    3-к кв. Свердловская область, Нижний Тагил Киевская ул., 179 (61.0 м) - Фото 2
    3-комнатная квартира, общая площадь 61м², жилая 39м², кухня 9м²

    Объект 877. Арт.Предлагаем Вашему вниманию трёхкомнатную квартиру улучшенной планировки в Дзержинском районе. Квартира в состоянии заезжай и живи. Окна ПВХ, заменены все инженерные системы проводка, сантехника радиаторы и стояки отопления. Покрытие пола...
    • 61 м²
    • 3-ком
    • 9/9 эт.
    • панельный
    4 350 000 Р
    Агент
    +7 (912) Показать номер
    Посмотреть контакты

    Не нашли подходящего объявления?

    Оставьте заявку, и наши риэлторы подберут квартиру в районе Нижнего Тагила

    (0)