390 000 Р 4 760 $ или 4 060

Информация об участке

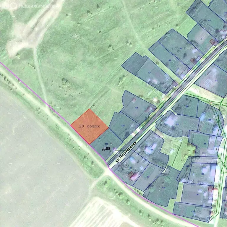
20 cоток
Площадь участка
Развернуть
Агент
Арина Петровна (Ярмарка)
+7 (912) 660-86-94
Начать чат с агентом

Участок в Свердловская область, Каменский муниципальный округ, деревня ...

Продаётся участок ЛПХ площадью 20 соток, предназначенный для возведения жилого дома, расположенного в деревне Перебор. Расстояние до Екатеринбурга - около 80 километров, до Каменска-Уральского - 20 километров. Земля прекрасно подойдет для тех, кто планирует обустроить собственное жильё вдали от городского шума и спешки, наслаждаясь жизнью в экологически чистой местности.ID объекта в нашей базе: 26015

Читать полностью

    Для того, чтобы купить земельный участок площадью 20 соток по адресу: Перебор, ул. Пионерская, позвоните по телефону +7 (912) 660-86-94. Торопитесь! Объявление №20008955360 о продаже земельного участка площадью 20 соток опубликовано Сегодня.

    Позвонить Написать
    390 000 Р4 760 $ или 4 060
    Агент
    Арина Петровна (Ярмарка)
    +7 (912) 660-86-94
    Начать чат с агентом
    Похожие предложения
    участок 28 соток

    Продаётся земельный участок площадью 28,59 соток, предназначенный для строительства и ведения личного подсобного хозяйства, расположенный в деревне Малая Белоносова. Удобное расположение участка позволяет быстро добираться до ближайших крупных населённых...
    • 28 сот.
    400 000 Р
    Агент
    +7 (912) Показать номер
    Посмотреть контакты
    Участок в Маминское, Полевая улица (16.56 м) - Фото 1
    Участок в Маминское, Полевая улица (16.56 м) - Фото 2
    участок 16 соток

    Предлагаем земельный участок площадью 16,56 соток в категории ЛПХ, идеально подходящий для строительства собственного дома. Располагается в живописном селе Маминское, которое удобно расположено: всего в 30 километрах от Каменска-Уральского и в пределах...
    • 16 сот.
    380 000 Р
    Агент
    +7 (912) Показать номер
    Посмотреть контакты
    участок 10 соток

    Земельный участок 10 соток, в СТ Электровозник-1,Район: Свердловская обл., р-н Каменский, Каменск-УральскийЗемельный участок: Чистый участок без построения, давно не использовался по назначению, скважина на двух соседей, электричество рядом с участком....
    • 10 сот.
    400 000 Р
    Агент
    +7 (982) Показать номер
    Посмотреть контакты
    Участок в Свердловская область, Каменский муниципальный округ, пос. ... - Фото 1
    Участок в Свердловская область, Каменский муниципальный округ, пос. ... - Фото 2
    участок 18 соток

    Продается, земельный участок 18,9 сот. в шикарном коттеджном поселке Солнечный, в 2 км на восток от с. Николо-Павловское. Красивое, живописное, доступное место. На участке лесная зона. Вырубка леса разрешена. Земельный участок в собственности. Размежеван....
    • 18 сот.
    400 000 Р
    Агент
    +7 (912) Показать номер
    Посмотреть контакты
    Участок в Свердловская область, Каменский муниципальный округ, деревня ... - Фото 1
    Участок в Свердловская область, Каменский муниципальный округ, деревня ... - Фото 2
    участок 23 сотки

    Участок под строительство дома, 23,85 соток, ЛПХ, д. Малая Белоносова (15 км от Каменска-Уральского, 85 км от Екатеринбурга). Электричество рядом.ID объекта в нашей базе: 26008
    • 23 сот.
    400 000 Р
    Агент
    +7 (912) Показать номер
    Посмотреть контакты

    Не нашли подходящего объявления?

    Оставьте заявку, и наши риэлторы подберут земельный участок в районе Перебора

    (0)