Реализация объекта недвижимости приостановлена

Информация о квартире

58.0 м2
Площадь
3
Комнаты
5
Этаж
10
Этажность

Дополнительная информация

Тип дома
панельный
Развернуть

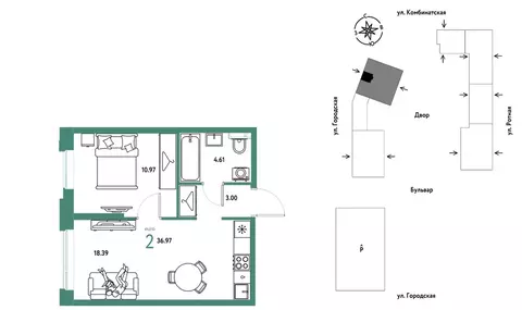
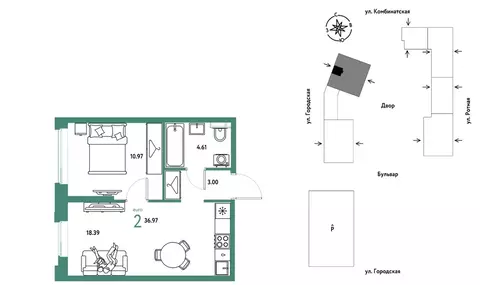
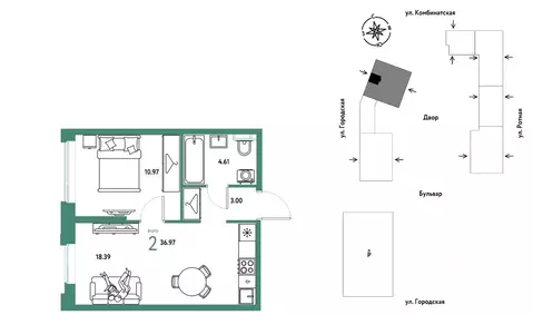
3-к кв. Свердловская область, Каменск-Уральский Октябрьский мкр, ...

Продаётся 3-комнатная квартира в строящемся доме (Дом 1), срок сдачи: II-кв. 2026, общей площадью 58.64 кв.м., на 5 этаже. Новый жилой комплекс Сириус от застройщика СЗ Сириус-Северасположен по адресу: г. Каменск-Уральский, микрорайон Октябрьский, улица Чайковского.

Читать полностью

    Реализация объекта недвижимости приостановлена

    Не нашли подходящего объявления?

    Оставьте заявку, и наши риэлторы подберут квартиру в новостройке в районе Каменска-Уральского

    (0)