3 856 Р 49 $ или 43

Информация об помещении

2
Этаж

Состояние и оснащение

Количество этажей
2
Развернуть
Агент
+7 (912) 251-03-29
Начать чат с агентом

Помещение свободного назначения в Свердловская область, Ирбитский ...

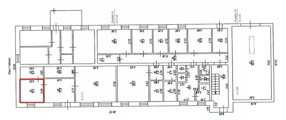
Сдаются в аренду нежилые помещения свободного назначения, находящиеся на 2 этаже 2-эт. нежилого административно-производственного здания площадью 11,9 и 40,3 кв.м (два смежных помещения).Возможно установление краткосрочных арендных каникул.Помещения обеспечены электроснабжением, водоснабжением и отоплением. С/у на этаже. Помещение подойдет для офисного сегмента. Коммунальные, эксплуатационные услуги в стоимость арендной платы входят. Охрану, уборку помещения, мест общего пользования, прилегающей территории, вывоз ТБО арендатор осуществляет самостоятельно. Цена указана с учетом НДС 20 . Аренда от собственника, без посредников. Условия аренды уточняйте по телефону, указанному в объявлении. Звоните Ответим на все вопросы.

Читать полностью
    Позвонить Написать
    3 856 Р49 $ или 43
    Агент
    +7 (912) 251-03-29
    Начать чат с агентом
    Похожие предложения
    Помещение свободного назначения в Свердловская область, Сысертский ... - Фото 1
    Помещение свободного назначения в Свердловская область, Сысертский ... - Фото 2
    Сдается в аренду нежилое помещение 26,6 кв.м., в 1-эт. здании. Фактический адрес здания: Свердловская область, Сысертский район, с. Никольское ул. Ленина, д. 14.Здание отапливается в холодное время года, воды и канализации нет.Если арендатор захочет сделать...
    • 1/1 эт.
    3 900 Р
    Агент
    +7 (912) Показать номер
    Посмотреть контакты
    Помещение свободного назначения в Свердловская область, Нижний Тагил ... - Фото 1
    Помещение свободного назначения в Свердловская область, Нижний Тагил ... - Фото 2
    Помещение в центре Выи, у Феникса. Цоколь. Есть вытяжка, отопление, водоснабжение, и другие помещения разных площадей от 11 до 46 м. Можно снять общую площадь 445 м, ремонт и перегородки по договоренности. Звоните обсудим подробности по телефону или при...
    • -1/5 эт.
    4 000 Р
    Агент
    +7 (982) Показать номер
    Посмотреть контакты
    Помещение свободного назначения в Свердловская область, Новолялинский ... - Фото 1
    Сдаются в аренду нежилые помещения свободного назначения в 2-эт. нежилом административно-производственном здании: на 1-м этаже - 13,4 кв.м,на 2-м этаже -10,8 кв.м и 19,1 кв.м. Помещение обеспечено электроснабжением (0,4 кВт), отоплением, водоснабжение...
    • 2/2 эт.
    3 800 Р
    Агент
    +7 (912) Показать номер
    Посмотреть контакты
    Помещение свободного назначения в Иркутская область, Братск ул. ... - Фото 1
    Помещение свободного назначения в Иркутская область, Братск ул. ... - Фото 2
    Данные получены с сайта ГИС Торги.помещение 34
    • 2 этажа
    3 875 Р
    Агент
    +7 (914) Показать номер
    Посмотреть контакты
    Помещение свободного назначения в Липецкая область, Липецк ул. Германа ... - Фото 1
    Помещение свободного назначения в Липецкая область, Липецк ул. Германа ... - Фото 2
    Данные получены с сайта ГИС Торги.• Год постройки: 1968 • Материал стен: кирпич • Вид нежилого помещения: встроенное • Расположение: наземное • Благоустройство: отопление, электроснабжение, водоснабжение
    3 857 Р
    Агент
    +7 (919) Показать номер
    Посмотреть контакты

    Не нашли подходящего объявления?

    Оставьте заявку, и наши риэлторы подберут псн в районе Зайково

    (0)