2 800 000 Р 36 800 $ или 31 570

Информация о квартире

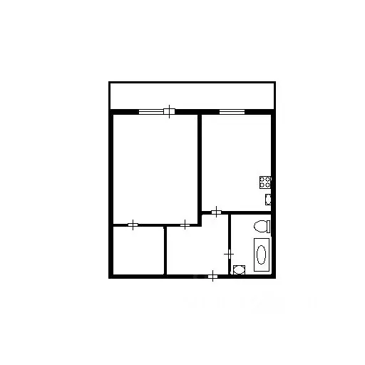
42 м2
Площадь
23 м2
Жилая
7 м2
Кухня
2
Комнаты
2
Этаж
2
Этажность
Развернуть
Агент
+7 (912) 050-26-17
Начать чат с агентом

2-комнатная квартира: Свердловская область, Ирбитское муниципальное ...

Продается двухкомнатная квартира на втором этаже двухэтажного кирпичного дома. Объект отличается продуманной планировкой: изолированные комнаты и выход на просторную застекленную лоджию как из кухни, так и из жилой комнаты, что обеспечивает дополнительное светлое пространство и панорамный вид на окружающую природу. Квартира полностью готова к проживанию: установлены пластиковые стеклопакеты, современные межкомнатные двери и надежная входная дверь, смонтирован фильтр для воды, раздельный санузел. В стоимость входит не только сама квартира, но и комплекс хозяйственных построек: капитальный железный гараж с сухой смотровой ямой и двумя сараями, большая хозяйственная постройка из шлакоблоков, а также отдельное помещение в подвале дома для хранения запасов. К объекту прилагается ухоженный участок с садом из плодовых деревьев и ягодных кустарников, огородом площадью 4 сотки и двумя теплицами. Главное преимущество — локация в тихом, экологически чистом месте с непосредственной близостью к реке, что открывает возможности для активного отдыха и единения с природой. При продаже остаются шкаф-купе во всю стену в прихожей, крупная мебель и водонагреватель. Рассматриваются разумные предложения по цене. Код пользователя: 47380Номер в базе:

Читать полностью

    Для того, чтобы купить двухкомнатную квартиру по адресу: Фомина, ул. Гагарина, 8, позвоните по телефону +7 (912) 050-26-17. Торопитесь! Объявление №30092169760 о продаже двухкомнатной квартиры опубликовано 02 декабря 2025.

    Позвонить Написать
    2 800 000 Р36 800 $ или 31 570
    Агент
    +7 (912) 050-26-17
    Начать чат с агентом
    Похожие предложения
    2-комнатная квартира: Пионерский, Лесная улица, 5 (49.7 м) - Фото 1
    2-комнатная квартира: Пионерский, Лесная улица, 5 (49.7 м) - Фото 2
    2-комнатная квартира, общая площадь 49м², жилая 37м², кухня 8м²

    Продается уютная 2к.кв в перспективном районе, пгт Пионерский. В шаговой доступности детский сад, школа, стадион, спортивный комплекс с бассейном. Во дворе современная детская площадка. Квартира очень теплая с двумя изолированной комнатами и очень удачной...
    • 49 м²
    • 2-ком
    • 2/2 эт.
    2 900 000 Р
    Агент
    +7 (958) Показать номер
    Посмотреть контакты
    общая площадь 34м²

    Данные в объявлении обновляются раз в сутки. Подробные параметры объекта, актуальные данные и НДС посмотрите на сайте электронных торгов.
    • 34 м²
    • 1/16 эт.
    2 795 542 Р
    Агент
    +7 (982) Показать номер
    Посмотреть контакты
    2-к кв. Свердловская область, Нижний Тагил Балакинская ул., 43 (53.0 ... - Фото 1
    2-к кв. Свердловская область, Нижний Тагил Балакинская ул., 43 (53.0 ... - Фото 2
    2-комнатная квартира, общая площадь 53м², кухня 8м²

    Продаётся двухкомнатная квартира по улице Балакинской на Тагилстрое. Квартира общей площадью 53 м2, расположена на третьем этаже пятиэтажного дома улучшенной планировки. В квартире выполнен косметический ремонт, заменена электропроводка, счетчики на воду....
    • 53 м²
    • 2-ком
    • 3/5 эт.
    • панельный
    2 750 000 Р
    Агент
    +7 (912) Показать номер
    Посмотреть контакты
    1-к кв. Свердловская область, Первоуральск ул. Ленина, 19Б (27.8 м) - Фото 1
    1-к кв. Свердловская область, Первоуральск ул. Ленина, 19Б (27.8 м) - Фото 2
    1-комнатная квартира, общая площадь 27м², кухня 5м²

    Квартира в состоянии под ремонт Дом теплый, крыша после кап ремонта в 2025 году.Квартира освобождена, готовы передать ключи в день сделке.ID объекта в нашей базе: 748
    • 27 м²
    • 1-ком
    • 5/5 эт.
    • панельный
    2 799 000 Р
    Агент
    +7 (912) Показать номер
    Посмотреть контакты
    1-к кв. Свердловская область, Екатеринбург Вторчермет жилрайон, ул. ... - Фото 1
    1-к кв. Свердловская область, Екатеринбург Вторчермет жилрайон, ул. ... - Фото 2
    1-комнатная квартира, общая площадь 28м², жилая 15м², кухня 6м²

    Арт.. Срочно продам однокомнатную квартиру в 32 Военном городке. Квартира светлая солнечная очень теплая. Множество муниципальных детских садиков в шаговой доступности, продуктовые магазины, до остановки общественного транспорта 5 минут.Подъезд чистый...
    • 28 м²
    • 1-ком
    • 4/5 эт.
    • панельный
    2 800 000 Р
    Агент
    +7 (982) Показать номер
    Посмотреть контакты

    Не нашли подходящего объявления?

    Оставьте заявку, и наши риэлторы подберут квартиру в районе Фоминой

    (0)