186 000 Р 2 370 $ или 2 000

Информация об помещении

1
Этаж

Состояние и оснащение

Количество этажей
25
Развернуть
Агент
+7 (982) 700-70-82
Начать чат с агентом

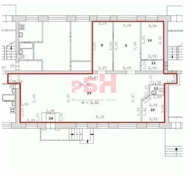
Торговая площадь в Свердловская область, Екатеринбург ул. Черкасская, ...

Сдаем в аренду магазин в новом ЖК Философия ИдеалистовГ. Екатеринбург ул. Черкасская 1S-77.6м2Высота потолка 5мЭл мощность 15КвтСмонтирована приточная вентиляцияПанорамное остекление Вывеска на фасадеПрямой договор от собственникаЗачет ремонта в стоимость арендыАрендные каникул

Читать полностью
    Позвонить Написать
    186 000 Р2 370 $ или 2 000
    Агент
    +7 (982) 700-70-82
    Начать чат с агентом
    Похожие предложения
    Торговая площадь в Свердловская область, Екатеринбург ул. Московская, ... - Фото 1
    Торговая площадь в Свердловская область, Екатеринбург ул. Московская, ... - Фото 2
    Предлагается в аренду помещение торгового назначения, есть кабинеты для адмистрации и комнаты для склада. Общей площадью 133, 2 кв. м.Без комиссии для арендаторов.- Помещение расположено в центральной части города в Ленинском районе, рядом с ТРЦ Фан-Фан;-...
    • 1/5 эт.
    180 000 Р
    Агент
    +7 (912) Показать номер
    Посмотреть контакты
    Торговая площадь в Свердловская область, Екатеринбург ул. Академика ... - Фото 1
    Торговая площадь в Свердловская область, Екатеринбург ул. Академика ... - Фото 2
    Предлагается в аренду торговое помещение, расположенное по адресу:г. Екатеринбург, ул. Ландау, 34 (ЖК Квартал 12 ) Характеристики помещения:Общая площадь 100,11 кв.мОтдельный входВысота потолков 5 мВозможность разместить вывескуЭл.мощность 15 кВт (возможно...
    • 1/23 эт.
    180 198 Р
    Агент
    +7 (966) Показать номер
    Посмотреть контакты
    Торговая площадь в Свердловская область, Екатеринбург бул. Золотистый, ... - Фото 1
    Торговая площадь в Свердловская область, Екатеринбург бул. Золотистый, ... - Фото 2
    Объект 195208. Сдам просторное торговое помещение с отличной проходимостью. Идеально для розничного магазина, шоу-рума, кофейни или салона услуг.Площадь: единый светлый зал с высокими потолками и возможностью зонирования. Большие витринные окна, санузел....
    • 1/16 эт.
    200 000 Р
    Агент
    +7 (912) Показать номер
    Посмотреть контакты
    Торговая площадь в Свердловская область, Екатеринбург ул. Свердлова, ... - Фото 1
    Торговая площадь в Свердловская область, Екатеринбург ул. Свердлова, ... - Фото 2
    Креативное пространство на разных уровнях с внутренними площадками для вашего бизнеса в современном ЖК Екатерининский Парк Забудьте о скучных коробках Мы предлагаем уникальное помещение 101 м на 1-м этаже, где продуманная до мелочей планировка уже...
    • 1/30 эт.
    200 000 Р
    Агент
    +7 (912) Показать номер
    Посмотреть контакты
    Торговая площадь в Свердловская область, Екатеринбург ул. Колмогорова, ... - Фото 1
    Торговая площадь в Свердловская область, Екатеринбург ул. Колмогорова, ... - Фото 2
    Объект 194875. Сдам универсальное торговое помещение на 1 этаже отдельностоящего офисного здания.Единый зал 148.3 кв.м. с остеклением на две стороны позволяет создать любую планировку и наполнить пространство естественным светом, создавая приятную атмосферу...
    • 1/3 эт.
    195 300 Р
    Агент
    +7 (912) Показать номер
    Посмотреть контакты

    Не нашли подходящего объявления?

    Оставьте заявку, и наши риэлторы подберут торговое помещение в районе Екатеринбурга

    (0)