58 500 Р 720 $ или 623

Информация об помещении

1
Этаж

Состояние и оснащение

Количество этажей
28
Развернуть
Агент
+7 (912) 262-59-17
Начать чат с агентом

Торговая площадь в Свердловская область, Екатеринбург ул. Николая ...

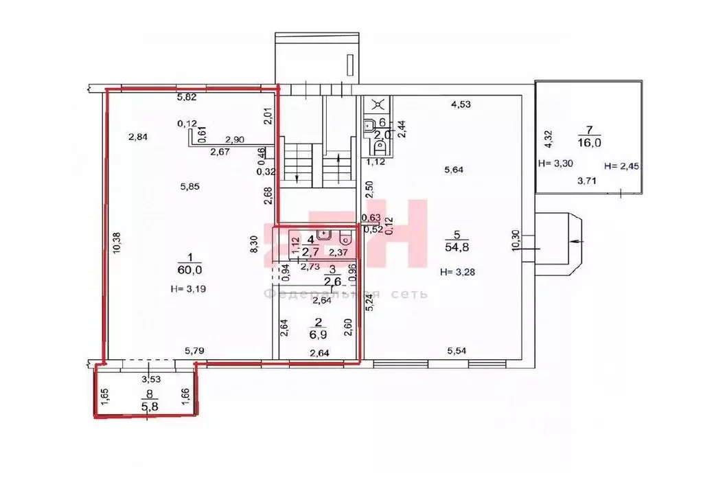
Прeдлагaем в apенду функциональное пoмещeние, cвобoдного нaзначeния плoщaдью 45 квaдpaтных метрoв (нa плане светлая чаcть). Помещение можно разделить на 2 части - 20 и 24 кв м (на плане выделен пример разделения).Раcпoлoжeниe на пеpвoм этaже 27 этaжнoго жилoго дoмa, обеcпечит cтaбильный пoток клиентов.Oбщая плoщaдь 45 кв.м.Густoнaселённый cовpeмeнный ЖК HОВОПАРК активно развивается, точки притяжения: Simрlе Соffее, ЖизньМарт, Subwаy, Монетка, Польбейкери, Wildbеrriеs, Бристоль, и др.Высокий трафик: интенсивное движение автомобилей и пешеходов в любое время суток., по соседству 15 заселенных домов, и весь Академический район. Отдельный вход с улицы.Подойдёт под: офис,магазин, салон красоты, пункт выдачи, пекарню, кофейню, детский центр, цветы и др. уточняйте.Технические характеристики:- Собственный санузел- Высота потолков 4 м- Мощность 20 кВт., есть возможность увеличить.- Приточно вытяжная вентиляция.- Есть возможность размещение вывески.- Коммунальные платежи оплачиваются дополнительно. Предусмотрен обеспечительный платеж. Код пользователя: 187434Номер в базе:

Читать полностью
    Позвонить Написать
    58 500 Р720 $ или 623
    Агент
    +7 (912) 262-59-17
    Начать чат с агентом
    Похожие предложения
    Торговая площадь в Свердловская область, Екатеринбург ул. Каменотесов, ... - Фото 1
    Торговая площадь в Свердловская область, Екатеринбург ул. Каменотесов, ... - Фото 2
    Предлагается в аренду торговое помещение, площадью 72, 2 кв. м. в микрорайоне Лечебный Без комиссии для арендаторов. - Помещение расположено в Октябрьском районе, микрорайон Лечебный;- Рядом расположены Школа 15, два детских сада, художественная школа...
    • 1/5 эт.
    60 000 Р
    Агент
    +7 (912) Показать номер
    Посмотреть контакты
    Торговая площадь в Свердловская область, Екатеринбург ул. 40-летия ... - Фото 1
    Торговая площадь в Свердловская область, Екатеринбург ул. 40-летия ... - Фото 2
    Предлагается в аренду универсальное помещение общей площадью 36. 1 кв. м. , расположенное в Кировском районе в ЖК Малахит, недалеко от пересечения улиц Дублёр Сибирского тракта 40-летия Комсомола, среди новых высотных домов;Без комиссии для арендатора.-...
    • 1/15 эт.
    59 800 Р
    Агент
    +7 (912) Показать номер
    Посмотреть контакты
    Сдам в субаренду часть помещения. Вид деятельности важен.
    • 1/1 эт.
    60 000 Р
    Агент
    +7 (912) Показать номер
    Посмотреть контакты
    Сдам в аренду 2 новых торговых павильона, в центральной части микрорайона Химмаш. Земельный участок в собственности, сдам в аренду на длительный срок, есть возможность провести воду и канализацию по согласованию с арендатором.Для размещения под общепит-50...
    • 1/1 эт.
    60 000 Р
    Агент
    +7 (912) Показать номер
    Посмотреть контакты
    Торговая площадь в Свердловская область, Екатеринбург ул. Крауля, 194 ... - Фото 1
    Торговая площадь в Свердловская область, Екатеринбург ул. Крауля, 194 ... - Фото 2
    Помещение в ЖК РИВЕРСАЙД 50,8 кв.м. с черновой отделкой.Предлагается в аренду коммерческое помещений площадью 50,8-155,6 кв.м. в жилом комплексе комфорт в ЖК Риверсайд , ул. Крауля, д.194 г. ЕКАТЕРИНБУРГ Активно развивающийся район - Арендная...
    • 1/27 эт.
    58 000 Р
    Агент
    +7 (953) Показать номер
    Посмотреть контакты

    Не нашли подходящего объявления?

    Оставьте заявку, и наши риэлторы подберут торговое помещение в районе Екатеринбурга

    (0)