700 000 Р 8 620 $ или 7 460

Информация об помещении

1
Этаж

Состояние и оснащение

Количество этажей
13
Развернуть
Агент
+7 (912) 670-84-17
Начать чат с агентом

Торговая площадь в Свердловская область, Екатеринбург ул. Хохрякова, ...

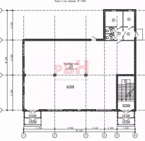
Предлагается в аренду торговое помещение, расположенное в Клубном доме На Хохрякова по адресу: г. Екатеринбург, ул.Хохрякова, д.66.Общая площадь: 298,4 кв.м.Первый этаж.Отдельный вход.Высота потолков: 4,85 м.Имеется зона разгрузки.Электрическая мощность: 114,6 кВт. Свободная планировка.Чистовая отделка.Вытяжная вентиляция (сечение 500/400, выход на кровлю).Инфраструктура:Клубный дом на Хохрякова - жилой комплекс в самом сердце города, сочетающий современную авторскую архитектуру и восстановленные объекты культурного наследия.Комплекс состоит из трёх секций переменной этажности от 3 до 13 этажей.Клубный дом находится в историческом центре города, на улице Хохрякова и окружён премиальной инфраструктурой: в шаговой доступности ТРЦ Гринвич , Datsyuk-Арена, спорткомплекс Юность , парк Зелёная Роща , городской дендрарий, магазины, рестораны и салоны красотыФинансовые условия:Стоимость аренды - в месяц.Коммунальные платежи оплачиваются дополнительно.Не упустите возможность арендовать это торговое помещение и начать успешное дело прямо сейчас Свяжитесь с нами для получения более подробной информации и организации просмотра.Без комиссии с арендатора Номер объекта: 1/546492/43

Читать полностью
    Позвонить Написать
    700 000 Р8 620 $ или 7 460
    Агент
    +7 (912) 670-84-17
    Начать чат с агентом
    Похожие предложения
    Торговая площадь в Свердловская область, Алапаевск ул. Ленина, 89 (900 ... - Фото 1
    Торговая площадь в Свердловская область, Алапаевск ул. Ленина, 89 (900 ... - Фото 2
    Предлагается в аренду здание в центре г. Алапаевск, 900 кв. м.Сдача осенью 2025 г. , сейчас этап строительства.Без комиссии для арендатора.- находится в центре г. Алапаевск на улице Ленина;- отличный пешеходный и автомобильный трафик;- развитая инфраструктура,...
    • 1/2 эт.
    700 000 Р
    Агент
    +7 (912) Показать номер
    Посмотреть контакты
    Торговая площадь в Москва наб. Пресненская, 12 (100 м) - Фото 1
    Торговая площадь в Москва наб. Пресненская, 12 (100 м) - Фото 2
    Сдается в аренду помещение в IQ Квартале на трафике более 300 чел/в часВозле эскалатора напротив метро.Коммуникации под любой вид деятельности.В деловом квартале более 30 000 сотрудников плюс транзит с метро в другие башни через подземный переход.Рядом...
    • 1/42 эт.
    700 000 Р
    Агент
    +7 (986) Показать номер
    Посмотреть контакты
    Торговая площадь в Москва Новоясеневский просп., 1 (445 м) - Фото 1
    Торговая площадь в Москва Новоясеневский просп., 1 (445 м) - Фото 2
    БЕЗ КОМИССИИ ТЦ Спектр , рядом с метро. Сдаётся под магазин (кроме продуктового) помещение свободной планировки на 2-м этаже площадью 445 кв.м. Стандартная отделка.НДС включен. Новоясеневский проспект, 1, 1 минута пешком от метро Теплый стан. ЛОТ ...
    • 2/5 эт.
    699 985 Р
    Агент
    +7 (916) Показать номер
    Посмотреть контакты
    Торговая площадь в Ульяновская область, Ульяновск ул. Карла Маркса, ... - Фото 1
    Торговая площадь в Ульяновская область, Ульяновск ул. Карла Маркса, ... - Фото 2
    ОписаниеТорговое Помещение Офис 700 м2 БЕЗ КОМИССИИ ДЛЯ АРЕНДАТОРА Номер объекта в базе 21344Площадь: 700 кв.мЭтаж: 1Этажность: 3Все коммуникации проведеныДоступ в помещение: 9-20Количество входов: 3Коммунальные платежи: Оплачиваются отдельно (уточняйте)...
    • 1/3 эт.
    700 000 Р
    Агент
    +7 (986) Показать номер
    Посмотреть контакты
    Торговая площадь в Ульяновская область, Ульяновск Ульяновский просп., ... - Фото 1
    Торговая площадь в Ульяновская область, Ульяновск Ульяновский просп., ... - Фото 2
    ОписаниеТорговое Офис Общепит Свободного назначения Салон Красоты 695 м2БЕЗ КОМИССИИ ДЛЯ АРЕНДАТОРА Номер объекта в базе 20472Площадь: 695 кв.м и 260 кв м Можно общей 955 кв м Этаж: 1Этажность: 1Все коммуникации проведеныДоступ в помещение: 24/7Количество...
    • 1/9 эт.
    695 000 Р
    Агент
    +7 (986) Показать номер
    Посмотреть контакты

    Не нашли подходящего объявления?

    Оставьте заявку, и наши риэлторы подберут торговое помещение в районе Екатеринбурга

    (0)