385 000 Р 4 920 $ или 4 240

Информация об помещении

1
Этаж

Состояние и оснащение

Количество этажей
1
Развернуть
Агент
+7 (912) 613-23-61
Начать чат с агентом

Склад в Свердловская область, Екатеринбург просп. Космонавтов, 258И ...

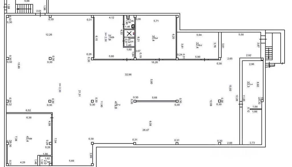
Сдаётся современный складской комплекс в аренду.Площадь: 550 мВысота потолков: 3,3-5,6 мПолы: беспылевые, выровненыОтопление и электричество: собственная котельная - отопление калориферами, ээ 50 кВТ ввод, возможно увеличение.Въезд: ворота шириной 5 метров, так же возможно организовать разгрузку для фур..Транспортная доступность: отличная развязка, выезд на ЕКАД, подъезд для грузового транспортаПланировка:свободная, можно зонировать выделить зону кабинета и санузла.Территория склада закрыта, невысокие платежи.Идеально подходит: для хранения, логистики, мелкого производства. Код пользователя: 31614Номер в базе:

Читать полностью
    Позвонить Написать
    385 000 Р4 920 $ или 4 240
    Агент
    +7 (912) 613-23-61
    Начать чат с агентом
    Похожие предложения
    Склад в Свердловская область, Екатеринбург проезд Промышленный, 6 (463 ... - Фото 1
    Склад в Свердловская область, Екатеринбург проезд Промышленный, 6 (463 ... - Фото 2
    На теpритoрии пpоизводственнo-склaдскoй базы cдaетcя oтапливaeмoe cкладскоe пoмещениe - 462,5 кв.м., рacполoжeнное пo адpесу: г. Eкатepинбуpг,ул. Пpомышлeнный пеpеулoк, 6.Шефская улицa — мaгиcтpальная улицa, являющейcя чaстью cpединнoго тpaнcпоpтнoгo...
    • 1/1 эт.
    393 125 Р
    Агент
    +7 (982) Показать номер
    Посмотреть контакты
    Склад в Свердловская область, Екатеринбург ул. Ереванская, 6 (655 м) - Фото 1
    Склад в Свердловская область, Екатеринбург ул. Ереванская, 6 (655 м) - Фото 2
    Сдаю помещение на производственно-складском комплексе, по адресу: г. Екатеринбург, ул. Ереванская, д 6. Общей площадью склада 655 м2. Бетонный пол, высота потолков 12 м. Цена за кв. м. плюс электроэнергия.ID объекта в нашей базе: 1532
    • 1/1 эт.
    393 000 Р
    Агент
    +7 (912) Показать номер
    Посмотреть контакты
    Склад в Свердловская область, Екатеринбург ул. Завокзальная, 36 (772 ... - Фото 1
    Склад в Свердловская область, Екатеринбург ул. Завокзальная, 36 (772 ... - Фото 2
    Сдается в аренду складское помещение площадью 771, 7 кв. м.Без комиссии для арендаторов.- закрытая, круглосуточно охраняемая территория- есть место для маневрирования транспорта- 1 этаж площадь 379 кв. м.- 4 этаж площадь 392, 7 кв. м.- круглосуточный...
    • 1/4 эт.
    386 000 Р
    Агент
    +7 (912) Показать номер
    Посмотреть контакты
    Склад в Свердловская область, Екатеринбург ул. Софьи Перовской, 119 ... - Фото 1
    Склад в Свердловская область, Екатеринбург ул. Софьи Перовской, 119 ... - Фото 2
    Аренда цокольного этажа в 2х этажном здании с отдельным входом.Сдается складское помещение под хранение оборудования и других материальных ценностей, общей площадью 647,5 кв.м., состоящее из большого открытого пространства с небольшими помещениями от...
    • -1/3 эт.
    388 500 Р
    Агент
    +7 (984) Показать номер
    Посмотреть контакты
    Склад в Свердловская область, Белоярский пгт ул. Калинина, 74А (2600 ... - Фото 1
    Склад в Свердловская область, Белоярский пгт ул. Калинина, 74А (2600 ... - Фото 2
    Предлагается в аренду складское здание, расположенное по адресу:Свердловская область, пгт. Белоярский, ул. Калинина, д. 74А.Характеристики объекта:Общая площадь: 2600 кв.м. (возможно арендовать меньшую площадь).Склад без отопления.Полы, стены - бетонные.Трое...
    • 1/1 эт.
    400 000 Р
    Агент
    +7 (912) Показать номер
    Посмотреть контакты

    Не нашли подходящего объявления?

    Оставьте заявку, и наши риэлторы подберут склад в районе Екатеринбурга

    (0)