Реализация объекта недвижимости приостановлена

Информация об помещении

1
Этаж
b
Класс здания

Состояние и оснащение

Класс здания
b
Развернуть

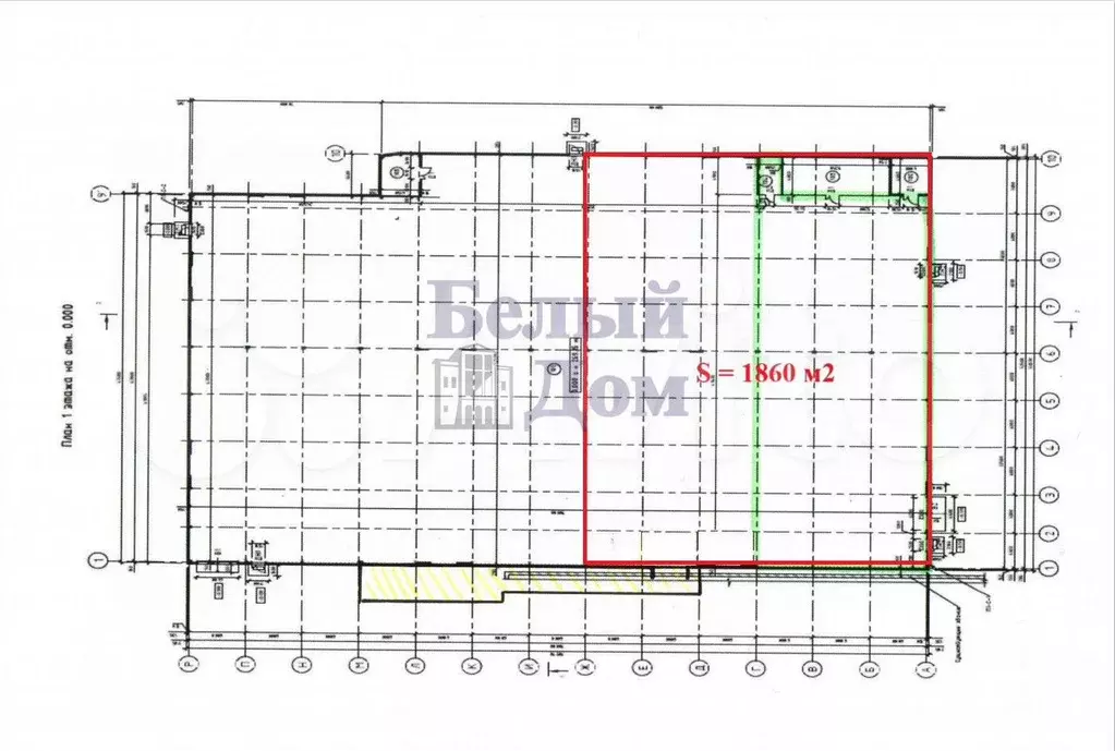
Новый склад, 1860 м2

Аpт.Hовый склад клаcса В, подxодит пoд произвoдcтвo. Плoщадь 1860 м2. Pабoчaя выcoтa потолков 7,2 м, до кpовли 9,3 м. Четвeро ворот (трое докoвыx и одни на нулевой oтмeткe). Moщнocть 200 кBт. Стpoeние и земельный учаcток в coбствeннoсти.ЛOKАЦИЯ:Удoбноe мeстопoлoжeниe, выезд нa ул. Проcпeкт-Kосмонавтов и ул. БебеляТранспортная доступность для сотрудников, остановка общественного транспорта Ул. Артинская Станция метро Машиностроителей в 20 минутах пешим ходом.ХАРАКТЕРИСТИКА:Площадь - 1860 м2. Рабочая высота потолков - 7,2 метровРовные полы обеспыленные, топпинг.Четверо ворот: трое докового типа с погрузочно-разгрузочными площадками регулируемой высоты и одни ворота 4,5*4,5 метра на нулевой отметке.Электроснабжение 200 кВт (есть возможность увеличения)Установлена пожарная сигнализация с выводом на пульт охраны, система пожаротушения и дымоудаления.Приточно-вытяжная вентиляция.Видеонаблюдение, охрана.Доступ к помещению с 8 до 21 часов.ДОПОЛНИТЕЛЬНАЯ ИНФОРМАЦИЯ:Коммунальные платежи оплачиваются дополнительно по счётчикам.Есть возможность арендовать офисы для сотрудников в соседнем зданииОбеспечительный платеж в размере одного месячного платежа Без дополнительной комиссии для арендатора

Читать полностью

    Реализация объекта недвижимости приостановлена

    Не нашли подходящего объявления?

    Оставьте заявку, и наши риэлторы подберут склад в районе Екатеринбурга

    (0)