140 000 Р 1 730 $ или 1 500

Информация об помещении

1
Этаж

Состояние и оснащение

Количество этажей
10
Развернуть
Агент
+7 (912) 662-71-89
Начать чат с агентом

Помещение свободного назначения в Свердловская область, Екатеринбург ...

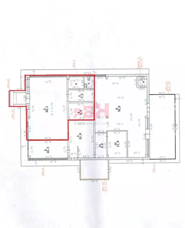
Предлагается в аренду универсальное помещение на трафике, пересечении улиц Якутская-АлтайскаяБез комиссии для арендаторов- расположено на первом этаже 10-ти этажного дома (ЖК на Алтайской) на пересечении улиц Якутская-Алтайская;- рядом размещаются: ТС Красное и белое , аптека Апрель, стоматология, товары для животных, товары для дома и табачный магазин, СДЭК, секция карате, медицинские анализы Хеликс, детский развивающий центр;- через дорогу - автобусная остановка Алтайская ;- пешеходный и автомобильный трафик;- общая площадь 102, 9 кв. м. ; - есть место под вывеску;- отдельный вход;- круглосуточный доступ;- высота потолков 2, 6 м. ;- мощность 10 кВт;Подойдет под ПВЗ, аптеку, парикмахерскую, зоомагазин, образовательные услуги и другие направления бизнесаСтоимость аренды:уб в месяц (уб/м)Коммунальные платежи оплачиваются дополнительноПредусмотрен обеспечительный платеж в размере месячной арендыБолее подробную информацию уточняйте у наших специалистов------------------------------------------------- -----Регион Бизнес НедвижимостьКоммерческая недвижимостьБез комиссии для арендаторовАрт.

Читать полностью
    Позвонить Написать
    140 000 Р1 730 $ или 1 500
    Агент
    +7 (912) 662-71-89
    Начать чат с агентом
    Похожие предложения
    Помещение свободного назначения в Свердловская область, Екатеринбург ... - Фото 1
    Помещение свободного назначения в Свердловская область, Екатеринбург ... - Фото 2
    ПОМЕЩЕНИЕ на первой линии с автомобильным и пешеходным трафиком.Без комиссии для арендаторов. -Помещение расположено в Чкаловском районе в зоне плотной жилищной застройки на улице Щербакова;-Хорошая транспортная доступность, рядом остановка общественного...
    • 1/16 эт.
    140 000 Р
    Агент
    +7 (912) Показать номер
    Посмотреть контакты
    Помещение свободного назначения в Свердловская область, Екатеринбург ... - Фото 1
    Помещение свободного назначения в Свердловская область, Екатеринбург ... - Фото 2
    Предлагается в аренду универсальное помещение общей площадью 126, 9 кв. м.Без комиссии для арендаторов- Помещение расположено в центральной части города Екатеринбург, в подвале жилого дома, перекресток улиц проспект Ленина и Гагарина;- хорошо просматривается...
    • -1/5 эт.
    139 590 Р
    Агент
    +7 (912) Показать номер
    Посмотреть контакты
    Помещение свободного назначения в Свердловская область, Екатеринбург ... - Фото 1
    Помещение свободного назначения в Свердловская область, Екатеринбург ... - Фото 2
    Предлагается в аренду половина отдельно стоящего здания, площадь 122 кв. м Земля в собственности 10 соток.Без комиссии для арендаторов.- Находится в г. Екатеринбург, район Уралмаш недалеко от метро пр. Космонавтов; - Хорошая транспортная доступность,...
    • 1/1 эт.
    140 000 Р
    Агент
    +7 (912) Показать номер
    Посмотреть контакты
    Помещение свободного назначения в Свердловская область, Екатеринбург ... - Фото 1
    Помещение свободного назначения в Свердловская область, Екатеринбург ... - Фото 2
    ПРЕДЛАГАЕТСЯ В АРЕНДУ ПОМЕЩЕНИЕ 175 кв. м Без комиссии для арендаторов- помещение расположено на втором этаже 5-ти этажного бизнес-центра Royal;- хорошая транспортная доступность, рядом остановка общественного транспорта Таватуйская , Таганский ряд...
    • 2/5 эт.
    140 000 Р
    Агент
    +7 (912) Показать номер
    Посмотреть контакты
    Помещение свободного назначения в Свердловская область, Екатеринбург ... - Фото 1
    Помещение свободного назначения в Свердловская область, Екатеринбург ... - Фото 2
    Сдаются в аренду апартаменты в Свобода Residens, 22 видовой этаж, свободная планировка. Помещение свободного назначения правильной прямоугольной формы с тремя большими окнами. Отделка чистовая, комбинированная. Помещение выгодно отличается своей универсальностью...
    • 22/27 эт.
    130 000 Р
    Агент
    +7 (912) Показать номер
    Посмотреть контакты

    Не нашли подходящего объявления?

    Оставьте заявку, и наши риэлторы подберут псн в районе Екатеринбурга

    (0)