225 000 Р 2 780 $ или 2 410

Информация об помещении

2
Этаж

Состояние и оснащение

Количество этажей
2
Развернуть
Агент
+7 (912) 662-71-89
Начать чат с агентом

Помещение свободного назначения в Свердловская область, Екатеринбург ...

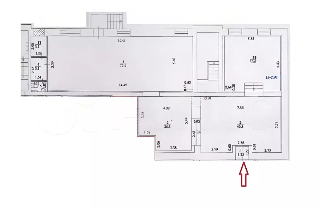
ПРЕДЛАГАЕТСЯ в АРЕНДУ ПОМЕЩЕНИЕ В ОТДЕЛЬНО СТОЯЩЕМ ЗДАНИИ общей площадью 300 кв. м. , расположенного в Верх-Исетском районе на перекрёстке улиц Крауля - Саранская; Без комиссии для арендатора. - развитая инфраструктура: рядом располагаются склады и производственные базы, автозаправочная станция, строительный гипермаркет Леруа Мерлен - в пяти минутах езды находится улица Металлургов, которая в одном направлении обеспечивает комфортный выезд из города, а в другом соединяет с центральными районами города, в непосредственной близости расположена остановка общественного транспорта ТЦ Леруа Мерлен (автобус 38, маршрутное такси), до ближайшей станции метро Геологическая 20 минут на транспорте;- этаж 2/общее количество этажей 2; - помещение готово к работе, сделан хороший ремонт: топинговый пол, стены покрашены, потолок-гипсокартон;- открытая планировка, внутренние стены не несущие;- электрический грузовой подъемник на второй этаж расположенный на улице имеет грузоподъемность 3. 2т. ; - отопление: электрические котлы (3шт), котёл подогреваемый пилетами (1шт);- канализация: накопительная ёмкость;- электрическая мощность 50 кВт с возможностью увеличения;- доступ в помещение: 24/7;- парковка: бесплатная;Сдаваемое в аренду помещение подойдёт под: производство, магазин по продаже различных групп товара, склад и многое другое. Стоимость аренды: 225 000 (Двести двадцать пять тысяч).Коммунальные расходы не включены в стоимость аренды. Более подробную информацию уточняйте у наших специалистов.------------------------------------------------- ----- Регион Бизнес Недвижимость . Коммерческая недвижимость. Без комиссии для арендаторов. Арт.

Читать полностью
    Позвонить Написать
    225 000 Р2 780 $ или 2 410
    Агент
    +7 (912) 662-71-89
    Начать чат с агентом
    Похожие предложения
    Помещение свободного назначения в Свердловская область, Екатеринбург ... - Фото 1
    Помещение свободного назначения в Свердловская область, Екатеринбург ... - Фото 2
    Сдаётся помещение 270 м под склад или производство. Екатеринбург Сдаётся в аренду современное складское или производственное помещение общей площадью 270 кв. м. в районе ул. Малышева - Егоршинский проезд. Идеальное решение для вашего бизнеса Ключевые...
    • 1/2 эт.
    240 000 Р
    Агент
    +7 (982) Показать номер
    Посмотреть контакты
    Помещение свободного назначения в Свердловская область, Екатеринбург ... - Фото 1
    Помещение свободного назначения в Свердловская область, Екатеринбург ... - Фото 2
    СДАЕТСЯ ПОМЕЩЕНИЕ общей площадью 101,4 кв. м.РАСПОЛОЖЕНИЕ И ИНФРАСТРУКТУРА:- Помещение находится в самом центре города.- Помещение расположено на пятом этаже 26-этажного дома ЖК СВОБОДА RESIDENCE — это новый уровень комфорта в сочетании с превосходным...
    • 5/26 эт.
    220 000 Р
    Агент
    +7 (912) Показать номер
    Посмотреть контакты
    Помещение свободного назначения в Свердловская область, Екатеринбург ... - Фото 1
    Помещение свободного назначения в Свердловская область, Екатеринбург ... - Фото 2
    Помещение с отдельным входом на первой линии рядом с метро Уральская. Подойдет под торговлю, услуги, общепит, мощность 75 кВт. В соседях: Бристоль, Монетка, столовая др.
    • 1/1 эт.
    221 400 Р
    Агент
    +7 (982) Показать номер
    Посмотреть контакты
    Помещение свободного назначения в Свердловская область, Екатеринбург ... - Фото 1
    Помещение свободного назначения в Свердловская область, Екатеринбург ... - Фото 2
    Без комиссии риэлтору Сдается коммерческое помещение по адресу: г. Екатеринбург, ул. Таганская,79, р-н Эльмаш — отличное решение для бизнеса или инвестиций Предлагаем вашему вниманию помещение общей площадью 249.4 м. Арендная плата за месяц 230 000р,...
    • 1/16 эт.
    230 000 Р
    Агент
    +7 (982) Показать номер
    Посмотреть контакты
    Помещение свободного назначения в Свердловская область, Екатеринбург ... - Фото 1
    Помещение свободного назначения в Свердловская область, Екатеринбург ... - Фото 2
    ПРЕДЛАГАЕТСЯ в АРЕНДУ ПОМЕЩЕНИЕ свободного назначения общей площадью 290 кв. м Без комиссии для арендаторов. -расположено в центральной части города, рядом находится ЖК Макаровский, метро Динамо; -хорошая транспортная доступность, рядом остановки общественного...
    • -1/5 эт.
    232 000 Р
    Агент
    +7 (912) Показать номер
    Посмотреть контакты

    Не нашли подходящего объявления?

    Оставьте заявку, и наши риэлторы подберут псн в районе Екатеринбурга

    (0)