292 000 Р 3 700 $ или 3 200

Информация о помещении и здании

4
Этаж
4
Этажность
Развернуть
Агент
+7 (912) 613-31-86
Начать чат с агентом

Офис в Свердловская область, Екатеринбург ул. Монтажников, 24 (584 м)

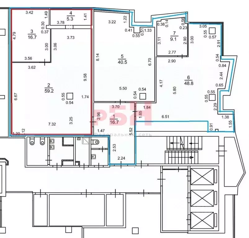
Готовый офис для роста и масштабирования 584 м с полным комплектом опций.Ваш бизнес растет, и ему нужно новое, большее пространство? Мы предлагаем готовое решение Офисное помещение площадью 584 кв. м полностью укомплектовано для старта с первого дня.Сфокусируйтесь на главном — на своем бизнесе. Остальное мы уже предусмотрели:Вход с улицы — ваша свобода. Больше никаких общих коридоров и посторонних лиц. Ваши сотрудники и клиенты ценят комфорт и конфиденциальность.Технологическое сердце. Готовая серверная комната ждет вашего оборудования. Запускайте IT-системы без задержек и сложных монтажных работ.Комфорт как стандарт. Неважно, летом жара или зимой отопительный сезон — в каждом кабинете царит идеальная атмосфера для работы благодаря индивидуальным кондиционерам.Никаких неожиданных затрат. Два санузла уже оборудованы, кондиционеры установлены, свежий ремонт. Вы получаете полностью готовый продукт.Экономьте самое ценное — время и ресурсы. Перенесите свой бизнес в пространство, где каждая деталь работает на вашу эффективность.Узнайте больше о выгодных условиях аренды. Свяжитесь с нами для консультации и просмотра ID объекта в нашей базе: 516

Читать полностью
    Позвонить Написать
    292 000 Р3 700 $ или 3 200
    Агент
    +7 (912) 613-31-86
    Начать чат с агентом
    Похожие предложения
    Офис в Свердловская область, Екатеринбург ул. Колмогорова, 5/2 (203 м) - Фото 1
    Офис в Свердловская область, Екатеринбург ул. Колмогорова, 5/2 (203 м) - Фото 2
    1-й этаж, всего 3 этажа

    Объект 194893. Сдам просторное помещение с отдельным входом.Здание расположено на ул. Колмогорова, 5к1, первая линия, рядом с жилым массивом и плотным автотрафиком. Удобная логистика — парковка перед зданием, возможность разгрузки через запасной выход.Площадь...
    • 1/3 эт.
    283 000 Р
    Агент
    +7 (912) Показать номер
    Посмотреть контакты
    Офис в Свердловская область, Екатеринбург ул. Народной Воли, 52 (118 ... - Фото 1
    Офис в Свердловская область, Екатеринбург ул. Народной Воли, 52 (118 ... - Фото 2
    4-й этаж, всего 8 этажей

    Предлагается в аренду офис в Клубном доме Most .Без комиссии для арендаторов.- Расположен в самом центре Екатеринбурга. Клубный дом Most — это новый комплекс, который относится к элитному классу, что гарантирует широкий спектр дополнительных услуг...
    • 4/8 эт.
    295 500 Р
    Агент
    +7 (912) Показать номер
    Посмотреть контакты
    Офис в Свердловская область, Екатеринбург пл. Обороны, 1 (177 м) - Фото 1
    Офис в Свердловская область, Екатеринбург пл. Обороны, 1 (177 м) - Фото 2
    1-й этаж, всего 5 этажей

    Предлагаю арендовать офисное помещение, район Парковый, город Екатеринбург, пл. Обороны, дом 1.Этаж 1Отдельная входная группаЭвакуационный выход во дворМетраж -175 м2Высота 2,5Эл-во -10 кВтСостояние после кап. ремонтаКабинетная нарезкаЕсть возможность...
    • 1/5 эт.
    300 000 Р
    Агент
    +7 (912) Показать номер
    Посмотреть контакты
    Офис в Свердловская область, Екатеринбург ул. Раевского, 20 (307 м) - Фото 1
    Офис в Свердловская область, Екатеринбург ул. Раевского, 20 (307 м) - Фото 2
    1-й этаж, всего 20 этажей

    Объект 193851. Сдам в аренду офисное помещение 307 кв.м. с отдельным входом на 1 этаже нового ЖК Современник (ул. Раевского, 20). Идеально подойдёт под IT, финансы, проектные организации, учебные центры или клинику.Ключевые преимущества: Прямая аренда...
    • 1/20 эт.
    291 650 Р
    Агент
    +7 (912) Показать номер
    Посмотреть контакты
    Офис в Свердловская область, Екатеринбург ул. Красноармейская, 10 (196 ... - Фото 1
    Офис в Свердловская область, Екатеринбург ул. Красноармейская, 10 (196 ... - Фото 2
    8-й этаж, всего 22 этажа

    ПОМЕЩЕНИЕ общей площадью 196, 2 кв. м. в блоке из трех помещений в центре городаБез комиссии для арендаторов.- Бизнес-центр Антей находится в центре города на кольце улиц Белинского-Малышева-К. Либкнехта. Год постройки: 2004;- Хорошая транспортная...
    • 8/22 эт.
    294 300 Р
    Агент
    +7 (912) Показать номер
    Посмотреть контакты

    Не нашли подходящего объявления?

    Оставьте заявку, и наши риэлторы подберут офис в районе Екатеринбурга

    (0)