Реализация объекта недвижимости приостановлена

Информация об помещении

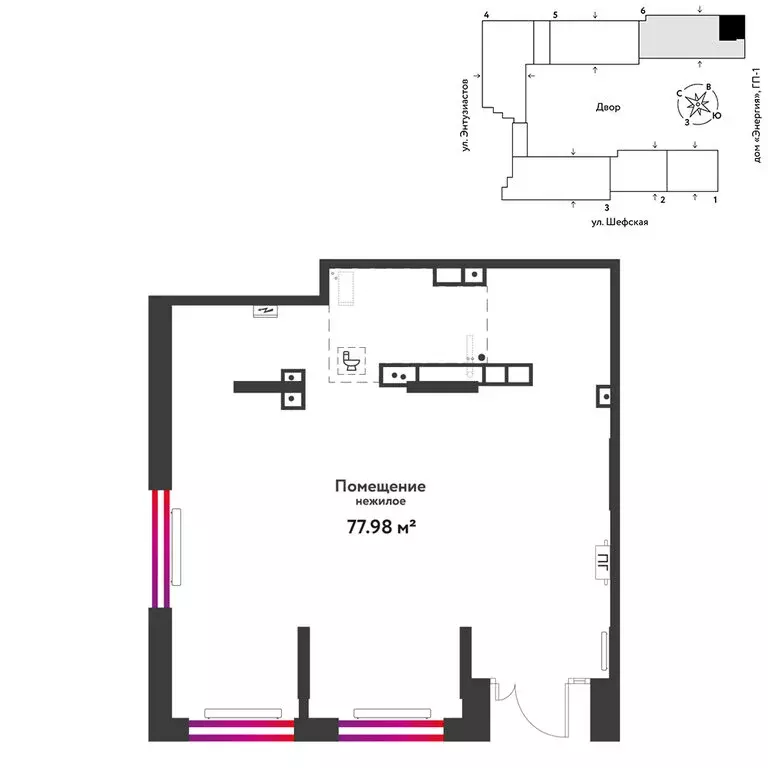
1
Этаж

Состояние и оснащение

Количество этажей
24
Развернуть

    Реализация объекта недвижимости приостановлена

    Не нашли подходящего объявления?

    Оставьте заявку, и наши риэлторы подберут торговое помещение в районе Екатеринбурга

    (0)