148 796 000 Р 1 837 600 $ или 1 581 600

Информация об помещении

1
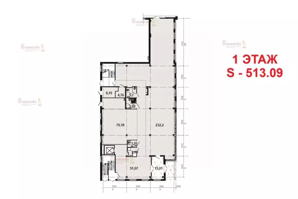
Этаж

Состояние и оснащение

Количество этажей
3
Развернуть
Агент
+7 (912) 211-58-86
Начать чат с агентом

Торговая площадь в Свердловская область, Екатеринбург ул. Очеретина, 4 ...

Объект 192783. Продам торгово-офисное помещение в отдельностоящем трехэтажном здании, в Академическом районе - ЖК Горки .Уникальная возможность для вашего бизнеса и инвестиций Описание объекта: 1 этаж, 513,09 м 178;; высота потолков 4,78 м. Панорамное остекление. Отдельные входы на каждый этаж. Индивидуальные счётчики отопления и водоснабжения Возможность гибкой планировки и возведения стен под ваш проект.Гостевая парковка на 50 машиномест вдоль здания. Возможность приобретения машиномест в подземном паркинге жилого комплекса.Инфраструктура: 10 минут пешком до Юго-Западного лесопарка, 15 минут до ТРЦ МЕГА и Радуга Парк . В шаговой доступности - действующие и проектируемые школы и детские сады, медицинские учреждения, торговые и спортивные центры. Удобный выезд на Объездную дорогу. Автобусы и маршрутные такси, выделенная трамвайная линия. Потенциал для бизнеса: в данной локации не представлены организации общественного питания, фитнес залы, студии развития для детей и людей старшего возраста. Это делает объект особенно привлекательным для: предприятия общественного питания. Кафе с возможностью летнего размещения на крыше (эксплуатируемая кровля). Уникальная атмосфера и панорамный вид привлекут клиентов.Фитнес-центр: благоустроенная кровля для занятий на свежем воздухе. Первый стадион на крыше, что создаст уникальные условия для тренировок.Школа развития: программы для детей и людей старшего возраста. Веранда на крыше для отдыха и общения, что способствует созданию сообщества.Срок сдачи: 1 квартал 2026 годаНе упустите возможность закрепить за собой перспективное место Звоните, чтобы обсудить покупку и забронировать площадь под ваш проект. На все интересующие вопросы отвечу по телефону.

Читать полностью
    Позвонить Написать
    148 796 000 Р1 837 600 $ или 1 581 600
    Агент
    +7 (912) 211-58-86
    Начать чат с агентом
    Похожие предложения
    Торговая площадь в Свердловская область, Екатеринбург ул. Уральских ... - Фото 1
    Арт.Продам 2 этаж в ТЦ Октябрь. Разделено на 2 отдельных помещения. Плюс в отдельный кадастровый номер выделены места общего пользования (входная группа с лестницами, зона разгрузки с лифтом, общие коридоры со стороны разгрузки). Оба помещения сданы в...
    • 2/2 эт.
    146 790 000 Р
    Агент
    +7 (982) Показать номер
    Посмотреть контакты
    Торговая площадь в Свердловская область, Екатеринбург ул. Амундсена, ... - Фото 1
    Торговая площадь в Свердловская область, Екатеринбург ул. Амундсена, ... - Фото 2
    Объект 184331. Продам отдельностоящее здание с арендаторами. Адрес: г. Екатеринбург ул. Амундсена 119.Здание каркасно-панельное, общей площадью 1296 кв.м. Капитальный ремонт завершен в 2023 году. Подключение к центральным сетям. ЗУ площадью 0,2Га, заасфальтирована...
    • 1/3 эт.
    155 000 000 Р
    Агент
    +7 (912) Показать номер
    Посмотреть контакты
    ПРЕДЛАГАЕТСЯ В ПОКУПКУ ТОРГОВЫЙ ЦЕНТР общей площадью 4 274, 7 кв. м. на земельном участке общей площадью 2 503 кв. м. , Без комиссии для покупателей.- Торговый центр расположен на первой линии и пересечении одних из самых оживленных улиц города Серова,...
    • 1/3 эт.
    140 000 000 Р
    Агент
    +7 (912) Показать номер
    Посмотреть контакты
    Торговая площадь в Краснодарский край, Новороссийск наб. Адмирала ... - Фото 1
    Торговая площадь в Краснодарский край, Новороссийск наб. Адмирала ... - Фото 2
    Продам помещение на набережной
    • 1/1 эт.
    153 335 000 Р
    Агент
    +7 (918) Показать номер
    Посмотреть контакты
    Продажа торгового помещения, м. Пушкинская, Богословский пер. - Фото 1
    Продажа торгового помещения, м. Пушкинская, Богословский пер. - Фото 2
    общая площадь 66.1м², реализуемая площадь 66.1м²

    Продажа торгового помещения в историческом центре Москвы. 470 метров от станций метро Пушкинская и Тверская. Площадь 66,8 м2. 1-й этаж 4-х этажного жилого дома. Отдельный вход с фасада, второй вход со двора, витрина. Планировка зальная, высота потолка...
    • 66.1 м²
    • 1/4 эт.
    156 000 000 Р
    Агент
    +7 (903) Показать номер
    Посмотреть контакты

    Не нашли подходящего объявления?

    Оставьте заявку, и наши риэлторы подберут торговое помещение в районе Екатеринбурга

    (0)