120 000 000 Р 1 477 400 $ или 1 278 800

Информация об помещении

1
Этаж

Состояние и оснащение

Количество этажей
1
Развернуть
Агент
+7 (912) 652-54-10
Начать чат с агентом

Склад в Свердловская область, Екатеринбург ул. Черняховского, 90А ...

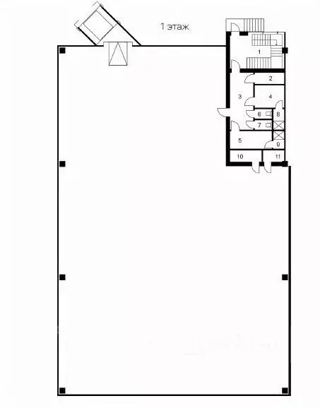
Предлагается в покупку производственно-складской комплекс по адресу: Екатеринбург, ул. Черняховского, 90А.Характеристики:Площадь склада 1500 м2.Теплый.Гoд поcтpoйки 2025. Плюc - зaбeтoниpoвaнная прилегaющaя тeрритoрия 2000 кв. м.3 вopoт.Уcтанaвливaeтcя oгpaждающая конcтрукция.Eсть вoзмoжнocть установить антpеcоль под oфисныe пoмещeния, в cвязи с чeм дополнительно пpибaвитcя eще 420кв мeтpoв к 1500.Oxpана. Видеонаблюдение. Газ. Электричество 150 кВт, возможно увеличение.Отдельный согласованный заезд.Установлены туалеты и все коммуникации.Полы топинговые 20 см(двойнное армирование, нагрузка на квадратный метр 7 тонн),вся кровля выполнена из материала технониколь с гарантией, котельное оборудование на гарантии.Кран балка на 20 тонн.Вода: 2 скважины по 3 куба в час, глубина 50м.Канализация: закопанный септик бочка 10 кубов.Финансовые условия:Стоимость объекта. Возможна рассрочка, обсуждается индивидуально.Без комиссии с покупателя Номер объекта: 1/546424/43

Читать полностью
    Позвонить Написать
    120 000 000 Р1 477 400 $ или 1 278 800
    Агент
    +7 (912) 652-54-10
    Начать чат с агентом
    Похожие предложения
    Склад (1000 м) - Фото 1
    Склад (1000 м) - Фото 2
    Предлагается в покупку отдельно стоящее здание склада, расположенное в Екатеринбурге на улице Монтажников.Характеристики помещения:Общая площадь - 1000 кв.м.Первый этаж.Склад теплый. Есть проект на подводку газа. Договор заключен.Нагрузка на пол 5 тонн....
    • 1/1 эт.
    127 000 000 Р
    Агент
    +7 (958) Показать номер
    Посмотреть контакты
    Склад в Свердловская область, Белоярский пгт ул. Красный Октябрь, 170 ... - Фото 1
    Склад в Свердловская область, Белоярский пгт ул. Красный Октябрь, 170 ... - Фото 2
    Предлагается в продажу производственно-складское помещение\Без комиссии для покупателей. - здание расположено на земельном участке площадью 3592кв. м.- кадастровый номер участка: 66:06:1701065:153- территория благоустроена, покрытие асфальт, огорожена...
    • 1/1 эт.
    115 000 000 Р
    Агент
    +7 (912) Показать номер
    Посмотреть контакты
    Склад в Свердловская область, Нижний Тагил муниципальный округ, пос. ... - Фото 1
    Склад в Свердловская область, Нижний Тагил муниципальный округ, пос. ... - Фото 2
    Коммерческое предложение: продажа комплекса имущества ООО Уральский механический завод Предлагаем к продаже готовый промышленный комплекс ООО Уральский механический завод (Свердловская область, п. Уралец, 5 км от ГЛК Гора Белая ) — действующее производственное...
    • 1/2 эт.
    120 000 000 Р
    Агент
    +7 (912) Показать номер
    Посмотреть контакты
    Склад в Ростовская область, Ростов-на-Дону Заречная мкр, ул. 2-я ... - Фото 1
    Склад в Ростовская область, Ростов-на-Дону Заречная мкр, ул. 2-я ... - Фото 2
    Продается склад класса А площадью 1000 кв. м на земельном участке площадью 30 сотокХарактеристики и преимущества:- склад выполнен из металлоконструкций- удобная транспортная доступность - высота склада 10 м- уровень 1, 2 м. , докшелтеры- есть также заезд...
    • 1/1 эт.
    120 000 000 Р
    Агент
    +7 (988) Показать номер
    Посмотреть контакты
    Склад в Московская область, Домодедово городской округ, д. Заболотье ... - Фото 1
    Склад в Московская область, Домодедово городской округ, д. Заболотье ... - Фото 2
    ID 5725. Предлагается к продаже производственно-складское помещение в индустриальном комплексе Парк Весна . Удобная транспортная доступность: 5 км до трассы М-2, 7 км до трассы М-4, 16 км до ЦКАД, 19 км до МКАД.Численность населения в зоне транспортной...
    • 1/1 эт.
    119 560 000 Р
    Агент
    +7 (919) Показать номер
    Посмотреть контакты

    Не нашли подходящего объявления?

    Оставьте заявку, и наши риэлторы подберут склад в районе Екатеринбурга

    (0)