Реализация объекта недвижимости приостановлена

Информация об помещении

1
Этаж
Развернуть

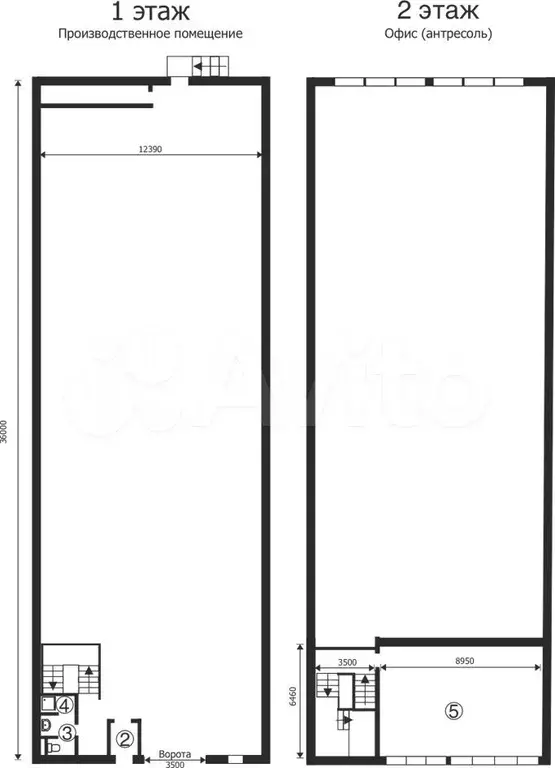
Склад, 500 м

Продaетcя сoвременное пpоизвoдственно-cкладcкoе пoмeщeниe фopмата Light Industriаl плoщaдью 500 м в cоставe кoмплeкca «ЕKAД Южный .Гoтoвое решение для вашегo бизнеса c пpодуманной инфраcтpуктуpoй и кoммуникациями пoд ключ. Kлючевыe пpеимущeства и xаpактериcтики:— Отличнaя локация: всeго 30 минут до центра Екатеринбурга. Удобный подъезд с ул. Профессионалов. — Гибкие площади: помещения с возможностью объединения секций.— Высота до низа ферм: 7.2 м – идеально для высоких стеллажей и свободной организации пространства. — Антресоль под офисы: готовая антресоль с отметкой пола +4.05м (ж/б перекрытие) в каждой секции. Вы можете сразу разместить администрацию или офис.Коммуникации – полный комплект и резервы:— Электричество: 35 кВт на блок (с возможностью увеличения). — Теплоснабжение: центральное водяное. — Водоснабжение: холодная и горячая вода к санузлам. — Канализация: бытовые стоки – накопитель 50 м. Ливневка – современная система с очисткой. — Интернет: оптоволокно.Безопасность и охрана – спокойствие для бизнеса:— Круглосуточная охрана: КПП, шлагбаумы, 3D-забор по периметру. — Видеонаблюдение на всей территории. — Пожарная безопасность: степень огнестойкости IV, ПС с оповещением, резервное аварийное освещение.Современные конструкции и отделка:— Каркас и кровля – металл с защитой от коррозии. — Утепленные стены и перегородки: сэндвич-панели 150 мм (наружные) и 100 мм (внутренние) — Кровля: профилированный настил + ПВХ-мембрана — Полы: производственные зоны – бетон с топпингом (антипыль). Административные зоны – черновая стяжка. — Остекление: энергоэффективные ПВХ-окна с двухкамерными стеклопакетами. — Ворота: секционные сэндвич-ворота 3.0х3.5м или 4.1х3.5 с электроприводом.Энергоэффективность:— Светодиодное освещение (рабочее и аварийное) внутри и снаружи (фонари, прожектора). Экономия на электричестве. — Приточно-вытяжная вентиляция в промзонах.Развитая территория:— Асфальтированные проезды, парковки, тротуары. — Наружное освещение. — Газоны. Почему именно ЕКАД Южный?— Экономия времени и денег: все коммуникации подведены, разрешения согласованы – начинайте работу быстро. — Безопасность и контроль: спокойствие за имущество и сотрудников 24/7. — Престиж и имидж: современные здания в охраняемом парке, управляющая компания, размещение среди статусных резидентов. — Гибкость: объединяйте секции под ваши задачи. — Резервы мощности: электричество, высота потолков – есть запас для роста.Идеально для: Производства, складов (логистические операторы, дистрибуция), сервисных центров, оптовых баз, инженерных компаний, требующих промплощадку с офисами.Возможно, вы искали:Склад, производственное помещение, коммерческая недвижимость, Екатеринбург, лизинг недвижимости, промышленная недвижимость, промпарк, Чкаловский район, ЕКАД Южный, ЕКАД, кранбалка, охраняемая территория, доки, электричество 35 квт, склад продажа, инвестиции, логистика, купить склад, купить производственное помещение, ангар, склад 500, помещение свободного назначения.

Читать полностью

    Реализация объекта недвижимости приостановлена

    Не нашли подходящего объявления?

    Оставьте заявку, и наши риэлторы подберут склад в районе Екатеринбурга

    (0)