19 824 110 Р 244 200 $ или 210 800

Информация об помещении

1
Этаж

Состояние и оснащение

Количество этажей
8
Развернуть
Агент
+7 (912) 292-05-89
Начать чат с агентом

Помещение свободного назначения в Свердловская область, Екатеринбург ...

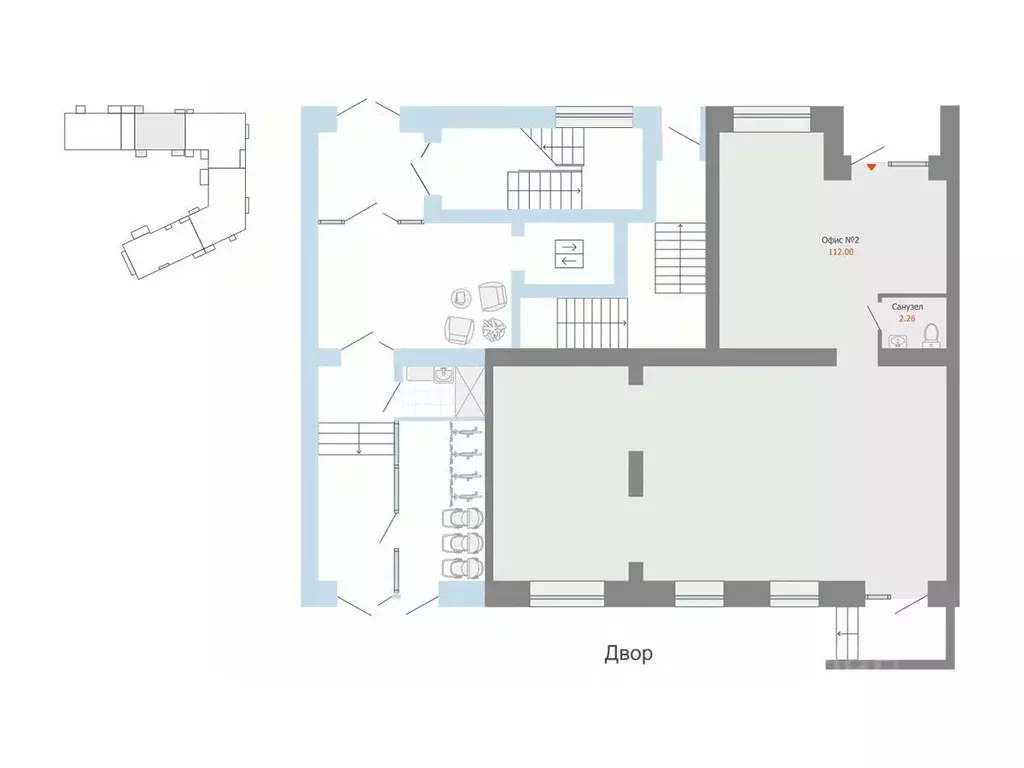
Продается коммерческое помещение свободного назначения напрямую от федерального застройщика Желeзнo . Площадь помещения 114.00 м2. Высота потолков 2.70 м. Помещение находится на 1 этаже дома 4/3 ЖК ЛЕС .Запишитесь на просмотр помещения и экскурсию по ЖКПомещение продается в базовой отделке Объект коммерческой недвижимости продаётся в жилом комплексе ЛЕС , расположенном в живописном районе Широкая Речка, всего в 10 км от центра Екатеринбурга. Здесь природа не фоном, а главным героем — а ваш бизнес может стать частью этой новой истории. Идеальное пространство для вашего бизнеса:• Формирующееся активное сообщество жильцов• Высокий пешеходный трафик и постоянный спрос на повседневные и семейные сервисы• Уникальные дворы, свободные от машин, наполненные зеленью и местами для отдыха• Уютная и безопасная среда, где хочется задержаться ЖК ЛЕС — квартал, где природа и комфорт живут в согласии:• Расположение в сосновом бору — свежий воздух и живая тишина каждый день• Этажность домов не превышает кроны деревьев — уют и приватность без суеты• Уникальный парк 6,3 Га с экотропами, веломаршрутами, зонами отдыха и творчества• Умный дом и сервис Мажордом : все функции умного дома — в мобильном приложении Ваш бизнес — это тоже часть живой экосистемы. Здесь он будет развиваться в гармонии с природой. Железно — федеральный девелопер со смыслом, создающий умные мини-города с развитой инфраструктурой. За 14 лет компания реализовала 21 проект вегионах, формируя комфортную среду для десятков тысяч семей. Проекты Железно сочетают функциональность и эмоции, формируя среду будущего. Застройщик — 6-кратный победитель премии Urban и входит в ТОП-5 по качеству жилья. С 2016 года ежегодно подтверждает статус Надёжный застройщик России .

Читать полностью
    Позвонить Написать
    19 824 110 Р244 200 $ или 210 800
    Агент
    +7 (912) 292-05-89
    Начать чат с агентом
    Похожие предложения
    Помещение свободного назначения в Свердловская область, Екатеринбург ... - Фото 1
    Помещение свободного назначения в Свердловская область, Екатеринбург ... - Фото 2
    Продам объект коммерческой недвижимости, расположенный в центральной части города. Отличительными особенностями являются: комфортная транспортная развязка, большие оконные проемы, два входа. Возможность поделить объект на более компактные.Благодаря удачному...
    • 1/5 эт.
    19 900 000 Р
    Агент
    +7 (912) Показать номер
    Посмотреть контакты
    Помещение свободного назначения в Свердловская область, Екатеринбург ... - Фото 1
    Помещение свободного назначения в Свердловская область, Екатеринбург ... - Фото 2
    Атлас Бизнес Клуб — это офисный комплекс класса B+, расположенный в западной части Екатеринбурга, на ул. Металлургов, 68А. Проект представляет собой шестиэтажное здание общей площадью более 18 500 м. Это деловое пространство нового формата, сочетающее...
    • 1/6 эт.
    20 891 000 Р
    Агент
    +7 (982) Показать номер
    Посмотреть контакты
    Помещение свободного назначения в Свердловская область, Екатеринбург ... - Фото 1
    Помещение свободного назначения в Свердловская область, Екатеринбург ... - Фото 2
    Предлагается в покупку помещение свободного назначения, расположенное по адресу:г. Екатеринбург, ул. Московская, 66Характеристики объекта:Общая площадь: 243,6 кВ.м.Цокольный этаж.Без отделки..Потолки: 2.7м.Центральное отопление.Водоснабжение.Электрическая...
    • -1/25 эт.
    20 000 000 Р
    Агент
    +7 (912) Показать номер
    Посмотреть контакты
    Помещение свободного назначения (60.9 м) - Фото 1
    Помещение свободного назначения (60.9 м) - Фото 2
    Продам компактное помещение формата street-retail — отличное решение для малого бизнеса.Высота потолков 3,7 м, отдельный вход, витрина на улицу.Отлично подойдёт под кофе-to-go, парикмахерскую, барбершоп, пункт выдачи заказов, ателье, маникюрный кабинет.Развитая...
    • 1/24 эт.
    19 497 600 Р
    Агент
    +7 (982) Показать номер
    Посмотреть контакты
    Помещение свободного назначения на 1 этаже, общая площадь 110.41 кв.м., без отделки. Стоимость помещения 20,750,, цена за кв.м 187, СРОК СДАЧИ - 3 КВАРТАЛ 2026ЕСТЬ СДАННЫЕ Продается коммерческое помещение в проекте Брусника в Академическом 3 300...
    • 1/9 эт.
    20 750 000 Р
    Агент
    +7 (912) Показать номер
    Посмотреть контакты

    Не нашли подходящего объявления?

    Оставьте заявку, и наши риэлторы подберут псн в районе Екатеринбурга

    (0)