29 087 184 Р 358 100 $ или 310 000

Информация об помещении

1
Этаж

Состояние и оснащение

Количество этажей
8
Развернуть
Агент
+7 (912) 292-05-89
Начать чат с агентом

Помещение свободного назначения в Свердловская область, Екатеринбург ...

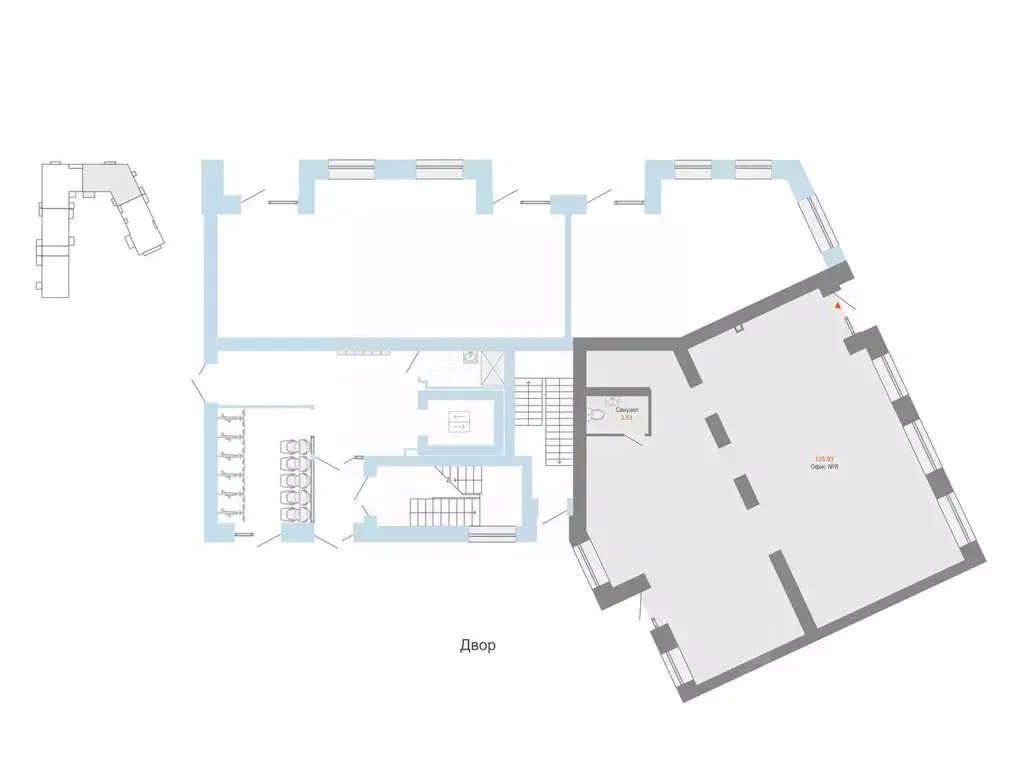
Продается коммерческое помещение свободного назначения напрямую от федерального застройщика Желeзнo . Площадь помещения 139.00 м2. Высота потолков 2.70 м. Помещение находится на 1 этаже дома 4/3 ЖК ЛЕС .Запишитесь на просмотр помещения и экскурсию по ЖКПомещение продается в базовой отделке Объект коммерческой недвижимости продаётся в жилом комплексе ЛЕС , расположенном в живописном районе Широкая Речка, всего в 10 км от центра Екатеринбурга. Здесь природа не фоном, а главным героем — а ваш бизнес может стать частью этой новой истории. Идеальное пространство для вашего бизнеса:• Формирующееся активное сообщество жильцов• Высокий пешеходный трафик и постоянный спрос на повседневные и семейные сервисы• Уникальные дворы, свободные от машин, наполненные зеленью и местами для отдыха• Уютная и безопасная среда, где хочется задержаться ЖК ЛЕС — квартал, где природа и комфорт живут в согласии:• Расположение в сосновом бору — свежий воздух и живая тишина каждый день• Этажность домов не превышает кроны деревьев — уют и приватность без суеты• Уникальный парк 6,3 Га с экотропами, веломаршрутами, зонами отдыха и творчества• Умный дом и сервис Мажордом : все функции умного дома — в мобильном приложении Ваш бизнес — это тоже часть живой экосистемы. Здесь он будет развиваться в гармонии с природой. Железно — федеральный девелопер со смыслом, создающий умные мини-города с развитой инфраструктурой. За 14 лет компания реализовала 21 проект вегионах, формируя комфортную среду для десятков тысяч семей. Проекты Железно сочетают функциональность и эмоции, формируя среду будущего. Застройщик — 6-кратный победитель премии Urban и входит в ТОП-5 по качеству жилья. С 2016 года ежегодно подтверждает статус Надёжный застройщик России .

Читать полностью
    Позвонить Написать
    29 087 184 Р358 100 $ или 310 000
    Агент
    +7 (912) 292-05-89
    Начать чат с агентом
    Похожие предложения
    Помещение свободного назначения в Свердловская область, Екатеринбург ... - Фото 1
    Помещение свободного назначения в Свердловская область, Екатеринбург ... - Фото 2
    В ЖК Сибирский Сад продаём коммерческое помещение S=82,69 кв.м.Основные характеристики:-отдельный вход-большие витражные окна-высота потолков 3,7 м-мощность электросети 12,40 кВт(с возможностью увеличения)-вентиляция: приточно-вытяжная, собственная, отделенная...
    • 1/32 эт.
    28 941 500 Р
    Агент
    +7 (912) Показать номер
    Посмотреть контакты
    Помещение свободного назначения в Свердловская область, Екатеринбург ... - Фото 1
    Помещение свободного назначения в Свердловская область, Екатеринбург ... - Фото 2
    Атлас Бизнес Клуб — это офисный комплекс класса B+, расположенный в западной части Екатеринбурга, на ул. Металлургов, 68А. Проект представляет собой шестиэтажное здание общей площадью более 18 500 м. Это деловое пространство нового формата, сочетающее...
    • 1/6 эт.
    29 083 600 Р
    Агент
    +7 (982) Показать номер
    Посмотреть контакты
    Помещение свободного назначения в Свердловская область, Екатеринбург ... - Фото 1
    Помещение свободного назначения в Свердловская область, Екатеринбург ... - Фото 2
    Продадим коммерческое помещение торгово-офисного назначения, на 1 линии, с отдельным входом, которое сейчас используется под бизнес по продаже сантехники, крепежа, инструментов. ЛЮБОЕ РЕАЛЬНОЕ ПРЕДЛОЖЕНИЕ ГОТОВЫ ОБСУЖДАТЬ ЛИЧНО И ДЕТАЛЬНО - помещение...
    • 1/13 эт.
    29 950 000 Р
    Агент
    +7 (982) Показать номер
    Посмотреть контакты
    Помещение свободного назначения в Свердловская область, Екатеринбург ... - Фото 1
    Помещение свободного назначения в Свердловская область, Екатеринбург ... - Фото 2
    Продается нежилое помещение в цокольном этаже ЖК Мельковский . Общая площадь помещения 548,4 кв. м. Высота потолка 2,93 м. Отделка черновая. - тихий центр;- удобная пешеходная и транспортная доступность: шаговая доступность в течении 10 минут до станций...
    • -1/12 эт.
    29 990 000 Р
    Агент
    +7 (912) Показать номер
    Посмотреть контакты
    Помещение свободного назначения в Свердловская область, Екатеринбург ... - Фото 1
    Помещение свободного назначения в Свердловская область, Екатеринбург ... - Фото 2
    Предлагается в ПРОДАЖУ помещение свободного назначения с НДС, общей площадью 94. 5 кв. м. по адресу ул. ТаватуйскаяБез комиссии для покупателей.Основные характеристики и преимущества помещения:- помещение расположено в номом доме Железнодорожного района...
    • 1/25 эт.
    30 000 000 Р
    Агент
    +7 (912) Показать номер
    Посмотреть контакты

    Не нашли подходящего объявления?

    Оставьте заявку, и наши риэлторы подберут псн в районе Екатеринбурга

    (0)