33 000 000 Р 419 900 $ или 360 600

Информация об помещении

1
Этаж

Состояние и оснащение

Количество этажей
1
Развернуть
Агент
+7 (912) 211-58-86
Начать чат с агентом

Производственное помещение в Свердловская область, Екатеринбург ул. ...

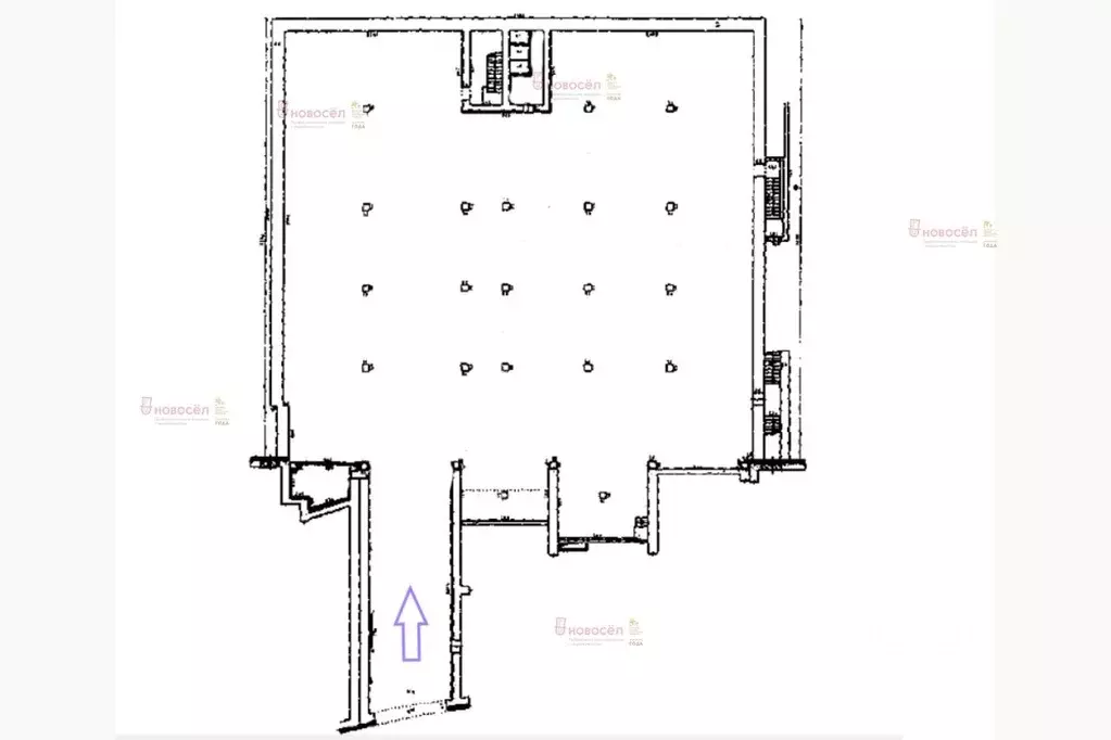
Объект 185556. Продам нежилое помещение общей площадью 1156кв.м.Въезд с ул. Щербакова, помещение встроено в жилой дом, сверху расположена детская площадка. На текущий момент сдано в аренду и используется как парковка, назначение и вид разрешенного использования - нежилое, находится в собственности. Возможно выделить отдельные машиноместа и продать как парковочные места. Подключено к центральным сетям - вода, канализация, вентиляция, мощность сети - 100кВт. Высота потолков 3,2м.Условия сделки обсуждаются, готов рассмотреть встречное предложение.

Читать полностью
    Позвонить Написать
    33 000 000 Р419 900 $ или 360 600
    Агент
    +7 (912) 211-58-86
    Начать чат с агентом
    Похожие предложения
    Производственное помещение в Свердловская область, Среднеуральск ... - Фото 1
    Производственное помещение в Свердловская область, Среднеуральск ... - Фото 2
    Продается здание с земельным участком, возможно использовать под коммерцию (производство, склад), два этажа, есть лифт. Вопросы по телефону.ID объекта в нашей базе: 569
    • 1/2 эт.
    32 000 000 Р
    Агент
    +7 (981) Показать номер
    Посмотреть контакты
    Производственное помещение в Краснодарский край, Туапсинский ... - Фото 1
    Производственное помещение в Краснодарский край, Туапсинский ... - Фото 2
    Арт.Гарантия юридической безопасности сделки С нами покупатель не рискует Уникальное предложение на рынке недвижимости Продается производственная база площадью 12 соток, расположенная в пяти километрах от города Туапсе в поселке Пригородный....
    • 1/1 эт.
    33 000 000 Р
    Агент
    +7 (988) Показать номер
    Посмотреть контакты
    Производственное помещение в Краснодарский край, Ейский район, ... - Фото 1
    Производственное помещение в Краснодарский край, Ейский район, ... - Фото 2
    Готовый бизнес-комплекс Под ключ : производство памятников и камнеобработка.Уникальное предложение для предпринимателей, которые ценят не просто актив, а отлаженную прибыльную систему. Это не просто производство — это предприятие с душой, историей и...
    • 1/1 эт.
    33 900 000 Р
    Агент
    +7 (918) Показать номер
    Посмотреть контакты
    Производственное помещение в Волгоградская область, Волгоград ... - Фото 1
    Производственное помещение в Волгоградская область, Волгоград ... - Фото 2
    Продается производственное помещение свободного назначения по адресу: Волгоград, Кировский р-н, Строительная улица, 68а. Здание оформлено как жилое, что открывает возможности для различных видов использования. Общая площадь помещения составляет 924,5...
    • -1/2 эт.
    33 000 000 Р
    Агент
    +7 (918) Показать номер
    Посмотреть контакты
    Производственное помещение в Самарская область, Самара ул. Земеца, 4 ... - Фото 1
    Производственное помещение в Самарская область, Самара ул. Земеца, 4 ... - Фото 2
    Продается производственное здание столовой, 986 м, по адресу: г. Самара ул. Земеца 4.От собственника, без комиссии.Уникальное предложение для вашего бизнеса Продается просторное производственное здание бывшей столовой общей площадью 986,1 м по адресу:...
    • 1/1 эт.
    32 000 000 Р
    Агент
    +7 (919) Показать номер
    Посмотреть контакты

    Не нашли подходящего объявления?

    Оставьте заявку, и наши риэлторы подберут производственное помещение в районе Екатеринбурга

    (0)