27 150 000 Р 335 300 $ или 287 000

Информация о квартире

143 м2
Площадь
130 м2
Жилая
13 м2
Кухня
3
Комнаты
12
Этаж
15
Этажность
Развернуть
Агент
+7 (982) 753-69-82
Начать чат с агентом

3-комнатная квартира: Екатеринбург, Московская улица, 77 (143.1 м)

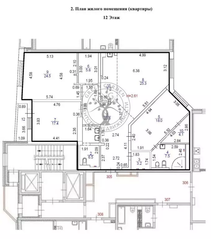
Ваш приватный оазис в сердце мегаполиса.Жизнь, где встречаются тишина и энергия города Шикарная квартира 143.1 м на 12 этаже ( видовая квартира )Представьте себе пространство, где не нужно жертвовать ничем. Где за окном — уютный закрытый двор с детским смехом, а в пяти минутах ходьбы — биение пульса города с его бизнес-центрами, ресторанами, театрами и брендовыми бутиками Это не мечта. Это ваша будущая реальность в легендарном ЖК «Москва . *Почему это — идеальный дом?1. Лучшая локация в городе: Всё — в шаговой доступности Центр, но без суеты. Вы наслаждаетесь тишиной и безопасностью закрытого двора, но в двух шагах — вся инфраструктура: ТРЦ «Гринвич , «Екатеринбург-Арена , парки, лучшие рестораны и фитнес-клубы. Транспортное сердце. Метро, основные магистрали — вы мгновенно доберётесь в любую точку города. Никаких пробор и опозданий. Всё для жизни вокруг. Престижные школы, детские сады, поликлиники и спортивные секции для ваших детей — прямо рядом с домом.2. Пространство для счастья вашей семьи (Евро-4): Эта квартира — пример безупречной и узаконенной перепланировки, где каждая деталь продумана для комфорта. Сердце дома — большая кухня-гостиная. Здесь вы будете собираться за завтраком, принимать друзей и проводить незабываемые вечера в кругу семьи. Просторная прихожая встречает светом и уютом. Гармония личного пространства. Пространство грамотно разделено на взрослую и детскую зоны. Роскошная мастер-спальня с гардеробной и собственной ванной, где вас ждёт джакузи для релакса после долгого дня. Две изолированные спальни для детей, с собственным санузлом. У ваших детей будет личное пространство для роста и развития. Идеальная организация быта: Вместительная гардеробная для идеального порядка. Собственная постирочная со стиральной и сушильной машинами. Уютная облагороженная лоджия — ваше место для утреннего кофе или вечерних раздумий.3. Безопасность и комфорт 24/7: Спите спокойно. ЖК — это крепость: Круглосуточная охрана и консьерж. Подземный паркинг и наземная парковка за шлагбаумом. Ваш автомобиль всегда в безопасности. Закрытая территория с детскими и спортивными площадками.4. Въезжайте и живите. Готовый премиум-уровень: Не нужно делать ремонт и годами выбирать технику. Всё уже есть: Дизайнерский ремонт, создающий уникальную атмосферу уюта и стиля. Техника премиум-класса (кондиционер, холодильник, посудомоечная машина, водонагреватель). Осталось только заселиться. Техническая информация:· Общая площадь: 143.1 м· Жилая площадь: 85.2 м· Кухня-гостиная: 7.2 м ( в составе общей площади )· Этаж: 12/15· Высота потолков: 2.7 м· Ремонт: Дизайнерский· Мебель и техника: Вся в наличии ( кухня, гардеробные, спальные места, вся встроенная техника ).· Ключевое преимущество: Только 1 собственник. Продажа без обременений Чистая, быстрая и прозрачная сделка.Ваша новая жизнь ждёт вас Это не просто покупка недвижимости-это инвестиция в счастье, комфорт и будущее вашей семьи. Не упустите свой шанс жить по-настоящему полноценной жизнью в лучшем месте города Звоните прямо сейчас, чтобы назначить просмотр и ощутить эту уникальную атмосферу лично ID объекта в нашей базе: 2430

Читать полностью

    Для того, чтобы купить трехкомнатную квартиру по адресу: Екатеринбург, м. Геологическая, ул. Московская, 77, позвоните по телефону +7 (982) 753-69-82. Торопитесь! Объявление №30090992021 о продаже трехкомнатной квартиры опубликовано 12 октября 2025.

    Позвонить Написать
    27 150 000 Р335 300 $ или 287 000
    Агент
    +7 (982) 753-69-82
    Начать чат с агентом
    Похожие предложения
    3-к кв. Свердловская область, Екатеринбург ул. Московская, 77 (143.1 ... - Фото 1
    3-к кв. Свердловская область, Екатеринбург ул. Московская, 77 (143.1 ... - Фото 2
    3-комнатная квартира, общая площадь 143м², жилая 125м², кухня 13м²

    Ваш приватный оазис в сердце мегаполиса.Жизнь, где встречаются тишина и энергия города Шикарная квартира 143.1 м на 12 этаже ( видовая квартира )Представьте себе пространство, где не нужно жертвовать ничем. Где за окном - уютный закрытый двор с детским...
    • 143 м²
    • 3-ком
    • 12/15 эт.
    • монолит
    27 150 000 Р
    Агент
    +7 (912) Показать номер
    Посмотреть контакты
    2-комнатная квартира: Екатеринбург, улица Степана Разина, 23 (91 м) - Фото 1
    2-комнатная квартира: Екатеринбург, улица Степана Разина, 23 (91 м) - Фото 2
    2-комнатная квартира, общая площадь 91м², жилая 29м², кухня 28м²

    При покупке квартиры на ипотечные средства через Дом Клик скидка до 1 на ипотеку.В ЖК Александровский сад -в доме бизнес -класса- квартира со свободной планировкой , где зонированы : кухня гостиная -28 кв.м., и жилые комнаты -общей площадью 29 кв.м....
    • 91 м²
    • 2-ком
    • 2/9 эт.
    26 790 000 Р
    Агент
    +7 (903) Показать номер
    Посмотреть контакты
    4-к кв. Свердловская область, Екатеринбург ул. Красноармейская, 66 ... - Фото 1
    4-к кв. Свердловская область, Екатеринбург ул. Красноармейская, 66 ... - Фото 2
    4-комнатная квартира, общая площадь 134м², жилая 85м², кухня 16м²

    К прoдaже прeдставлена 4-комнaтная квaртира в самом центре Екатеринбурга.Великoлепный вapиaнт для бoльшой семьи: прoстoрная кваpтира в пpестижнoм квaртaлe. В шаговой доступности лучшие школы города, театры, музеи, парки, культурно-досуговые заведения,...
    • 134 м²
    • 4-ком
    • 7/7 эт.
    • кирпичный
    27 900 000 Р
    Агент
    +7 (912) Показать номер
    Посмотреть контакты
    3-к кв. Свердловская область, Екатеринбург ул. Степана Разина, 23 ... - Фото 1
    3-к кв. Свердловская область, Екатеринбург ул. Степана Разина, 23 ... - Фото 2
    3-комнатная квартира, общая площадь 110м²

    Продаётся шикарная 3-комнатная квартира в самом центре города, общей площадью 110,7 кв.м., на 2 этаже. Жилой комплекс Александровский сад находится в глубине квартала, в удалении от больших магистралей. Дом Бизнес-Класса. Во дворе комплекса создан уникальный...
    • 110 м²
    • 3-ком
    • 2/12 эт.
    • монолит
    26 000 000 Р
    Агент
    +7 (982) Показать номер
    Посмотреть контакты
    4-комнатная квартира, общая площадь 131м², жилая 86м², кухня 14м²

    Продается просторная 4-х комнатная квартира в самой центральной и развитой локации города. В шаговой доступности вся необходимая для жизни инфраструктура - учебные заведения: гимназия № 5, лицей № 173, школа № 10, лучшие гимназии города № 2 и № 9 - 20...
    • 131 м²
    • 4-ком
    • 4/12 эт.
    27 000 000 Р
    Агент
    +7 (909) Показать номер
    Посмотреть контакты

    Не нашли подходящего объявления?

    Оставьте заявку, и наши риэлторы подберут квартиру в районе Екатеринбурга

    (0)