Реализация объекта недвижимости приостановлена

Информация о квартире

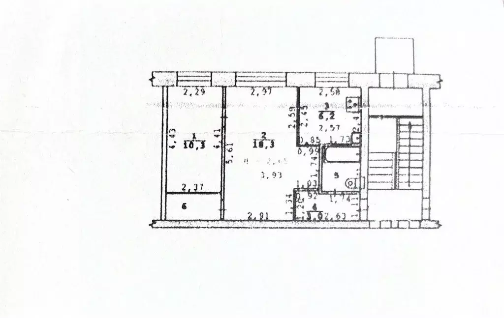
43.0 м2
Площадь
29.0 м2
Жилая
6.0 м2
Кухня
2
Комнаты
1
Этаж
5
Этажность

Дополнительная информация

Тип дома
блочный
Развернуть

2-к кв. Свердловская область, Екатеринбург ул. Баумана, 16 (43.3 м)

Арт.. ПРИНЯТ АВАНС Продаётся уютная и тёплая 2-комнатная квартира всего в 5 минутах пешком от станции метро Уралмаш .Эта квартира создана для комфортной жизни: светлые и просторные комнаты, уютная кухня, где легко собираться всей семьёй, и тёплая атмосфера, которая чувствуется с порога. Общая площадь — 43,3 м, жилая — 28 м, кухня — 6,2 м.В 2022 году в доме был произведен капитальный ремонт. В квартире выполнен качественный ремонт: полностью заменена электропроводка, всё аккуратно и надёжно. Совмещённый санузел выполнен в кафеле и оборудован тёплым полом — пользоваться удобно и приятно. Вместо обычной кладовки — полноценная гардеробная комната, а окна выходят во двор, где тихо, зелено и уютно.Дом ухоженный, регулярно обслуживается, вокруг всегда есть удобные парковочные места.Район отлично развит: рядом школы и детские сады, престижная гимназия 99 с английским уклоном и школа 67 одна из лучших в районе, магазины, клиники и торговые центры.Эта квартира идеально подойдёт для дружной семьи, которая ценит уют, комфорт и практичность.Здесь можно заехать и жить без дополнительных вложений.Юридическая информация:Квартира Без обремененийПодходит под ипотеку и наличный расчётМатеринский капитал не использовалсяБесплатная помощь в одобрении ипотекиКомиссия с покупателя отсутствуетЗвоните и записывайтесь на просмотр — почувствуйте сами, как уютно в этой квартире

Читать полностью

    Реализация объекта недвижимости приостановлена

    Не нашли подходящего объявления?

    Оставьте заявку, и наши риэлторы подберут квартиру в районе Екатеринбурга

    (0)