9 678 552 Р 123 200 $ или 104 300

Информация о квартире

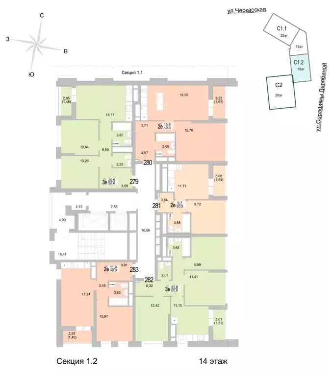
57 м2
Площадь
20 м2
Жилая
16 м2
Кухня
2
Комнаты
13
Этаж
16
Этажность
Развернуть
Агент
+7 (994) 509-31-74
Начать чат с агентом

2-к кв. Свердловская область, Екатеринбург ул. Черкасская, 5к2 (57.04 ...

Философия Идеалистов на Черкасской : новый уровень городской жизни Квартал в сердце Верх-Исетского района.Расположение и архитектура. Философия Идеалистов на Черкасской строится в Верх-Исетском районе Екатеринбурга в границах улиц — Черкасская и Серафимы Дерябиной. Квартал включает три жилых корпуса переменной этажности, выполненные в единой архитектурной концепции — от 16 до 25 этажей и 6-уровневый наземный паркинг, которые объединяет закрытая дворовая территория.Философия комфорта.Концепция жизни. Проект создан для тех, кто ценит качество жизни и безопасность. Каждый элемент инфраструктуры направлен на создание комфортной среды для жителей:Собственная социальная инфраструктура: детский сад и современный соседский центр.Открытая терраса для приятного времяпрепровождения на свежем воздухе, динамичных тренировок и умиротворяющих занятий йогой.Эксклюзивные форматы жилья жилого комплекса: двухуровневые квартиры и планировки с террасами.Премиальный сервис: консьерж-служба на первых этажах.Энергоэффективность: автономная газовая котельная для оптимизации коммунальных платежей.Комфорт в деталях. Продуманная инфраструктура:Современные колясочные и велосипедные помещения.Удобные комнаты гигиены.Система контроля доступа.Пост охраны.Уникальные преимущества:Разнообразие планировок. Во второй секции комплекса представлены квартиры с предчистовой отделкой. Это возможность создать интерьер по своему вкусу.В жилом комплексе предусмотрен соседский центр, который станет пространством для развития и общения. Здесь могут проводиться: образовательные курсы и лекции, творческие мастер-классы, деловые встречи и развлекательные мероприятия. Философия Идеалистов на Черкасской — это больше, чем просто жилье. Это сообщество людей, разделяющих общие ценности и стремление к качественной жизни. Каждое мгновение здесь наполняется новым смыслом, а каждая секунда приносит радость и удовлетворение.

Читать полностью
    Позвонить Написать
    9 678 552 Р123 200 $ или 104 300
    Агент
    +7 (994) 509-31-74
    Начать чат с агентом
    Похожие предложения
    2-к кв. Свердловская область, Екатеринбург ул. Черкасская, 5к2 (57.04 ... - Фото 1
    2-к кв. Свердловская область, Екатеринбург ул. Черкасская, 5к2 (57.04 ... - Фото 2
    2-комнатная квартира, общая площадь 57м², жилая 20м², кухня 16м²

    Философия Идеалистов на Черкасской : новый уровень городской жизни Квартал в сердце Верх-Исетского района.Расположение и архитектура. Философия Идеалистов на Черкасской строится в Верх-Исетском районе Екатеринбурга в границах улиц — Черкасская и Серафимы...
    • 57 м²
    • 2-ком
    • 15/16 эт.
    9 730 779 Р
    Агент
    +7 (994) Показать номер
    Посмотреть контакты
    2-к кв. Свердловская область, Екатеринбург ул. Черкасская, 5к2 (57.04 ... - Фото 1
    2-к кв. Свердловская область, Екатеринбург ул. Черкасская, 5к2 (57.04 ... - Фото 2
    2-комнатная квартира, общая площадь 57м², жилая 20м², кухня 16м²

    Философия Идеалистов на Черкасской : новый уровень городской жизни Квартал в сердце Верх-Исетского района.Расположение и архитектура. Философия Идеалистов на Черкасской строится в Верх-Исетском районе Екатеринбурга в границах улиц — Черкасская и Серафимы...
    • 57 м²
    • 2-ком
    • 14/16 эт.
    9 704 665 Р
    Агент
    +7 (994) Показать номер
    Посмотреть контакты
    2-к кв. Свердловская область, Екатеринбург ул. Черкасская, 5к2 (57.04 ... - Фото 1
    2-к кв. Свердловская область, Екатеринбург ул. Черкасская, 5к2 (57.04 ... - Фото 2
    2-комнатная квартира, общая площадь 57м², жилая 20м², кухня 16м²

    Философия Идеалистов на Черкасской : новый уровень городской жизни Квартал в сердце Верх-Исетского района.Расположение и архитектура. Философия Идеалистов на Черкасской строится в Верх-Исетском районе Екатеринбурга в границах улиц — Черкасская и Серафимы...
    • 57 м²
    • 2-ком
    • 10/16 эт.
    9 626 325 Р
    Агент
    +7 (994) Показать номер
    Посмотреть контакты
    2-к кв. Свердловская область, Екатеринбург ул. Черкасская, 5к2 (57.04 ... - Фото 1
    2-к кв. Свердловская область, Екатеринбург ул. Черкасская, 5к2 (57.04 ... - Фото 2
    2-комнатная квартира, общая площадь 57м², жилая 20м², кухня 16м²

    Философия Идеалистов на Черкасской : новый уровень городской жизни Квартал в сердце Верх-Исетского района.Расположение и архитектура. Философия Идеалистов на Черкасской строится в Верх-Исетском районе Екатеринбурга в границах улиц — Черкасская и Серафимы...
    • 57 м²
    • 2-ком
    • 11/16 эт.
    9 652 438 Р
    Агент
    +7 (994) Показать номер
    Посмотреть контакты
    2-к кв. Свердловская область, Екатеринбург ул. Черкасская, 5к3 (57.8 ... - Фото 1
    2-к кв. Свердловская область, Екатеринбург ул. Черкасская, 5к3 (57.8 ... - Фото 2
    2-комнатная квартира, общая площадь 57м², жилая 24м², кухня 11м²

    Философия Идеалистов на Черкасской : новый уровень городской жизни Квартал в сердце Верх-Исетского района.Расположение и архитектура. Философия Идеалистов на Черкасской строится в Верх-Исетском районе Екатеринбурга в границах улиц — Черкасская и Серафимы...
    • 57 м²
    • 2-ком
    • 15/24 эт.
    9 694 260 Р
    Агент
    +7 (994) Показать номер
    Посмотреть контакты

    Не нашли подходящего объявления?

    Оставьте заявку, и наши риэлторы подберут квартиру в новостройке в районе Екатеринбурга

    (0)