9 244 260 Р 116 500 $ или 99 470

Информация о квартире

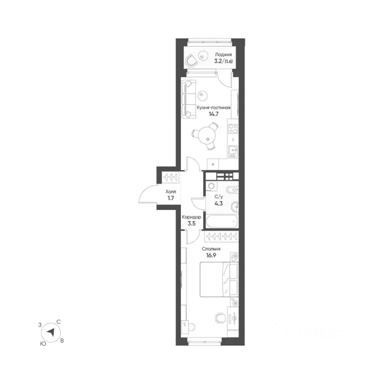
47 м2
Площадь
13 м2
Жилая
21 м2
Кухня
1
Комната
11
Этаж
25
Этажность
Развернуть
Агент
+7 (912) 231-15-38
Начать чат с агентом

1-комнатная квартира: Екатеринбург, Посадская улица, 26 (47.7 м)

Жилой комплекс Кайдзен на улице Посадской – это близость к центру и уют спального района с повышенным уровнем комфорта.РасположениеНовый жилой комплекс расположится в Верх-Исетском районе Екатеринбурга на границе улиц Посадской, Белореченской, Шаумяна и Ясной. Он станет катализатором преобразования давно обжитого квартала и идеальным сочетанием прошлого и будущего, позволяющее создать современное и уютное пространство для жителей мегаполиса.Комплекс обращен северной и северо-восточной стороной на улицу Посадская. Из панорамных окон здесь будет видна живописная аллея, которая красива в любое время года. С восточной и южной сторон - ЖК окружает невысокая жилая застройки, так, что из окон открываются виды далеко вдаль. Сочетание динамики, строгой эстетики и увеличенная площадь остекления, формируют новый уровень комфорта для жильцов и открывают превосходные виды на город.Архитектурная концепцияДинамичная архитектура комплекса обладает выразительной формой, которая буквально пульсирует энергией и жизнью. Два темно графитовых здания различной высоты формируют мощный визуальный акцент и придают контраст и элегантность, одновременно подчёркивая единство стиля.Главное внимание привлекает центральная 25 этажная башня с необычным внешним видом. Первые этажи аккуратно интегрированы в общий фронт улицы, повторяя элементы декора существующих построек. Однако начиная с третьего уровня, конструкция резко изменяется, представляя смелые консольные объёмы, выходящие вперёд. Особенностью фасада являются разнообразные балконные выступы, плавно увеличивающиеся от нижнего уровня к верхнему.Второй дом в 8 этажей находится глубже внутри комплекса. Его внешний вид дополняет общую концепцию, создавая единое пространственное решение. Благодаря панорамному остеклению и просторным площадям помещений обеспечивается максимальное проникновение естественного света, комфорт проживания и великолепные виды на город. Жилой комплекс притягивает взгляд издалека и заставляет остановиться, чтобы рассмотреть детали.Двор и благоустройствоПриватное пространство внутреннего двора на стилобате, где плавные линии дорожек обволакивают площадки для детских игр и спорта. Разновысотные кустарники и деревья, сливаясь в единый динамичный силуэт, напоминающий природный ландшафт создают ощущение спокойствия и гармонии, делая территорию привлекательной для прогулок, отдыха и занятий спортом.Сочетание динамики и строгой эстетики в интерьерах помещений жилого комплекса, современные инженерные системы, близость к центру Екатеринбурга и ко всем инфраструктурным объектам - делают покупку недвижимости в жилом комплексе Кайдзен не только комфортным для проживания, но и инвестиционно-привлекательным.Планируемый срок окончания строительства IV квартал 2027

Читать полностью
    Позвонить Написать
    9 244 260 Р116 500 $ или 99 470
    Агент
    +7 (912) 231-15-38
    Начать чат с агентом
    Похожие предложения
    1-комнатная квартира: Екатеринбург, Посадская улица, 26 (46.6 м) - Фото 1
    1-комнатная квартира: Екатеринбург, Посадская улица, 26 (46.6 м) - Фото 2
    1-комнатная квартира, общая площадь 46м², жилая 12м², кухня 19м²

    Жилой комплекс Кайдзен на улице Посадской – это близость к центру и уют спального района с повышенным уровнем комфорта.РасположениеНовый жилой комплекс расположится в Верх-Исетском районе Екатеринбурга на границе улиц Посадской, Белореченской, Шаумяна...
    • 46 м²
    • 1-ком
    • 6/25 эт.
    9 119 620 Р
    Агент
    +7 (912) Показать номер
    Посмотреть контакты
    1-комнатная квартира: Екатеринбург, Посадская улица, 26 (44.2 м) - Фото 1
    1-комнатная квартира: Екатеринбург, Посадская улица, 26 (44.2 м) - Фото 2
    1-комнатная квартира, общая площадь 44м², жилая 14м², кухня 18м²

    Жилой комплекс Кайдзен на улице Посадской – это близость к центру и уют спального района с повышенным уровнем комфорта.РасположениеНовый жилой комплекс расположится в Верх-Исетском районе Екатеринбурга на границе улиц Посадской, Белореченской, Шаумяна...
    • 44 м²
    • 1-ком
    • 24/25 эт.
    9 111 830 Р
    Агент
    +7 (912) Показать номер
    Посмотреть контакты
    1-комнатная квартира: Екатеринбург, Посадская улица, 26 (47 м) - Фото 1
    1-комнатная квартира: Екатеринбург, Посадская улица, 26 (47 м) - Фото 2
    1-комнатная квартира, общая площадь 47м², жилая 13м², кухня 21м²

    Жилой комплекс Кайдзен на улице Посадской – это близость к центру и уют спального района с повышенным уровнем комфорта.РасположениеНовый жилой комплекс расположится в Верх-Исетском районе Екатеринбурга на границе улиц Посадской, Белореченской, Шаумяна...
    • 47 м²
    • 1-ком
    • 12/25 эт.
    9 197 900 Р
    Агент
    +7 (912) Показать номер
    Посмотреть контакты
    1-к кв. Свердловская область, Екатеринбург Солнечный жилрайон,  (42.7 ... - Фото 1
    1-комнатная квартира, общая площадь 42м²

    Продаётся 1-комнатная квартира в строящемся доме (Дом 6.1), срок сдачи: IV-кв. 2025, общей площадью 42.7 кв.м., на 6 этаже. Новый жилой комплекс Жилой район Солнечный от застройщика ГК Эталонасположен по адресу: г. Екатеринбург, Золотистый бульвар....
    • 42 м²
    • 1-ком
    • 6/15 эт.
    9 155 337 Р
    Агент
    +7 (982) Показать номер
    Посмотреть контакты
    1-к кв. Свердловская область, Екатеринбург Солнечный жилрайон,  (43.2 ... - Фото 1
    1-комнатная квартира, общая площадь 43м²

    Продаётся 1-комнатная квартира в строящемся доме (Дом 6.1), срок сдачи: IV-кв. 2025, общей площадью 43.2 кв.м., на 14 этаже. Новый жилой комплекс Жилой район Солнечный от застройщика ГК Эталонасположен по адресу: г. Екатеринбург, Золотистый бульвар....
    • 43 м²
    • 1-ком
    • 14/15 эт.
    9 272 670 Р
    Агент
    +7 (982) Показать номер
    Посмотреть контакты

    Не нашли подходящего объявления?

    Оставьте заявку, и наши риэлторы подберут квартиру в новостройке в районе Екатеринбурга

    (0)