8 300 000 Р 109 100 $ или 93 570

Информация о квартире

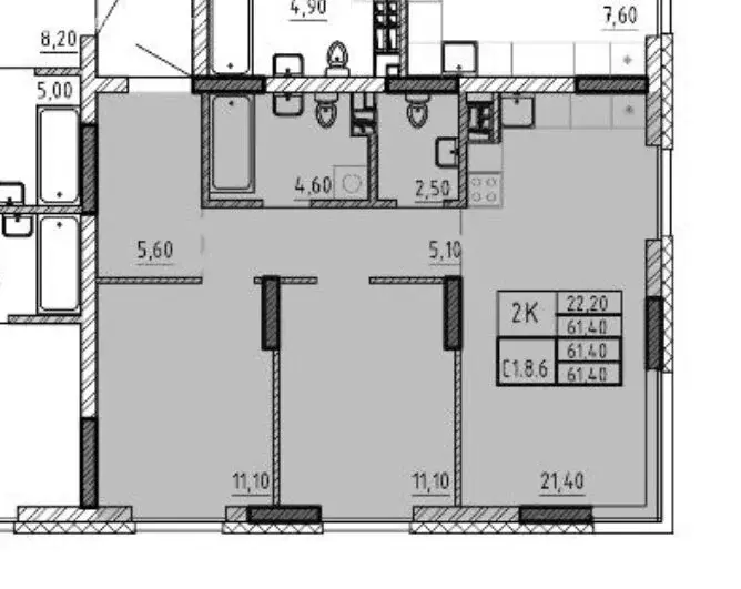
61 м2
Площадь
32 м2
Жилая
21 м2
Кухня
2
Комнаты
8
Этаж
25
Этажность
Развернуть
Агент
+7 (909) 009-78-42
Начать чат с агентом

2-комнатная квартира: Екатеринбург, улица Крауля, 194 (61 м)

Переуступка Ниже цены застройщика Продается двухкомнатная квартира по переуступке прав в ЖК Риверсайд от застройщика Унистрой — отличная инвестиционная возможность Квартира предлагается по цене ниже, чем у застройщика, что позволяет вам выгодно вложить средства и обеспечить рост капитализации в будущем. Планировка квартиры по функционалу трехкомнатной - две спальни и кухня-гостиная.Жилой комплекс Риверсайд порадует вас современными технологиями строительства и элегантным дизайном. Уникальное расположение на берегу водохранилища предлагает живописные виды и возможность активного отдыха на природе. Внутренняя инфраструктура включает в себя магазины, кафе, детские площадки и зоны для отдыха, что делает жизнь здесь комфортной и удобной.Не упустите шанс стать владельцем квартиры в одном из самых перспективных комплексов города — звоните и записывайтесь на просмотр ID объекта в нашей базе: 978

Читать полностью
    Позвонить Написать
    8 300 000 Р109 100 $ или 93 570
    Агент
    +7 (909) 009-78-42
    Начать чат с агентом
    Похожие предложения
    2-к кв. Свердловская область, Екатеринбург ул. Крауля, 194 (61.0 м) - Фото 1
    2-к кв. Свердловская область, Екатеринбург ул. Крауля, 194 (61.0 м) - Фото 2
    2-комнатная квартира, общая площадь 61м², жилая 32м², кухня 21м²

    Переуступка Ниже цены застройщика Продается двухкомнатная квартира по переуступке прав в ЖК Риверсайд от застройщика Унистрой - отличная инвестиционная возможность Квартира предлагается по цене ниже, чем у застройщика, что позволяет вам выгодно...
    • 61 м²
    • 2-ком
    • 8/27 эт.
    • монолит
    8 300 000 Р
    Агент
    +7 (982) Показать номер
    Посмотреть контакты
    2-к кв. Свердловская область, Екатеринбург ул. Академика Парина, 27 ... - Фото 1
    2-к кв. Свердловская область, Екатеринбург ул. Академика Парина, 27 ... - Фото 2
    2-комнатная квартира, общая площадь 52м²

    Проект от основателя и главного застройщика Академического района.Расположение и инфраструктура:Квартал Новая Олимпика включает десять блоков домов, два детских сада в периметре улиц А. Парина А. Ландау А. Вавилова Матвеева.Сроки строительства квартала:...
    • 52 м²
    • 2-ком
    • 16/16 эт.
    • кирпичный
    8 267 100 Р
    Агент
    +7 (994) Показать номер
    Посмотреть контакты
    1-комнатная квартира: Екатеринбург, улица Вильгельма де Геннина, 59 ... - Фото 1
    1-комнатная квартира: Екатеринбург, улица Вильгельма де Геннина, 59 ... - Фото 2
    1-комнатная квартира, общая площадь 38м², жилая 12м²

    ЖК First – жилой комплекс комфорт-класса от ведущего регионального застройщика группа компаний «ИКАР . Расположен в самом центре Академического района на пересечении улиц Академика Ландау и Вавилова.Удобное расположение транспортных развязок позволит...
    • 38 м²
    • 1-ком
    • 22/32 эт.
    8 350 000 Р
    Агент
    +7 (982) Показать номер
    Посмотреть контакты
    1-комнатная квартира: Екатеринбург, улица Вильгельма де Геннина, 59 ... - Фото 1
    1-комнатная квартира: Екатеринбург, улица Вильгельма де Геннина, 59 ... - Фото 2
    1-комнатная квартира, общая площадь 38м², жилая 12м²

    ЖК First – жилой комплекс комфорт-класса от ведущего регионального застройщика группа компаний «ИКАР . Расположен в самом центре Академического района на пересечении улиц Академика Ландау и Вавилова.Удобное расположение транспортных развязок позволит...
    • 38 м²
    • 1-ком
    • 22/32 эт.
    8 350 000 Р
    Агент
    +7 (982) Показать номер
    Посмотреть контакты
    1-к кв. Свердловская область, Екатеринбург ВИЗ жилрайон, Русь XXI ... - Фото 1
    1-к кв. Свердловская область, Екатеринбург ВИЗ жилрайон, Русь XXI ... - Фото 2
    1-комнатная квартира, общая площадь 65м², жилая 19м², кухня 27м²

    Квартира бизнес-класса в ЖК Русь XXI на ВИЗе от застройщика TEN девелопмент Ключи во 2 квартале 2027 года. ЖК Русь XXI - это 10-секционный дом высотой от 7 до 18 этажей, из окон которого открываются вдохновляющие виды на Верх-Исетский пруд и огни...
    • 65 м²
    • 1-ком
    • 2/18 эт.
    8 335 200 Р
    Агент
    +7 (977) Показать номер
    Посмотреть контакты

    Не нашли подходящего объявления?

    Оставьте заявку, и наши риэлторы подберут квартиру в новостройке в районе Екатеринбурга

    (0)