Реализация объекта недвижимости приостановлена

Информация о квартире

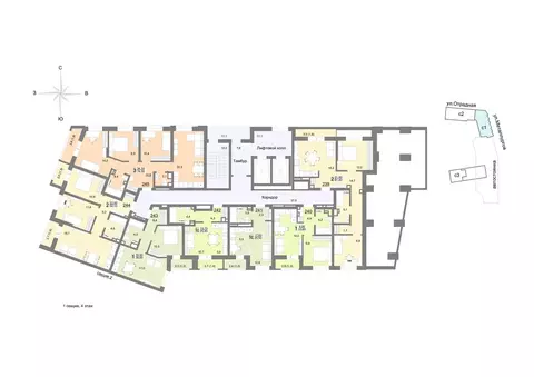
38.0 м2
Площадь
1
Комната
11
Этаж
26
Этажность
Развернуть

1-к кв. Свердловская область, Екатеринбург ул. Металлургов, 63/1 (38.4 ...

Продаётся 1-комнатная квартира в строящемся доме (Секция С2), срок сдачи: III-кв. 2026, общей площадью 38.4 кв.м., на 11 этаже. Многоэтажные жилые дома по ул. Металлургов от ГК Астра . 1 очередь строительства

Читать полностью

    Реализация объекта недвижимости приостановлена

    Не нашли подходящего объявления?

    Оставьте заявку, и наши риэлторы подберут квартиру в новостройке в районе Екатеринбурга

    (0)