7 599 707 Р 93 490 $ или 80 690

Информация о квартире

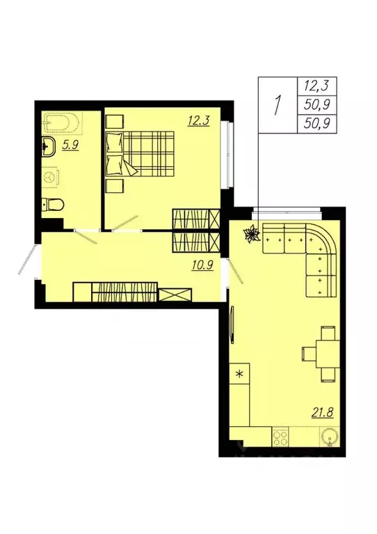
45 м2
Площадь
2
Комнаты
6
Этаж
32
Этажность
Развернуть
Агент
+7 (982) 632-17-55
Начать чат с агентом

2-комнатная квартира: Екатеринбург, жилой район Уралмаш, жилой квартал ...

“Квартал Моменты на Космонавтов” — жилой комплекс комфорт-класса, расположенный в северной части г. Екатеринбурга и состоящий из 2 домов, объединенных центральным лобби, двором-садом с детскими и спортивными площадками. Территория у комплекса будет закрытой и охраняемой.Расположение, транспортная доступностьЖилой комплекс находится в 5 минутах ходьбы от ТЦ Veer Mall. Расположение ЖК «Квартал Моменты на Космонавтов позволяет добраться в центр Екатеринбурга на машине за 20 минут, на автобусе и метро за 30 минут. Выезд на ЕКАД находится в пределах 1,6 км, на машине добраться можно за 7 минут.До остановки общественного транспорта «Радиостанция жильцы смогут дойти за пару минут. Ближайшая к ЖК станция метро — «Проспект Космонавтовасположена в 3,2 км. Пешком можно добраться за 30 минут, на автобусе — в течение 10 минут, на автомобиле или такси — 5 минут.Будет выполнена отделка двух типов: под ключ - В каждой квартире обои под покраску, ламинат 32 класса, керамическая плитка в мокрой зоне прихожей и ванной комнате. Будет установлена акриловая ванная и удобная раковина с тумбой и смесителем. Межкомнатные двери с фурнитурой, натяжной потолок.White box - на полу стяжка, без чистовых покрытий, стены - штукатурка, без финишного слоя и чистовых покрытий, потолки - монолитная плита перекрытия.Во всех квартирах установлены двухкамерные стеклопакеты с пятикамерными профилями. Для безопасности предусмотрены детские замки. В домах спроектирована горизонтальная двухтрубная разводка, что позволяет регулировать каждый радиатор в квартире по отдельности. Квартиры оборудованы умными счетчиками, которые самостоятельно передают показания в ресурсоснабжающие компании.У «Квартала Моменты на Космонавтов закрытая территория, предусмотрено круглосуточное видеонаблюдение. Есть открытая парковка на 230 машиномест, а также подземный паркинг на 76 машиномест.Внутренняя территория находится между жилыми секциями. В озелененным дворе есть детские площадки с качелями, горками, песочницей. Для активного отдыха предусмотрены зона для игры в стритбол, турники, теннисные столы, а для спокойного досуга — беседка и скамейки.

Читать полностью
    Позвонить Написать
    7 599 707 Р93 490 $ или 80 690
    Агент
    +7 (982) 632-17-55
    Начать чат с агентом
    Похожие предложения в Екатеринбурге
    1-к кв. Свердловская область, Екатеринбург ул. Старых Большевиков, 52А ... - Фото 1
    1-комнатная квартира, общая площадь 49м²

    Продаётся 1-комнатная квартира в сданном доме (Старых Большевиков, 52А), срок сдачи: IV-кв. 2024, общей площадью 49.9 кв.м., на 2 этаже. Жилой дом расположен в северо-восточной части г. Екатеринбурга в Орджоникидзевском районе, в границах улиц Войкова...
    • 49 м²
    • 1-ком
    • 2/12 эт.
    7 594 433 Р
    Агент
    +7 (800) Показать номер
    Посмотреть контакты
    2-комнатная квартира: Екатеринбург, жилой район Уралмаш, жилой квартал ... - Фото 1
    2-комнатная квартира: Екатеринбург, жилой район Уралмаш, жилой квартал ... - Фото 2
    2-комнатная квартира, общая площадь 45м²

    “Квартал Моменты на Космонавтов” — жилой комплекс комфорт-класса, расположенный в северной части г. Екатеринбурга и состоящий из 2 домов, объединенных центральным лобби, двором-садом с детскими и спортивными площадками. Территория у комплекса будет закрытой...
    • 45 м²
    • 2-ком
    • 9/32 эт.
    7 599 707 Р
    Агент
    +7 (982) Показать номер
    Посмотреть контакты
    2-комнатная квартира: Екатеринбург, жилой район Уралмаш, жилой квартал ... - Фото 1
    2-комнатная квартира: Екатеринбург, жилой район Уралмаш, жилой квартал ... - Фото 2
    2-комнатная квартира, общая площадь 45м²

    “Квартал Моменты на Космонавтов” — жилой комплекс комфорт-класса, расположенный в северной части г. Екатеринбурга и состоящий из 2 домов, объединенных центральным лобби, двором-садом с детскими и спортивными площадками. Территория у комплекса будет закрытой...
    • 45 м²
    • 2-ком
    • 11/32 эт.
    7 652 118 Р
    Агент
    +7 (982) Показать номер
    Посмотреть контакты
    1-к кв. Свердловская область, Екатеринбург Уралмаш жилрайон, Голос ... - Фото 1
    1-к кв. Свердловская область, Екатеринбург Уралмаш жилрайон, Голос ... - Фото 2
    1-комнатная квартира, общая площадь 39м², жилая 12м², кухня 14м²

    Жилой квартал Голос Заряасположен на пересечении проспекта Космонавтов и улицы Машиностроителей, всего в трех минутах от станции метро Уралмаш . Рядом есть вся необходимая социальная инфраструктура: вузы, колледжи, школы и детские сады, детские и взрослые...
    • 39 м²
    • 1-ком
    • 24/30 эт.
    7 663 300 Р
    Агент
    +7 (994) Показать номер
    Посмотреть контакты
    1-к кв. Свердловская область, Екатеринбург Уралмаш жилрайон, Голос ... - Фото 1
    1-к кв. Свердловская область, Екатеринбург Уралмаш жилрайон, Голос ... - Фото 2
    1-комнатная квартира, общая площадь 37м², жилая 12м², кухня 14м²

    Жилой квартал Голос Заряасположен на пересечении проспекта Космонавтов и улицы Машиностроителей, всего в трех минутах от станции метро Уралмаш . Рядом есть вся необходимая социальная инфраструктура: вузы, колледжи, школы и детские сады, детские и взрослые...
    • 37 м²
    • 1-ком
    • 19/30 эт.
    7 625 480 Р
    Агент
    +7 (994) Показать номер
    Посмотреть контакты

    Не нашли подходящего объявления?

    Оставьте заявку, и наши риэлторы подберут квартиру в новостройке в районе Екатеринбурга

    (0)