Реализация объекта недвижимости приостановлена

Информация о квартире

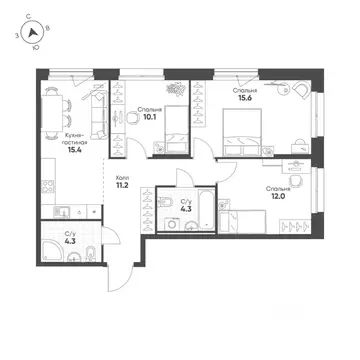
62.0 м2
Площадь
2
Комнаты
9
Этаж
16
Этажность
Развернуть

2-к кв. Свердловская область, Екатеринбург Солнечный жилрайон, (62.9 ...

Продаётся 2-комнатная квартира в строящемся доме (Дом 6.2), срок сдачи: I-кв. 2026, общей площадью 62.9 кв.м., на 9 этаже. Новый жилой комплекс Жилой район Солнечный от застройщика ГК Эталонасположен по адресу: г. Екатеринбург, Золотистый бульвар.

Читать полностью

    Реализация объекта недвижимости приостановлена

    Не нашли подходящего объявления?

    Оставьте заявку, и наши риэлторы подберут квартиру в новостройке в районе Екатеринбурга

    (0)