20 890 000 Р 257 700 $ или 222 400

Информация о квартире

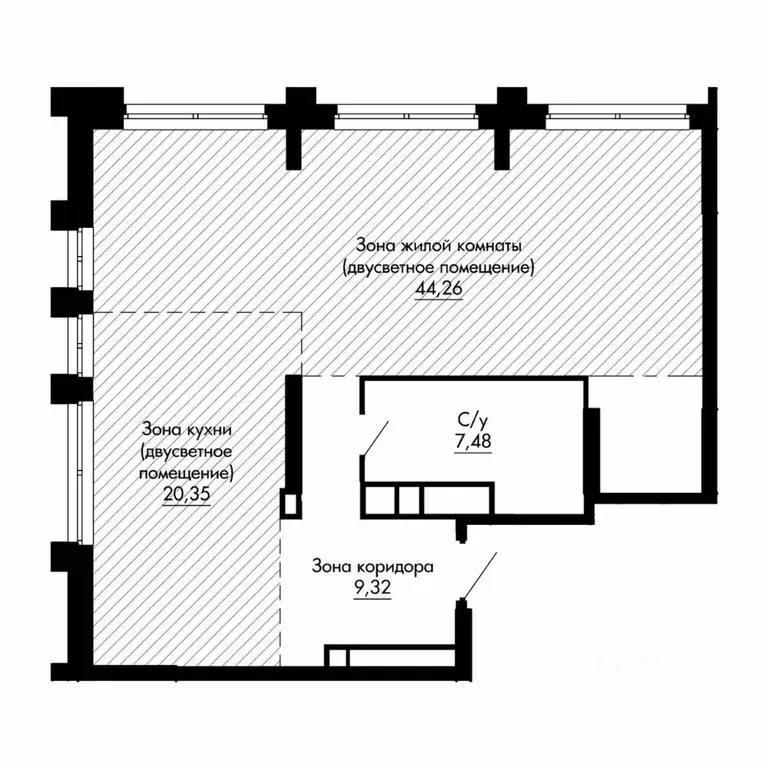
74 м2
Площадь
27 м2
Жилая
24 м2
Кухня
2
Комнаты
9
Этаж
24
Этажность
Развернуть
Агент
+7 (909) 021-63-37
Начать чат с агентом

2-комнатная квартира: Екатеринбург, жилой район Вокзальный, улица ...

Apт.2456198. Квартира с кухней-гостиной и двумя спальнями в квартале «На Некрасова . Особенности планировки: второй санузел, гардеробная, вид во двор, лоджия, разнесённые спальни, предчистовая отделка, мастер-спальня.№ квартиры в нашей базе: НКР02-Ж1.9.6. Квартал «На Некрасова состоит из четырёх домов переменной высотности от 7 до 25 этажей с тихими дворами и подземным паркингом. Особенность квартала — общественные пространства и благоустройство нового уровня: городская площадь с фонтаном, центральный пешеходный бульвар, ландшафтный парк, камерные сады и зелёные кровли домов. Из окон квартир открывается вид на Исеть. В квартале спроектированы помещения под магазины, кафе, аптеки и соседский центр. Проект расположен в центре Екатеринбурга в границах улиц Печерская — Некрасова рядом с управлением железной дороги и крупной транспортной магистралью — улицей Челюскинцев. В пешей доступности — школа № 208, сквер, санаторий, фитнес-центр с бассейном. В 10 минутах ходьбы находится станция метро «Динамо , Олимпийская набережная, Дворец игровых видов спорта, спортивный комплекс «Динамо и киноконцертный театр «Космос . Особенность проекта — цепочка связанных общественных пространств. Новая площадь за зданием управления железной дороги переходит в бульвар и сквер. В центре площади — фонтан. На бульваре расположена детская площадка, спортивная зона и беседки-перголы для спокойного отдыха. Вход во двор организован через колоннаду. Планировочно он разделён на две части. Парадный партер с большим количеством стриженых растений, фонтанами, цветущими кустарниками и более «домашняя , уютная зона, где высажены деревья и низкорослые хвойные растения, многолетники. В центре двора — две детские площадки.

Читать полностью
    Позвонить Написать
    20 890 000 Р257 700 $ или 222 400
    Агент
    +7 (909) 021-63-37
    Начать чат с агентом
    Похожие предложения
    2-комнатная квартира: Екатеринбург, жилой район Вокзальный, улица ... - Фото 1
    2-комнатная квартира: Екатеринбург, жилой район Вокзальный, улица ... - Фото 2
    2-комнатная квартира, общая площадь 74м², жилая 27м², кухня 24м²

    Apт.2424958. Успейте забронировать, пока действует скидка Период предложения ограничен Стоимость квартиры указана со скидкой, ваша экономия составит 970,000 RUB. Информация по телефону, наши менеджеры вам все расскажут Квартира с кухней-гостиной и...
    • 74 м²
    • 2-ком
    • 8/24 эт.
    21 180 000 Р
    Агент
    +7 (909) Показать номер
    Посмотреть контакты
    2-к кв. Свердловская область, Екатеринбург Вокзальный жилрайон, ул. ... - Фото 1
    2-к кв. Свердловская область, Екатеринбург Вокзальный жилрайон, ул. ... - Фото 2
    2-комнатная квартира, общая площадь 74м², жилая 27м², кухня 24м²

    Успейте забронировать по этой цене Предложение ограничено Стоимость квартиры указана со скидкой, ваша экономия составит 970,000 RUB. По всем вопросам обращайтесь в офис продаж, мы вам все подробно расскажем Квартира с кухней-гостиной и двумя спальнями...
    • 74 м²
    • 2-ком
    • 8/24 эт.
    • монолит
    21 180 000 Р
    Агент
    +7 (991) Показать номер
    Посмотреть контакты
    2-комнатная квартира: Екатеринбург, жилой район Вокзальный, улица ... - Фото 1
    2-комнатная квартира: Екатеринбург, жилой район Вокзальный, улица ... - Фото 2
    2-комнатная квартира, общая площадь 74м², жилая 27м², кухня 24м²

    Apт.2456198. Квартира с кухней-гостиной и двумя спальнями в квартале «На Некрасова . Особенности планировки: второй санузел, гардеробная, вид во двор, лоджия, разнесённые спальни, предчистовая отделка, мастер-спальня.№ квартиры в нашей базе: НКР02-Ж1.9.6....
    • 74 м²
    • 2-ком
    • 9/24 эт.
    20 890 000 Р
    Агент
    +7 (909) Показать номер
    Посмотреть контакты
    2-комнатная квартира: Екатеринбург, жилой район Вокзальный, улица ... - Фото 1
    2-комнатная квартира: Екатеринбург, жилой район Вокзальный, улица ... - Фото 2
    2-комнатная квартира, общая площадь 74м², жилая 27м², кухня 24м²

    Apт.2424958. Торопитесь оформить бронирование по этой цене Срок акции ограничен Стоимость квартиры указана со скидкой, ваша экономия составит 970,000 RUB. Информация по телефону, наши менеджеры вам все расскажут Квартира с кухней-гостиной и двумя...
    • 74 м²
    • 2-ком
    • 8/24 эт.
    21 180 000 Р
    Агент
    +7 (909) Показать номер
    Посмотреть контакты
    1-к кв. Свердловская область, Екатеринбург Премиум Кварталы Маяковка ... - Фото 1
    1-к кв. Свердловская область, Екатеринбург Премиум Кварталы Маяковка ... - Фото 2
    1-комнатная квартира, общая площадь 81м², жилая 44м²

    Премиум кварталы Маяковка представляют собой архитектурную композицию, сочетающую в себе высотные башни и пять дворовых блоков. Это величественное сооружение высотных башен существенно выделяется на фоне городского ландшафта, создавая привлекательный...
    • 81 м²
    • 1-ком
    • 25/25 эт.
    21 166 600 Р
    Агент
    +7 (994) Показать номер
    Посмотреть контакты

    Не нашли подходящего объявления?

    Оставьте заявку, и наши риэлторы подберут квартиру в новостройке в районе Екатеринбурга

    (0)