5 190 000 Р 63 970 $ или 54 970

Информация о квартире

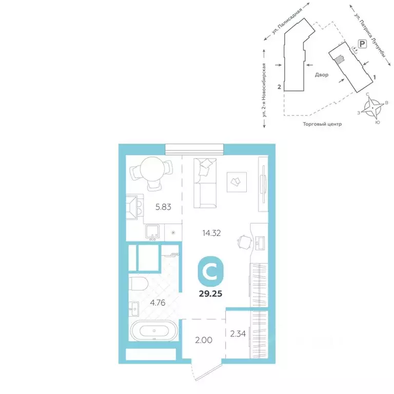
25 м2
Площадь
11 м2
Жилая
5 м2
Кухня
студия
Комнат
12
Этаж
24
Этажность
Развернуть
Агент
+7 (994) 509-36-89
Начать чат с агентом

Студия Свердловская область, Екатеринбург ул. Патриса Лумумбы, 4А ...

Квартира находится в ЖК Бодровский от федерального застройщика Паритет Девелопмент . Это жилой комплекс комфорт-класса с современной архитектурой, расположенный в Екатеринбурге в районе улиц Патриса Лумумбы и 2-й Новосибирской.Добраться от него до центра города можно всего за 25 минут, дорога до ЕКАДа займет 12 минут. В окружении жилого комплекса есть шесть детских садов, пять школ, три больших парка, пять спорткомплексов, в том числе курортный комплекс Уктус.Квартал состоит из двух секций переменной этажности (от 14 до 24 этажей) и подземного паркинга с кладовыми, к которым можно будет спуститься на лифте. На первых этажах предусмотрены коммерческие помещения: жители смогут сделать маникюр, воспользоваться услугами ателье, выпить кофе с круассаном, не покидая своего района. Ввод в эксплуатацию в III кв. 2027 года.Территория комплекса огорожена от машин и посторонних людей. Озеленение с многолетними растениями и деревьями создает ощущение близости к природе. Двор наполнен всем необходимым: песочницы и качели для самых маленьких, интерактивная башня для детей постарше, воркаут-зона и места для отдыха. На всей территории реализована безбарьерная среда.В парадных выполнен авторский ремонт. За счет панорамного остекления и 4-метровых потолков там всегда много естественного света. Предусмотрены колясочные с местами для хранения спортинвентаря и креплениями для велосипедов.В проекте представлены студии, классические одно- и двухкомнатные варианты, а также двух-, трех- и четырехкомнатные квартиры в евроформате площадью от 25,32 до 76,65.Все планировки — функциональные и подходящие новоселам как с детьми, так и без них. Есть варианты с лоджиями, где можно организовать дополнительное пространство для отдыха, спорта или работы, а еще квартиры с мастер-спальней, гардеробной, двумя санузлами. В каждой предусмотрена вытяжная вентиляция с естественным побуждением, счетчики с телеметрией и корзины для кондиционеров.Характеристики квартиры:этаж - 12количество комнат - 1номер помещения - 279площадь квартиры - 25,32 кв.мЧтобы сэкономить время и деньги, можно приобрести квартиру сразу с ремонтом от застройщика. На выбор 3 конфигурации: базовый, с кухонным гарнитуром, с кухонным гарнитуром и другой мебелью - в светлом и темном оттенках. Ремонт можно включить в ипотеку.

Читать полностью
    Позвонить Написать
    5 190 000 Р63 970 $ или 54 970
    Агент
    +7 (994) 509-36-89
    Начать чат с агентом
    Похожие предложения в Екатеринбурге
    Студия Свердловская область, Екатеринбург ул. Патриса Лумумбы, 4А ... - Фото 1
    Студия Свердловская область, Екатеринбург ул. Патриса Лумумбы, 4А ... - Фото 2
    студия, общая площадь 25м², жилая 11м², кухня 5м²

    Квартира находится в ЖК Бодровский от федерального застройщика Паритет Девелопмент . Это жилой комплекс комфорт-класса с современной архитектурой, расположенный в Екатеринбурге в районе улиц Патриса Лумумбы и 2-й Новосибирской.Добраться от него до...
    • 25 м²
    • студия-ком
    • 16/24 эт.
    5 230 000 Р
    Агент
    +7 (994) Показать номер
    Посмотреть контакты
    Студия Свердловская область, Екатеринбург ул. Патриса Лумумбы, 4А ... - Фото 1
    Студия Свердловская область, Екатеринбург ул. Патриса Лумумбы, 4А ... - Фото 2
    студия, общая площадь 27м², жилая 11м², кухня 5м²

    Квартира находится в ЖК Бодровский от федерального застройщика Паритет Девелопмент . Это жилой комплекс комфорт-класса с современной архитектурой, расположенный в Екатеринбурге в районе улиц Патриса Лумумбы и 2-й Новосибирской.Добраться от него до...
    • 27 м²
    • студия-ком
    • 3/24 эт.
    5 300 000 Р
    Агент
    +7 (994) Показать номер
    Посмотреть контакты
    Студия Свердловская область, Екатеринбург ул. Патриса Лумумбы, 4А ... - Фото 1
    Студия Свердловская область, Екатеринбург ул. Патриса Лумумбы, 4А ... - Фото 2
    студия, общая площадь 29м², жилая 14м², кухня 5м²

    Квартира находится в ЖК Бодровский от федерального застройщика Паритет Девелопмент . Это жилой комплекс комфорт-класса с современной архитектурой, расположенный в Екатеринбурге в районе улиц Патриса Лумумбы и 2-й Новосибирской.Добраться от него до...
    • 29 м²
    • студия-ком
    • 4/24 эт.
    5 210 000 Р
    Агент
    +7 (994) Показать номер
    Посмотреть контакты
    Студия Свердловская область, Екатеринбург ул. Патриса Лумумбы, 4А ... - Фото 1
    Студия Свердловская область, Екатеринбург ул. Патриса Лумумбы, 4А ... - Фото 2
    студия, общая площадь 29м², жилая 14м², кухня 5м²

    Квартира находится в ЖК Бодровский от федерального застройщика Паритет Девелопмент . Это жилой комплекс комфорт-класса с современной архитектурой, расположенный в Екатеринбурге в районе улиц Патриса Лумумбы и 2-й Новосибирской.Добраться от него до...
    • 29 м²
    • студия-ком
    • 8/24 эт.
    5 250 000 Р
    Агент
    +7 (994) Показать номер
    Посмотреть контакты
    Студия Свердловская область, Екатеринбург ул. Патриса Лумумбы, 4А ... - Фото 1
    Студия Свердловская область, Екатеринбург ул. Патриса Лумумбы, 4А ... - Фото 2
    студия, общая площадь 29м², жилая 14м², кухня 5м²

    Квартира находится в ЖК Бодровский от федерального застройщика Паритет Девелопмент . Это жилой комплекс комфорт-класса с современной архитектурой, расположенный в Екатеринбурге в районе улиц Патриса Лумумбы и 2-й Новосибирской.Добраться от него до...
    • 29 м²
    • студия-ком
    • 10/24 эт.
    5 270 000 Р
    Агент
    +7 (994) Показать номер
    Посмотреть контакты

    Не нашли подходящего объявления?

    Оставьте заявку, и наши риэлторы подберут квартиру в новостройке в районе Екатеринбурга

    (0)