4 990 000 Р 61 510 $ или 52 470

Информация о квартире

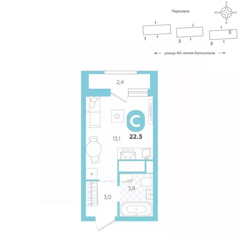
21 м2
Площадь
4 м2
Жилая
12 м2
Кухня
студия
Комнат
15
Этаж
16
Этажность
Развернуть
Агент
+7 (991) 018-24-56
Начать чат с агентом

Студия Свердловская область, Екатеринбург ул. 40-летия Комсомола, 2 ...

Эргономичная квартира-студия с лоджией и перспективой роста в цене — отличный выбор для тех, кто делает первые шаги к самостоятельной жизни. Общая площадь квартиры 21,8 кв.м., и ее умная планировка позволяет создать атмосферу, полностью отражающую ваши стиль и предпочтения. Квартира располагается в ЖК Комсомольский — жилом комплексе комфорт-класса. Здесь вы будете наслаждаться беззаботной жизнью, ведь ваш дом — воплощение практичности, безопасности и надежности. Для удобства предусмотрены колясочные на первых этажах домов, где можно оставить велосипеды и коляски в тепле. За безопасность отвечают система электронных ключей и видеонаблюдение. Еще здесь собственная котельная, поэтому в доме всегда будут горячая вода и оплата счетов только за фактически потребленное тепло.ПРЕИМУЩЕСТВА ЖКНа этаже 14 квартирКрасивые и функциональные парадные с мягкой и стильной зоной для отдыха, книгообменником, встроенными почтовыми ящиками и нишами для сумокКолясочные с доступом по ключуIP-домофоныТихие лифты с плавным ходомО ПРОЕКТЕЖК Комсомольский строится в спокойном Кировском районе Екатеринбурга в границах улиц Сыромолотова — Рассветная — 40-лет Комсомола. Комплекс состоит из трех домов переменной этажности, которые выделяются динамичными линиями, выразительными фасадами и стильными лоджиями.ЛОКАЦИЯВсё, что необходимо для повседневной жизни, находится недалеко от дома: школы, детские сады, продуктовые магазины, фитнес-клубы. Дорога до центра города на машине займет всего 10 минут — достаточно повернуть с улицы 40-летия Комсомола на улицу Владимира Высоцкого. Рядом с этим перекрестком начинается Тропа здоровья — большой терренкур вдоль Каменных палаток .10 мин до центра3-4 минуты до школы No 82, гимназии No 1764-5 минут до детских садов No 208, No 583, 26620 мин до Свердловского областного медицинского колледжа и Центральной городской больницы No 7В рамках стратегического развития района на первых этажах домов появятся коммерческие помещения, в которых откроются магазины и кафе. Следует учесть, что к 2030 году в Кировском районе планируется формирование регионального рекреационно-оздоровительного кластера, строительство ветки метро, расширение и модернизация старых промышленных зон социальной и бизнес-инфраструктуры, что приведет к созданию комфортной среды для жизни. Кроме того, в стратегию входит развитие Шарташского лесного парка как центра регионального и международного туризма.СПОСОБЫ ПОКУПКИИпотека: подберем выгодные условия в нескольких банках, чтобы вы могли выбрать лучшееМатеринской капитал: можно использовать в качестве первоначального взноса Рассрочка: платите частями без Сертификаты: позволяют оплатить часть стоимости квартиры О КОМПАНИИ Паритет Девелопмент — это современный и ответственный подход к реализации проектов в сфере жилищного строительства. Компания формирует среду, способную создать новое качество жизни для клиентов, поэтому каждый проект имеет свою философию — не просто квадр

Читать полностью
    Позвонить Написать
    4 990 000 Р61 510 $ или 52 470
    Агент
    +7 (991) 018-24-56
    Начать чат с агентом
    Похожие предложения
    Студия Свердловская область, Екатеринбург ул. 40-летия Комсомола, 2 ... - Фото 1
    Студия Свердловская область, Екатеринбург ул. 40-летия Комсомола, 2 ... - Фото 2
    студия, общая площадь 23м², жилая 1м², кухня 17м²

    Эргономичная квартира-студия с перспективой роста в цене — отличный выбор для тех, кто делает первые шаги к самостоятельной жизни. Общая площадь квартиры 23,4 кв.м., и ее умная планировка позволяет создать атмосферу, полностью отражающую ваши стиль и...
    • 23 м²
    • студия-ком
    • 5/20 эт.
    5 020 000 Р
    Агент
    +7 (991) Показать номер
    Посмотреть контакты
    Студия Свердловская область, Екатеринбург ул. 40-летия Комсомола, 2 ... - Фото 1
    Студия Свердловская область, Екатеринбург ул. 40-летия Комсомола, 2 ... - Фото 2
    студия, общая площадь 22м², жилая 3м², кухня 13м²

    Эргономичная квартира-студия с лоджией и перспективой роста в цене — отличный выбор для тех, кто делает первые шаги к самостоятельной жизни. Общая площадь квартиры 22,4 кв.м., и ее умная планировка позволяет создать атмосферу, полностью отражающую ваши...
    • 22 м²
    • студия-ком
    • 7/20 эт.
    4 990 000 Р
    Агент
    +7 (991) Показать номер
    Посмотреть контакты
    Студия Свердловская область, Екатеринбург ул. 40-летия Комсомола, 2 ... - Фото 1
    Студия Свердловская область, Екатеринбург ул. 40-летия Комсомола, 2 ... - Фото 2
    студия, общая площадь 22м², жилая 4м², кухня 13м²

    Эргономичная квартира-студия с лоджией и перспективой роста в цене — отличный выбор для тех, кто делает первые шаги к самостоятельной жизни. Общая площадь квартиры 22,3 кв.м., и ее умная планировка позволяет создать атмосферу, полностью отражающую ваши...
    • 22 м²
    • студия-ком
    • 11/16 эт.
    5 050 000 Р
    Агент
    +7 (991) Показать номер
    Посмотреть контакты
    1-комнатная квартира: Екатеринбург, микрорайон Академический, 4-й ... - Фото 1
    1-комнатная квартира: Екатеринбург, микрорайон Академический, 4-й ... - Фото 2
    1-комнатная квартира, общая площадь 32м², жилая 14м²

    Своя квартира в ЖК «СТАРТ в Академическом от застройщика TEN девелопмент Ключи во 2 квартале 2026 года. ЖК «СТАРТ - располагается в самом начале Академического района в границах улиц Вильгельма де Геннина - Краснолесья - Очеретина - Академика Вонсовского,...
    • 32 м²
    • 1-ком
    • 1/25 эт.
    4 947 000 Р
    Агент
    +7 (982) Показать номер
    Посмотреть контакты
    1-комнатная квартира: Екатеринбург, микрорайон Академический, 4-й ... - Фото 1
    1-комнатная квартира: Екатеринбург, микрорайон Академический, 4-й ... - Фото 2
    1-комнатная квартира, общая площадь 32м², жилая 14м²

    Своя квартира в ЖК «СТАРТ в Академическом от застройщика TEN девелопмент Ключи во 2 квартале 2026 года. ЖК «СТАРТ - располагается в самом начале Академического района в границах улиц Вильгельма де Геннина - Краснолесья - Очеретина - Академика Вонсовского,...
    • 32 м²
    • 1-ком
    • 1/25 эт.
    4 938 000 Р
    Агент
    +7 (982) Показать номер
    Посмотреть контакты

    Не нашли подходящего объявления?

    Оставьте заявку, и наши риэлторы подберут квартиру в новостройке в районе Екатеринбурга

    (0)