9 001 200 Р 111 500 $ или 97 200

Информация о квартире

57 м2
Площадь
3
Комнаты
8
Этаж
25
Этажность
Развернуть
Агент
+7 (958) 718-99-43
Начать чат с агентом

3-к кв. Свердловская область, Екатеринбург Уралмаш жилрайон, ул. ...

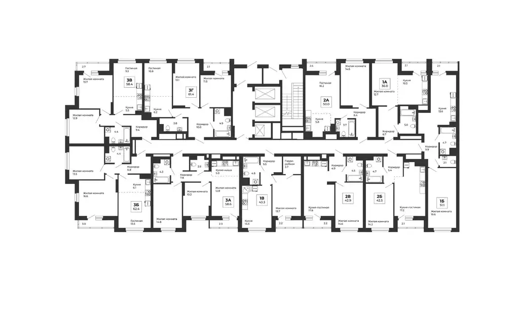
Продаётся 3-комнатная квартира в строящемся доме (Дом 5), срок сдачи: III-кв. 2028, общей площадью 57.7 кв.м., на 8 этаже. ЖК Белая башня - дома с примечательной архитектурой в сердце района Уралмаш. Комплекс расположен вблизи ведущих транспортных линий: ул. Донбасская и ул. Машиностроителей. Белую башню отличает развитая инфраструктура в сочетании с природными и историческими богатствами: рядом парк Победы, озеро Шувакиш, водонапорная Белая башня . В пешей доступности несколько школ, детских садов, кафе и магазинов. Есть спортивная школа по дзюдо и самбо, лыжная база, спортивный комплекс Олимп и домашняя тренировочная арена ФК Урал - СКБ-Банк Арена . В 5 минутах ходьбы ГКБ 14 и один из лучших диагностических центров области. Рядом с домом остановки трамваев, троллейбусов и автобусов. ЖК Белая башня - продуманное пространство внутри двора и функциональные планировки. Выбирайте квартиру на любой вкус: от студии до трехкомнатной. Трехсекционный жилой дом переменной этажности - это первая очередь строительства. Главное преимущество проекта - это комплексная застройка, за счет чего можно организовать пространство комплекса наиболее комфортным образом. Окончание строительства: 4 квартал 2020 Яркое сочетания современности и конструктивизма Примечательная современная архитектура комплекса с сохранением идей конструктивизма. На торцах дома будет стилизованное изображение легендарной Белой башни. Яркая отделка подъездов в фирменном стиле создают запоминающийся образ жилого комплекса Белая башня . Жить в ярком доме - жить яркой жизнью.Современные технологии строительстваВысокое качество строительства обеспечивает жесткий контроль со стороны экспертов и государственных органов. Независимые друг от друга отделы технадзора технического заказчика проекта и генерального подрядчика проводят мониторинг строительства ЖК Белая башня . Кроме того, эксперты проверяют стройматериалы, выполненные работы в несколько этапов. К примеру, бетон тестируют при доставке на стройплощадку и после набора прочности.Отделка квартиры от застройщика в подарокГотовая квартира значительно упрощает переезд в новое жильё. Квартиры в ЖК Белая башня сдаются с чистовой отделкой. Выровненные стены, пол и потолок; на полу ламинат, на стенах обои под покраску, установлены межкомнатные и входные двери, в ванной - сантехника и плитка. При отделке квартиры мы тщательно подходим к выбору отделочных материалов и их поставщиков. В квартирах улучшенная шумоизоляция.Закрытый двор без машинБезопасность маленьких жителей ЖК Белая башня - важная составляющая концепции. Архитектурное решение проекта позволило создать безопасный закрытый от машин двор с улучшенными детскими площадками. Для спокойствия родителей и радости их детей.Современная клиника во двореИнфраструктура - одно из преимуществ Белой башни . В первом доме комплекса расположится современная клиника Здоровье 365 , отличающаяся своим качественным подходом. Функциональные планировкиКвартиры комплекса Белая башня - эт

Читать полностью
    Позвонить Написать
    9 001 200 Р111 500 $ или 97 200
    Агент
    +7 (958) 718-99-43
    Начать чат с агентом
    Похожие предложения в Екатеринбурге
    3-к кв. Свердловская область, Екатеринбург Уралмаш жилрайон, ул. ... - Фото 1
    3-к кв. Свердловская область, Екатеринбург Уралмаш жилрайон, ул. ... - Фото 2
    3-комнатная квартира, общая площадь 57м²

    Продаётся 3-комнатная квартира в строящемся доме (Дом 5), срок сдачи: III-кв. 2028, общей площадью 57.8 кв.м., на 6 этаже. ЖК Белая башня - дома с примечательной архитектурой в сердце района Уралмаш. Комплекс расположен вблизи ведущих транспортных линий:...
    • 57 м²
    • 3-ком
    • 6/25 эт.
    9 016 800 Р
    Агент
    +7 (958) Показать номер
    Посмотреть контакты
    3-к кв. Свердловская область, Екатеринбург Уралмаш жилрайон, ул. ... - Фото 1
    3-к кв. Свердловская область, Екатеринбург Уралмаш жилрайон, ул. ... - Фото 2
    3-комнатная квартира, общая площадь 58м²

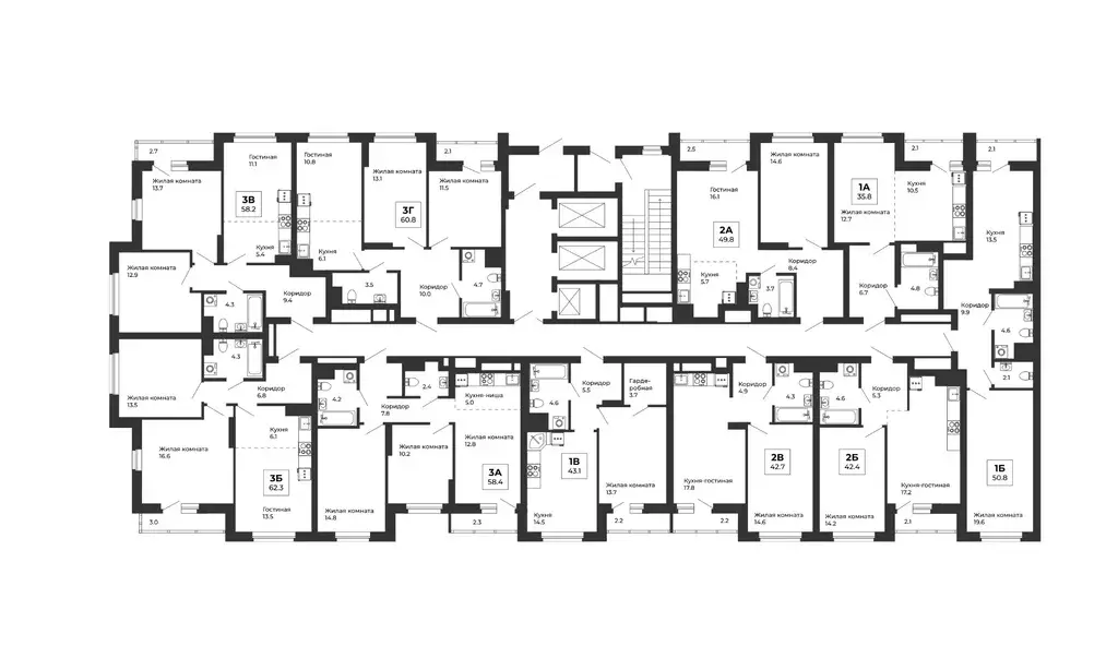
    Продаётся 3-комнатная квартира в строящемся доме (Дом 5), срок сдачи: III-кв. 2028, общей площадью 58.2 кв.м., на 4 этаже. ЖК Белая башня - дома с примечательной архитектурой в сердце района Уралмаш. Комплекс расположен вблизи ведущих транспортных линий:...
    • 58 м²
    • 3-ком
    • 4/25 эт.
    8 962 800 Р
    Агент
    +7 (958) Показать номер
    Посмотреть контакты
    3-к кв. Свердловская область, Екатеринбург Уралмаш жилрайон, ул. ... - Фото 1
    3-к кв. Свердловская область, Екатеринбург Уралмаш жилрайон, ул. ... - Фото 2
    3-комнатная квартира, общая площадь 58м²

    Продаётся 3-комнатная квартира в строящемся доме (Дом 5), срок сдачи: III-кв. 2028, общей площадью 58.4 кв.м., на 2 этаже. ЖК Белая башня - дома с примечательной архитектурой в сердце района Уралмаш. Комплекс расположен вблизи ведущих транспортных линий:...
    • 58 м²
    • 3-ком
    • 2/25 эт.
    8 993 600 Р
    Агент
    +7 (958) Показать номер
    Посмотреть контакты
    3-к кв. Свердловская область, Екатеринбург Уралмаш жилрайон, ул. ... - Фото 1
    3-к кв. Свердловская область, Екатеринбург Уралмаш жилрайон, ул. ... - Фото 2
    3-комнатная квартира, общая площадь 58м²

    Продаётся 3-комнатная квартира в строящемся доме (Дом 5), срок сдачи: III-кв. 2028, общей площадью 58.2 кв.м., на 3 этаже. ЖК Белая башня - дома с примечательной архитектурой в сердце района Уралмаш. Комплекс расположен вблизи ведущих транспортных линий:...
    • 58 м²
    • 3-ком
    • 3/25 эт.
    8 962 800 Р
    Агент
    +7 (958) Показать номер
    Посмотреть контакты
    3-к кв. Свердловская область, Екатеринбург Уралмаш жилрайон, ул. ... - Фото 1
    3-к кв. Свердловская область, Екатеринбург Уралмаш жилрайон, ул. ... - Фото 2
    3-комнатная квартира, общая площадь 57м²

    Продаётся 3-комнатная квартира в строящемся доме (Дом 5), срок сдачи: III-кв. 2028, общей площадью 57.9 кв.м., на 8 этаже. ЖК Белая башня - дома с примечательной архитектурой в сердце района Уралмаш. Комплекс расположен вблизи ведущих транспортных линий:...
    • 57 м²
    • 3-ком
    • 8/25 эт.
    9 032 400 Р
    Агент
    +7 (958) Показать номер
    Посмотреть контакты

    Не нашли подходящего объявления?

    Оставьте заявку, и наши риэлторы подберут квартиру в новостройке в районе Екатеринбурга

    (0)