5 828 858 Р 71 850 $ или 61 730

Информация о квартире

33 м2
Площадь
студия
Комнат
8
Этаж
32
Этажность

Дополнительная информация

Тип дома
монолит
Развернуть
Агент
+7 (994) 509-37-19
Начать чат с агентом

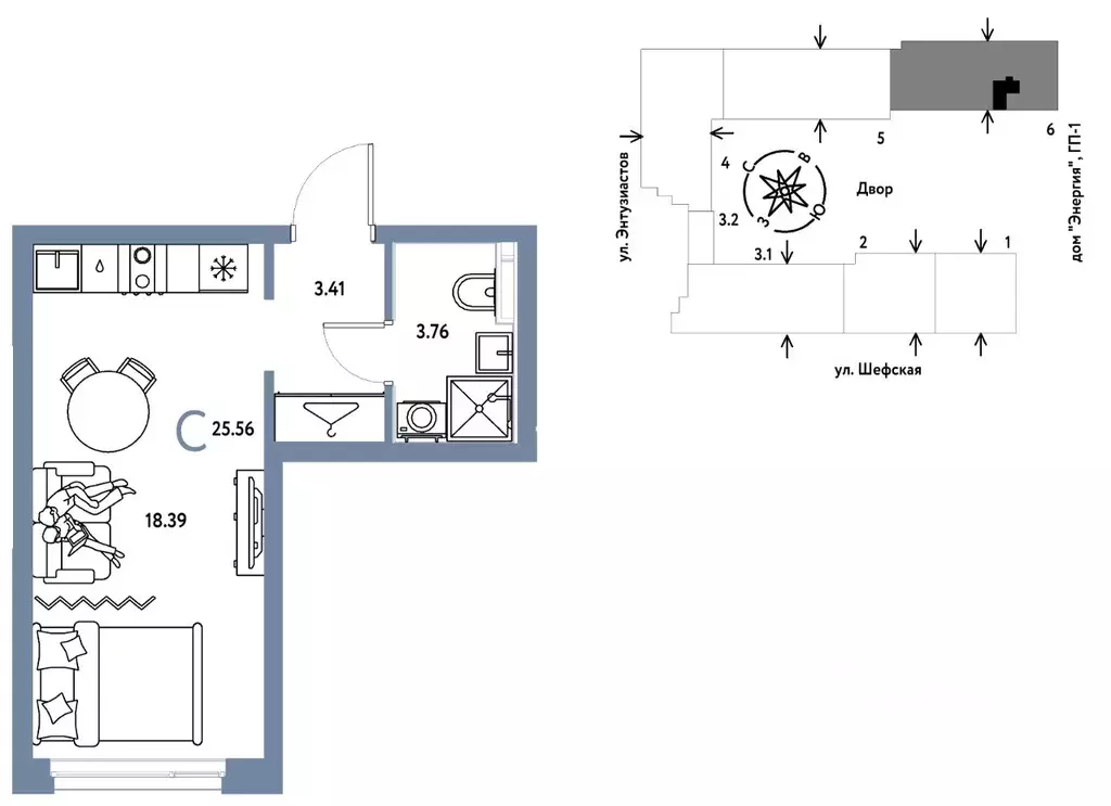
Студия Свердловская область, Екатеринбург Уралмаш жилрайон, (33.4 м)

Квартал Моменты на Космонавтов — жилой комплекс комфорт-класса, расположенный в северной части г. Екатеринбурга и состоящий из 2 домов, объединенных центральным лобби, двором-садом с детскими и спортивными площадками. Территория у комплекса будет закрытой и охраняемой.Расположение, транспортная доступностьЖилой комплекс находится в 5 минутах ходьбы от ТЦ Veer Mall. Расположение ЖК Квартал Моменты на Космонавтов позволяет добраться в центр Екатеринбурга на машине за 20 минут, на автобусе и метро за 30 минут. Выезд на ЕКАД находится в пределах 1,6 км, на машине добраться можно за 7 минут.До остановки общественного транспорта Радиостанция жильцы смогут дойти за пару минут. Ближайшая к ЖК станция метро — Проспект Космонавтовасположена в 3,2 км. Пешком можно добраться за 30 минут, на автобусе — в течение 10 минут, на автомобиле или такси — 5 минут.Будет выполнена отделка двух типов: под ключ - В каждой квартире обои под покраску, ламинат 32 класса, керамическая плитка в мокрой зоне прихожей и ванной комнате. Будет установлена акриловая ванная и удобная раковина с тумбой и смесителем. Межкомнатные двери с фурнитурой, натяжной потолок.White box - на полу стяжка, без чистовых покрытий, стены - штукатурка, без финишного слоя и чистовых покрытий, потолки - монолитная плита перекрытия.Во всех квартирах установлены двухкамерные стеклопакеты с пятикамерными профилями. Для безопасности предусмотрены детские замки. В домах спроектирована горизонтальная двухтрубная разводка, что позволяет регулировать каждый радиатор в квартире по отдельности. Квартиры оборудованы умными счетчиками, которые самостоятельно передают показания в ресурсоснабжающие компании.У Квартала Моменты на Космонавтов закрытая территория, предусмотрено круглосуточное видеонаблюдение. Есть открытая парковка на 230 машиномест, а также подземный паркинг на 76 машиномест.Внутренняя территория находится между жилыми секциями. В озелененным дворе есть детские площадки с качелями, горками, песочницей. Для активного отдыха предусмотрены зона для игры в стритбол, турники, теннисные столы, а для спокойного досуга — беседка и скамейки.

Читать полностью
    Позвонить Написать
    5 828 858 Р71 850 $ или 61 730
    Агент
    +7 (994) 509-37-19
    Начать чат с агентом
    Похожие предложения в Екатеринбурге
    1-комнатная квартира: Екатеринбург, проспект Космонавтов, 103А (31.51 ... - Фото 1
    1-комнатная квартира: Екатеринбург, проспект Космонавтов, 103А (31.51 ... - Фото 2
    1-комнатная квартира, общая площадь 31м², жилая 10м²

    ЖК «Радиостанция – это новый парк-квартал на Уралмаше с уникальной историей. Современные высотки с продуманными планировками от студий до просторных квартир. Ключевая особенность – масштабный двор-парк с зонами для спорта, игр и отдыха, свободный от...
    • 31 м²
    • 1-ком
    • 16/20 эт.
    5 810 000 Р
    Агент
    +7 (958) Показать номер
    Посмотреть контакты
    1-к кв. Свердловская область, Екатеринбург ул. Красных Командиров, 80 ... - Фото 1
    1-к кв. Свердловская область, Екатеринбург ул. Красных Командиров, 80 ... - Фото 2
    1-комнатная квартира, общая площадь 27м²

    Квартал на Шефской - это 21 этаж комфортабельных квартир, уютно расположившиеся в самом сердце Эльмаша в границах улиц Шефская и Красных Командиров.Дом На Шефской станет первой новостройкой в рамках развития микрорайона. На Эльмаше будет застроена...
    • 27 м²
    • 1-ком
    • 4/26 эт.
    5 888 381 Р
    Агент
    +7 (994) Показать номер
    Посмотреть контакты
    1-к кв. Свердловская область, Екатеринбург ул. Красных Командиров, 80 ... - Фото 1
    1-к кв. Свердловская область, Екатеринбург ул. Красных Командиров, 80 ... - Фото 2
    1-комнатная квартира, общая площадь 27м²

    Квартал на Шефской - это 21 этаж комфортабельных квартир, уютно расположившиеся в самом сердце Эльмаша в границах улиц Шефская и Красных Командиров.Дом На Шефской станет первой новостройкой в рамках развития микрорайона. На Эльмаше будет застроена...
    • 27 м²
    • 1-ком
    • 3/26 эт.
    5 856 880 Р
    Агент
    +7 (994) Показать номер
    Посмотреть контакты
    1-к кв. Свердловская область, Екатеринбург ул. Красных Командиров, 80 ... - Фото 1
    1-к кв. Свердловская область, Екатеринбург ул. Красных Командиров, 80 ... - Фото 2
    1-комнатная квартира, общая площадь 27м²

    Квартал на Шефской - это 21 этаж комфортабельных квартир, уютно расположившиеся в самом сердце Эльмаша в границах улиц Шефская и Красных Командиров.Дом На Шефской станет первой новостройкой в рамках развития микрорайона. На Эльмаше будет застроена...
    • 27 м²
    • 1-ком
    • 2/26 эт.
    5 825 383 Р
    Агент
    +7 (994) Показать номер
    Посмотреть контакты
    Студия Свердловская область, Екатеринбург ул. Шефская, 28А (25.56 м) - Фото 1
    Студия Свердловская область, Екатеринбург ул. Шефская, 28А (25.56 м) - Фото 2
    студия, общая площадь 25м², жилая 13м², кухня 5м²

    Продаётся студия в строящемся доме (Потенциал), срок сдачи: IV-кв. 2027, общей площадью 25.56 кв.м., на 8 этаже. Новый жилой комплекс Страна.Энтузиастов от группы компаний Страна Девелопментасположен по адресу: г. Екатеринбург, по ул. Шефская.
    • 25 м²
    • студия-ком
    • 8/24 эт.
    • монолит
    5 855 556 Р
    Агент
    +7 (958) Показать номер
    Посмотреть контакты

    Не нашли подходящего объявления?

    Оставьте заявку, и наши риэлторы подберут квартиру в новостройке в районе Екатеринбурга

    (0)