Реализация объекта недвижимости приостановлена

Информация о квартире

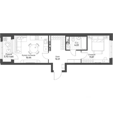
59.0 м2
Площадь
2
Комнаты
26
Этаж
27
Этажность
Развернуть

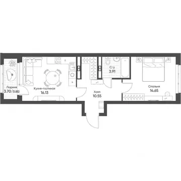
2-к кв. Свердловская область, Екатеринбург ул. Лыжников, 3 (59.8 м)

Продаётся 2-комнатная квартира в сданном доме (1 этап), срок сдачи: I-кв. 2024, общей площадью 59.8 кв.м., на 26 этаже. Новый жилой комплекс Большой каретный от Специализированного застройщика Нижнеисетский прудасположен в г. Екатеринбург в квартале улиц Щербакова-Лыжников-Миасская-пер. Дунитовый.

Читать полностью

    Реализация объекта недвижимости приостановлена

    Не нашли подходящего объявления?

    Оставьте заявку, и наши риэлторы подберут квартиру в новостройке в районе Екатеринбурга

    (0)