Реализация объекта недвижимости приостановлена

Информация о квартире

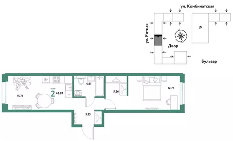
37.0 м2
Площадь
16.0 м2
Жилая
11.0 м2
Кухня
1
Комната
1
Этаж
16
Этажность
Развернуть

1-комнатная квартира: Екатеринбург, жилой район Уктус, ЖК Шишимская ...

Apт.2500522. Спешите забронировать по этой цене Предложение ограничено Стоимость квартиры указана со скидкой, ваша экономия составит 720,000 RUB. Информация по телефону, наши менеджеры вам все расскажут Квартира с кухней-гостиной и одной спальней в районе Шишимская горка. Особенности планировки: окна в пол, вид во двор, панорамное остекление, предчистовая отделка.№ квартиры в нашей базе: ШГР17.1-Ж3.1.1. «Шишимская горка — район, состоящий из замкнутых кварталов переменной этажности и башен-доминант. Он расположен на Уктусе, в одной из старейших частей Екатеринбурга. Вокруг уже сформирована необходимая инфраструктура. Рядом — две крупных автомобильных развязки (объездная дорога и Кольцовский тракт), Уктусский лесопарк, торговый центр «Глобус , аквапарк, ледовая арена, океанариум, кинотеатр, школы и детские сады. До ближайшей станции метро — 15 минут на общественном транспорте. В основе каждого проекта — принцип mixed-use, который подразумевает объединение в пределах одной локации коммерческой, жилой и развлекательной функций. На первых этажах расположены коммерческие помещения: магазины, кафе, аптеки, спортивные центры и другие полезные сервисы. Между собой кварталы соединены широким пешеходным бульваром с игровыми и спортивными площадками, деревьями и кустарниками, привезенными из европейских питомников. Всего более 30 видов растений. Концепцию благоустройства архитекторы построили на принципах скандинавского натурализма, сочетающего в себе функциональность, простоту и сдержанность. Двор дома — «Каньон , это крупный парк, который связывает все очереди строительства и располагается на рельефе с перепадом до 40 метров. Каньон представляет собой каскад ландшафтных зон, связанных рампами и лестницами, которые зигзагом поднимаются в сторону горы Уктус. Стилистически и идеологически ландшафт выполнен в скандинавском стиле.

Читать полностью

    Реализация объекта недвижимости приостановлена

    Не нашли подходящего объявления?

    Оставьте заявку, и наши риэлторы подберут квартиру в новостройке в районе Екатеринбурга

    (0)