Реализация объекта недвижимости приостановлена

Информация о квартире

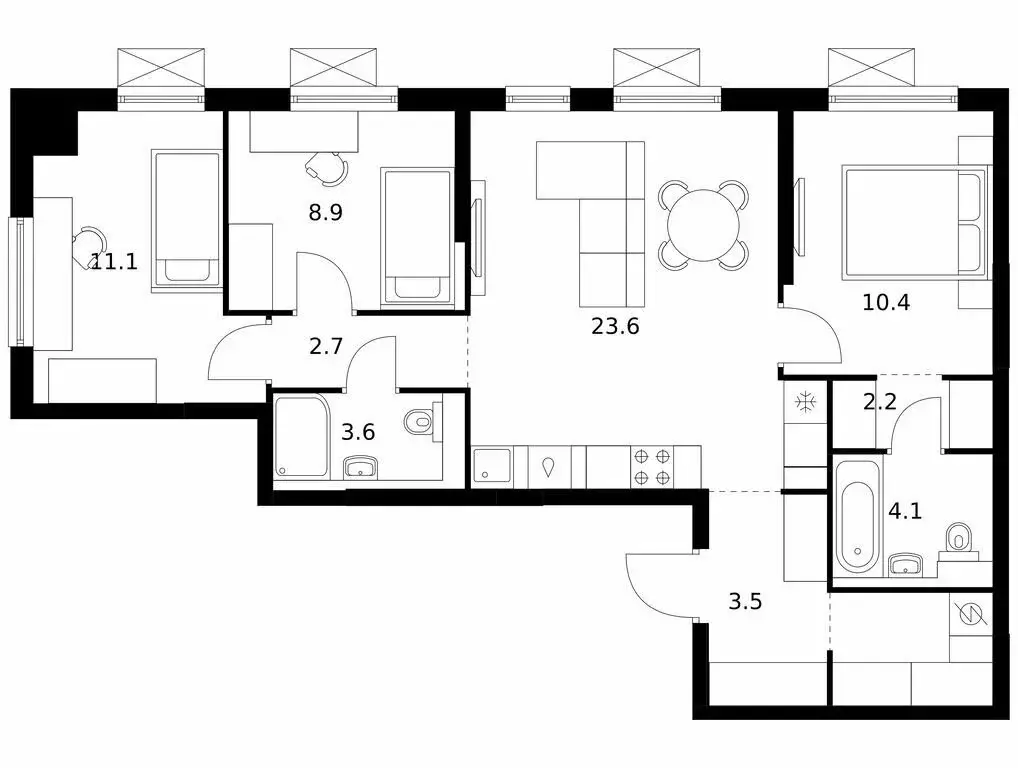
74.0 м2
Площадь
3
Комнаты
24
Этаж
29
Этажность
Развернуть

3-комнатная квартира: Екатеринбург, жилой район Уктус, жилой комплекс ...

Продаётся 3-комн.квартира площадью 74.90 кв.м на 24 этаже 29 этажного дома (Корпус 6, секция 1) проекта ПИК Утёс. Светлый просторный подъезд на уровне земли, функциональная планировка, большие окна, с отделкой. Жилой квартал «Утёс находится в Екатеринбурге, в самом центре микрорайона Уктус, в 25 минутах на автомобиле от центра города. Рядом река Исеть, на которую открывается панорамный вид из окон квартала. Для прогулок возле реки у жителей проекта будет собственная благоустроенная набережная. В микрорайон входит десять жилых корпусов, собственный детский сад для 236 малышей и многоуровневые надземные паркинги на 848 мест. На первых этажах домов откроются кафе, магазины и другие сервисы. Застройка разной высоты даёт ощущение свободного пространства и пропускает много естественного света в квартиры и во дворы. Во дворах появятся уютные парки с детскими площадками и местами для отдыха — здесь можно будет отдохнуть после работы, поболтать с соседями, почитать в тени или позаниматься йогой. Спортивные площадки мы разместим так, чтобы шум от них не мешал жителям. В окружающем районе есть всё для комфортной жизни: школы, детские сады, поликлиники, продуктовые магазины. За 7 минут на автомобиле можно доехать до крупных торговых центров — например, до ТРЦ «Глобус . Рядом есть парки — Парк Лесоводов России, «Уктусские горы и Карасье-Озёрский лесной парк. Артикул - 967198

Читать полностью

    Реализация объекта недвижимости приостановлена

    Не нашли подходящего объявления?

    Оставьте заявку, и наши риэлторы подберут квартиру в новостройке в районе Екатеринбурга

    (0)