Реализация объекта недвижимости приостановлена

Информация о квартире

34.0 м2
Площадь
19.0 м2
Жилая
3.0 м2
Кухня
студия
Комнат
8
Этаж
25
Этажность
Развернуть

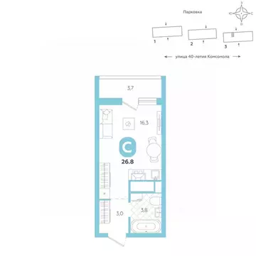
Студия Свердловская область, Екатеринбург Академический мкр, 19-й ...

Студия правильной квадратной формы с выходом на лоджию и балкон. Просторная прихожая.

Читать полностью

    Реализация объекта недвижимости приостановлена

    Не нашли подходящего объявления?

    Оставьте заявку, и наши риэлторы подберут квартиру в новостройке в районе Екатеринбурга

    (0)