Реализация объекта недвижимости приостановлена

Информация о квартире

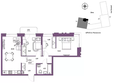
83.0 м2
Площадь
4
Комнаты
6
Этаж
11
Этажность
Развернуть

4-к кв. Свердловская область, Екатеринбург Академический мкр, Первый ...

Проект от основателя и главного застройщика Академического района.Расположение и инфраструктура:Квартал Первый Академ включает восемь блоков домов, две школы и четыре детских сада в периметре улиц Краснолесья А. Мехренцева Ак. Вонсовского Очеретина.Сроки строительства квартала: 1 квартал 2023 3 квартал 2028.В числе особых преимуществ близость к Юго-западному лесопарку и ТРЦ Академический : магазины, кафе, парк развлечений, кинотеатр, фитнесс-центр с бассейном. Развитая транспортная развязка, включающая трамвайную линию.На территории квартала планируется: видеонаблюдение 24/7, подземный паркинг с доступом на лифте, кладовые, велодорожки, многоуровневое озеленение, workout зоны для уличного фитнеса, детские игровые комплексы в эко-стиле. На первых этажах будут располагаться торговые галереи.

Читать полностью

    Реализация объекта недвижимости приостановлена

    Не нашли подходящего объявления?

    Оставьте заявку, и наши риэлторы подберут квартиру в новостройке в районе Екатеринбурга

    (0)