Реализация объекта недвижимости приостановлена

Информация о квартире

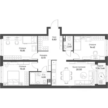
64.0 м2
Площадь
25.0 м2
Жилая
28.0 м2
Кухня
2
Комнаты
8
Этаж
22
Этажность

Дополнительная информация

Тип дома
монолит
Развернуть

2-к кв. Свердловская область, Екатеринбург ул. Шатурская (64.8 м)

Двухкомнатная квартира — это решение для тех, кто ценит комфорт или планирует расширение семьи. Здесь достаточно места для создания уютного семейного очага, кабинета или просторной гостиной, а планировка легко адаптируется под потребности. Атлас Ауро — это жилая экосистема комфорт-плюс класса, включающая в себя пять секций от 18 до 32 этажей с закрытой территорией и приватным двор-парком, разделенным на тихие зоны отдыха для взрослых и детей. Все это обеспечивает покой для каждого члена семьи. В Атлас Ауро предусмотрены два светлых лобби в природных оттенках с уютной мебелью, растениями и зеркалами. В проекте реализованы разнообразные планировки для семей, молодых пар и творческих личностей.В проектах Атлас Девелопмент вы можете воспользоваться специальными условиями рассрочки, ипотеки, трейд-ин или комбо-покупки в зависимости от конкретного комплекса.Жилая экосистема расположена в пяти минутах от дома от станции метро Ботаническая и остановок общественного транспорта.

Читать полностью

    Реализация объекта недвижимости приостановлена

    Не нашли подходящего объявления?

    Оставьте заявку, и наши риэлторы подберут квартиру в новостройке в районе Екатеринбурга

    (0)