Реализация объекта недвижимости приостановлена

Информация о квартире

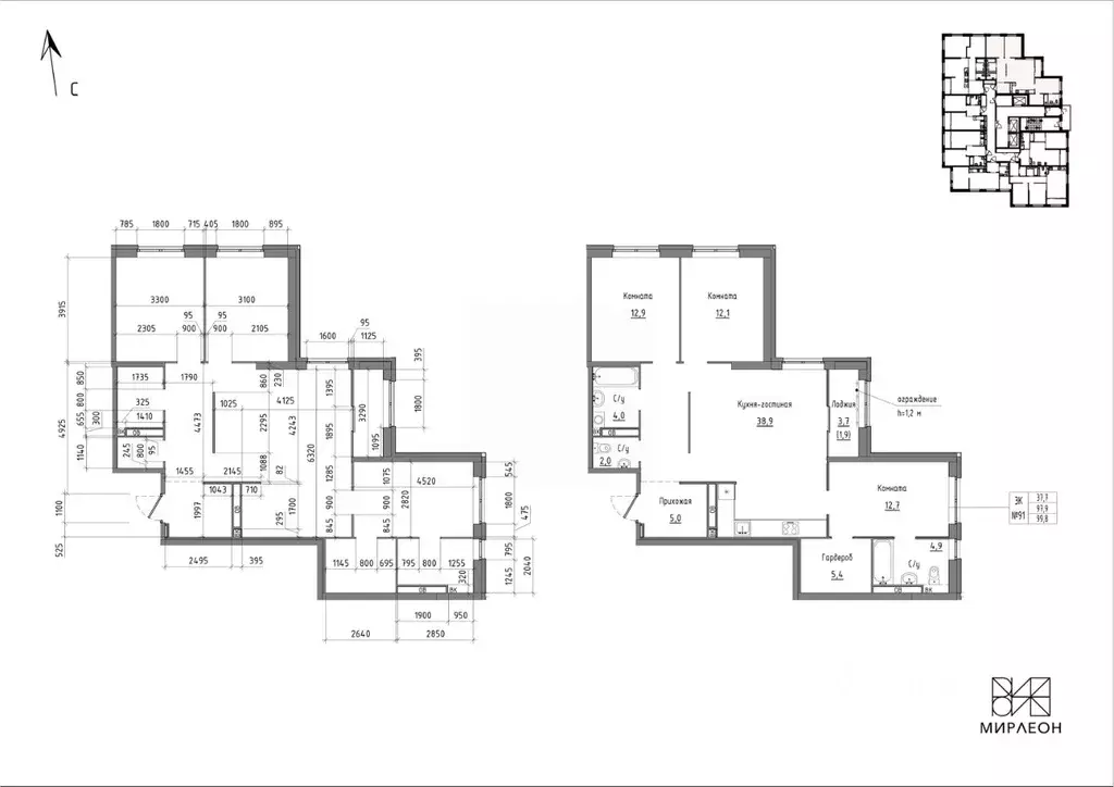
99.0 м2
Площадь
37.0 м2
Жилая
38.0 м2
Кухня
3
Комнаты
14
Этаж
26
Этажность
Развернуть

3-к кв. Свердловская область, Екатеринбург Вторчермет жилрайон, ул. ...

Вы выбираете жить на полную, поэтому эта роскошная по площади и планировке квартира с мастер-спальней (спальный блок, оборудованный отдельной ванной комнатой и гардеробной) и двумя спальнями зонами, точно для вас. Впечатляющая площадь кухни-гостиной подойдет для обустройства кухонной зоны, обеденной группы и места для расслабляющего отдыха, а теплая лоджия станет дополнительным пространством для уединенного досуга или хобби. Особенностью этой планировки является наличие окна в ванной комнате мастер-спальни. Это не только улучшает вентиляцию помещения, но и добавляет света, делая пространство более приятным и объемным.Высота потолков 2.7 м. Уровень отделки white-box (подготовка под чистовую) представлен в 3d-туре на сайте жилого комплекса.

Читать полностью

    Реализация объекта недвижимости приостановлена

    Не нашли подходящего объявления?

    Оставьте заявку, и наши риэлторы подберут квартиру в новостройке в районе Екатеринбурга

    (0)