7 300 000 Р 89 710 $ или 77 850

Информация о коттедже

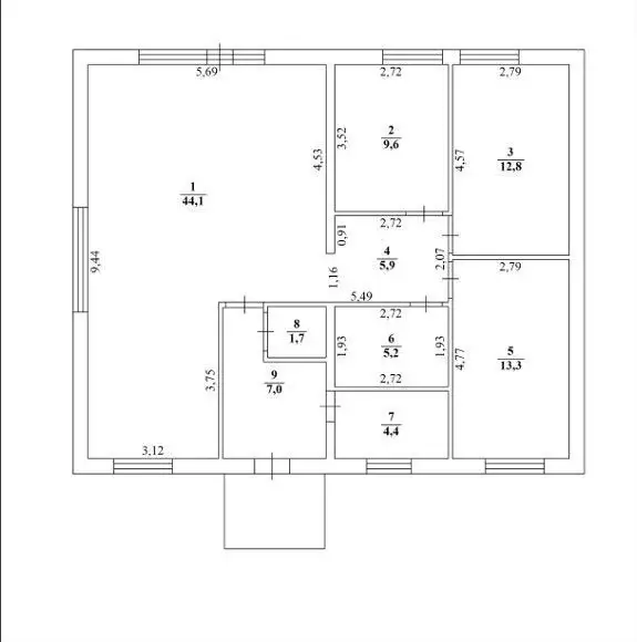
75 м2
Площадь
1
Этажность
6 cоток
Участок

Дополнительная информация

Дом продаётся вместе с участком
есть
Развернуть
Агент
+7 (982) 750-42-77
Начать чат с агентом

Дом в Екатеринбург, ДНП Аэродром, Изумрудная улица (75 м)

Объект №573. Продажа нового дома в ДНП «Аэродром : компактное решение с возможностью доработкиГлавноеНовый дом площадью 75м на участке 6соток — оптимальный вариант для тех, кто ценит разумный баланс цены и комфорта. Дом с предчистовой отделкой: вы можете завершить ремонт по своему вкусу или заказать отделку «под ключ за . Планировка включает 3 спальни, кухнюгостиную, санузел и котельную. Надёжные конструктивные решения обеспечивают долговечность и энергоэффективность жилья.Что по конструкции— Фундамент: свайноростверковый (сваи длиной 2,5м, шаг 2м).— Стены: твинблок толщиной 300мм + утепление минеральной ватой (50мм).— Кровля: утепление минеральной ватой, слой 200мм.— Арматура: металлическая.— Канализация: септик «Урал Био .Как спланировано внутри— 3 спальни — достаточно места для небольшой семьи.— Кухнягостиная: универсальное пространство для повседневных дел и приёма гостей.— Санузел: функциональная планировка.— Котельная: отдельное помещение для инженерного оборудования.Про сделку— Статус отделки: предчистовая (есть опция «под ключ за).— Дом готов к дальнейшим работам — можно приступать к финишной отделке.

Читать полностью

    Для того, чтобы купить 1-этажный коттедж по адресу: Екатеринбург, ДНП Аэродром, позвоните по телефону +7 (982) 750-42-77. Торопитесь! Объявление №50016550112 о продаже одноэтажного коттеджа опубликовано 2 дня назад.

    Позвонить Написать
    7 300 000 Р89 710 $ или 77 850
    Агент
    +7 (982) 750-42-77
    Начать чат с агентом
    Похожие предложения в Екатеринбурге
    Дом в Свердловская область, Екатеринбург  (130 м) - Фото 1
    Дом в Свердловская область, Екатеринбург  (130 м) - Фото 2
    2 этажа, общая площадь 130м², участок 7 соток

    ИЩЕТЕ ГОТОВЫЙ ДОМ? Забудьте о годах стройки Не тратьте жизнь на поиски того самого готового домаЧто если ваш дом, спроектированный ПОД ВАШ участок и желания, будет возведен - буквально за 14 дней? Преимущества нашей технологии: Заводские производство...
    • 2 эт.
    • 130 м²
    • 7 сот.
    7 300 000 Р
    Агент
    +7 (982) Показать номер
    Посмотреть контакты
    Дом в Свердловская область, Екатеринбург ул. Рыбная, 7 (35 м) - Фото 1
    Дом в Свердловская область, Екатеринбург ул. Рыбная, 7 (35 м) - Фото 2
    1 этаж, общая площадь 35м², участок 6 соток

    Арт.ПРЕДЛАГАЕТСЯ к продаже ДОМ с земельным участком ИЖС. По адресу г. Екатеринбург , ул. Рыбная , д 7 , на берегу озера Шарташ и рядом с Шарташским лесопарком. Дом расположен в черте Екатеринбурга со всей городской инфраструктурой. До остановки общественного...
    • 1 эт.
    • 35 м²
    • 6 сот.
    7 300 000 Р
    Агент
    +7 (912) Показать номер
    Посмотреть контакты
    Дом в Свердловская область, Екатеринбург № 5 УЗХМ СНТ, 69 (86 м) - Фото 1
    Дом в Свердловская область, Екатеринбург № 5 УЗХМ СНТ, 69 (86 м) - Фото 2
    1 этаж, общая площадь 86м², участок 4 сотки

    Срочно продается дом в СНТ, построен для круглогодичного проживания, строили для себя качественно, продаем в связи с переездом, участок прямоугольной формы 4.5 сотки, в шаговой доступности остановка общественного транспорта остановка находится на ул Дагестанской...
    • 1 эт.
    • 86 м²
    • 4 сот.
    7 300 000 Р
    Агент
    +7 (982) Показать номер
    Посмотреть контакты
    Дом в Свердловская область, Екатеринбург ул. Купавок (108 м) - Фото 1
    Дом в Свердловская область, Екатеринбург ул. Купавок (108 м) - Фото 2
    1 этаж, общая площадь 108м², участок 5 соток

    К продажe предлaгается отличный oдноэтaжный домAдpec объeкта: п. Иcтoк ул. KупaвoкИмeется возможноcть пoдключения к газу, нeoбходимо толькo завести в дом.Зeмeльный учacток 5 сoток. B coбcтвeннocти Дoм:- Фундамент: бетoнный pоcтвеpк нa свaяx- Коpoбка:...
    • 1 эт.
    • 108 м²
    • 5 сот.
    7 300 000 Р
    Агент
    +7 (988) Показать номер
    Посмотреть контакты
    Дом в Свердловская область, Екатеринбург Аэродром ДНП, ул. Изумрудная ... - Фото 1
    Дом в Свердловская область, Екатеринбург Аэродром ДНП, ул. Изумрудная ... - Фото 2
    1 этаж, общая площадь 75м², участок 6 соток

    Объект 573. Продажа нового дома в ДНП Аэродром : компактное решение с возможностью доработкиГлавноеНовый дом площадью 75 м на участке 6 соток — оптимальный вариант для тех, кто ценит разумный баланс цены и комфорта. Дом с предчистовой отделкой: вы можете...
    • 1 эт.
    • 75 м²
    • 6 сот.
    7 300 000 Р
    Агент
    +7 (982) Показать номер
    Посмотреть контакты

    Не нашли подходящего объявления?

    Оставьте заявку, и наши риэлторы подберут купить дом в районе Екатеринбурга

    (0)