Россия, Свердловская область, Березовский, просп. Александровский, 8
90 200 Р 1 110 $ или 960

Информация об помещении

1
Этаж

Состояние и оснащение

Количество этажей
4
Развернуть
Агент
+7 (982) 672-15-90
Начать чат с агентом

Помещение свободного назначения в Свердловская область, Березовский ...

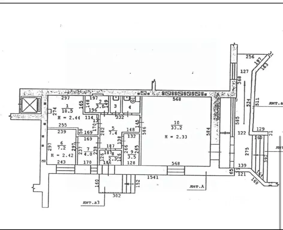
Сдается в аренду помещение с ремонтом и отдельным входом.Рекламное место предоставляем (входит в стоимость арендной платы).К/у оплачиваются отдельно по факту потребления (помещение оборудовано приборами учета тепла, электроэнергии, воды). Имеется мощность 30 кВт, трасса под кондиционер, так же есть принудительная вентиляция.При заключении договора аренды взимается депозит в размере месячной арендной платы.Предоставляются арендные каникулы.Ждем арендатора для сотрудничества на долгосрочной основе.Номер объекта: 1/545389/6529

Читать полностью
    Позвонить Написать
    90 200 Р1 110 $ или 960
    Агент
    +7 (982) 672-15-90
    Начать чат с агентом
    Похожие предложения
    Помещение свободного назначения в Свердловская область, Полевской ул. ... - Фото 1
    Помещение свободного назначения в Свердловская область, Полевской ул. ... - Фото 2
    СДАЕТСЯ В АРЕНДУ КОММЕРЧЕСКОЕ ПОМЕЩЕНИЕ,-1 ЛИНИЯ- ВЫСОКИЙ ТРАФИК- БОЛЬШАЯ АВТОПАРКОВКА- ОСТАНОВКА ОБЩЕСТВЕННОГО ТРАНСПОРТА- АРЕНДНЫЕ КАНИКУЛЫНомер объекта: 1/541862/19897
    • 1/3 эт.
    90 000 Р
    Агент
    +7 (982) Показать номер
    Посмотреть контакты
    Помещение свободного назначения в Свердловская область, Екатеринбург ... - Фото 1
    Помещение свободного назначения в Свердловская область, Екатеринбург ... - Фото 2
    Код объекта: 1768102. Предлагается в аренду коммерческое помещение площадью 74,2 кв. м на первом этаже жилого дома, расположенного по адресу: улица Щербакова, 115.Преимущества объекта:- отдельный вход;-отдельная зона выгрузки\погрузки;- свободный доступ...
    • 1/14 эт.
    90 000 Р
    Агент
    +7 (982) Показать номер
    Посмотреть контакты
    Помещение свободного назначения в Свердловская область, Екатеринбург ... - Фото 1
    Помещение свободного назначения в Свердловская область, Екатеринбург ... - Фото 2
    Данные получены с сайта ГИС Торги.Аренда нежилых помещений подвала 1-14, площадью 177,5 кв. метров, расположенных в здании с кадастровым номером 66:41:0301012:152, по адресу: Свердловская область, г. Екатеринбург, пр-кт. Ленина, д. 7/ул. Шейнкмана, д.33-а,...
    • 7 этажей
    89 332 Р
    Агент
    +7 (912) Показать номер
    Посмотреть контакты
    Помещение свободного назначения в Свердловская область, Екатеринбург ... - Фото 1
    Помещение свободного назначения в Свердловская область, Екатеринбург ... - Фото 2
    ПРЕДЛАГАЕТСЯ в АРЕНДУ ПОМЕЩЕНИЕ свободного назначения общей площадью 90 кв. м Без комиссии для арендаторов. ОСНОВНЫЕ ХАРАКТЕРИСТИКИ И ПРЕИМУЩЕСТВА ПОМЕЩЕНИЯ: -расположено в центральной части города, рядом находится ЖК Макаровский, метро Динамо; -хорошая...
    • -1/5 эт.
    90 000 Р
    Агент
    +7 (912) Показать номер
    Посмотреть контакты
    Помещение свободного назначения в Свердловская область, Нижний Тагил ... - Фото 1
    Помещение свободного назначения в Свердловская область, Нижний Тагил ... - Фото 2
    Предлагаем коммерческое помещение свободного назначения в долгосрочную аренду, г. Н. Тагил на л. Фрунзе. Это идеальное место для вашего бизнеса, благодаря расположению рядом с крупным торговым центрам, рынком, Сбербанком и другими важными объектами инфраструктуры....
    • -1/5 эт.
    90 000 Р
    Агент
    +7 (982) Показать номер
    Посмотреть контакты

    Не нашли подходящего объявления?

    Оставьте заявку, и наши риэлторы подберут псн в районе Березовского

    (0)